El nuevo edificio de aulas y biblioteca de la Universidad Francisco de Vitoria (UFV), proyectado por Tuñón y Albornoz Arquitectos, optimiza al máximo el espacio limitado, tanto en solar como en altura con un blanco y proporcionado volumen, que por dimensiones, se asemeja al mismo Palazzo Farnese, pero reinterpretando su patio central como un vacío dinámico que se desplaza y conecta todas las plantas del edificio.

Fotografía: Luis Asín
El texto que a continuación aparece en azul procede de una conversación en torno al proyecto, entre Emilio Tuñon, de Tuñon y Albornoz arquitectos, y Sancho Páramo, de SPC arquitectura técnica, con Berta Blasco y JM. Marzo de Tectónica.
Tectónica: Estamos ante un edificio que inicialmente estaba previsto como biblioteca universitaria que tiene una formalidad muy rotunda y nos gustaría comenzar con una frase de la memoria del proyecto que puede aportar muchas claves: “Un edificio para la enseñanza es un palacio” ¿En qué sentido lo planteáis?
Emilio Tuñón: Lo más importante en la vida es la enseñanza. Si la enseñanza fuera mejor, seguramente tendríamos un mejor mundo. Todos debemos defender una enseñanza buena, sea pública o privada, como en este caso. Y una buena enseñanza requiere un palacio. Al principio, iba a ser una gran biblioteca. Luego, evolucionó a una gran biblioteca con pocas aulas, y progresivamente se convirtió en un aularium con una pequeña biblioteca.

Maqueta: Carlos y Jorge Pérez-Chirinos
Cuando nos encargaron el proyecto, las normativas del lugar y las posibilidades del solar daban un rectángulo que está llevado al límite de su edificabilidad, como se supone de una institución privada. Hay una normativa curiosa que establece un límite por abajo y otro por arriba. Es decir, el sótano no puede exceder cierta profundidad y la altura permitida no puede sobrepasar un límite. Entre esos dos límites, había que encajar las cuatro plantas de aulas universitarias con la biblioteca y las dos de aparcamientos. Realmente, al límite.

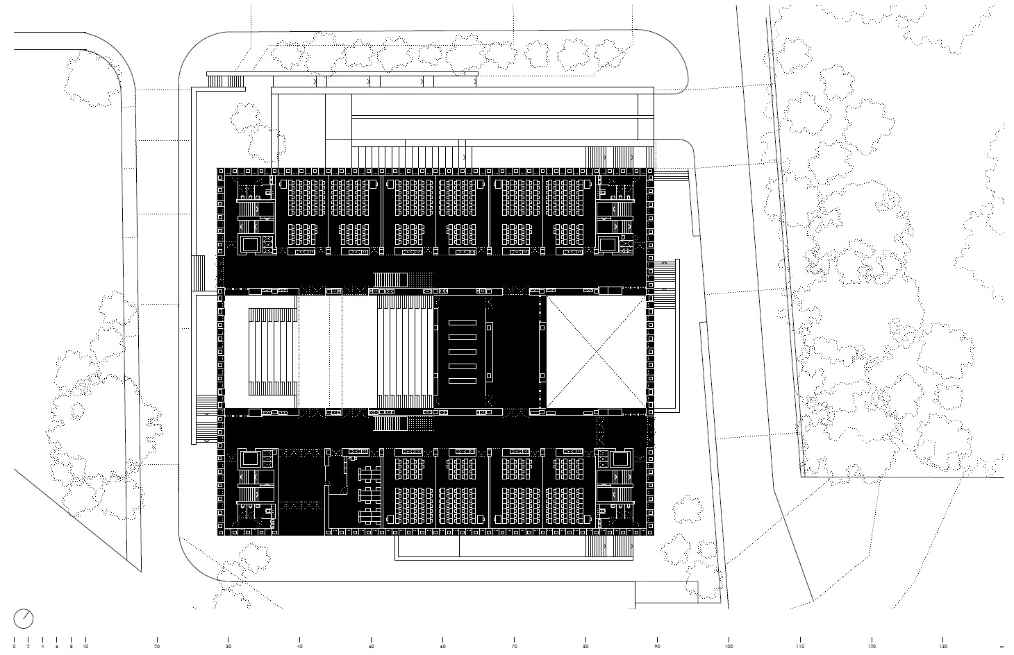
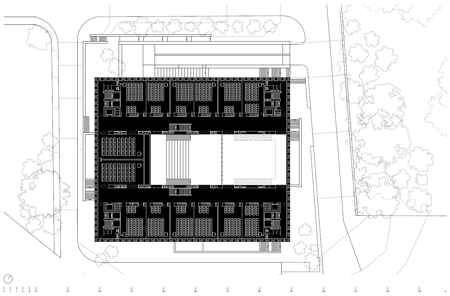
Planta baja. Ver PDF

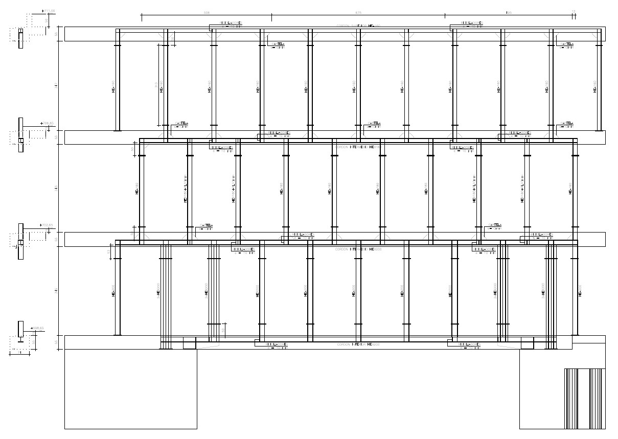
Secciones. Ver PDF
Lo más divertido de esto es que, cuando empezamos a dibujar, y planteamos el sistema con aulas en el perímetro para aprovechar la luz y que tenga la referencia solar, y un vestíbulo central que permitiera eventos, al colocarlo me di cuenta de que tenía una proporción como de palacio italiano. Fui al Palacio Farnese y vi que era exactamente de la misma dimensión, me refiero al Palacio Farnese que conocemos ahora. Sólo que el Palacio Farnese tiene un patio que va vertical, de arriba a abajo, y el nuestro, se va desplazando también, pero diagonalmente de abajo hacia arriba.

Alzado y planta Palazzo Farnese, Roma
De ahí surge la broma. Por una parte, la seriedad de decir que la educación requiere un palacio; por otra, la broma personal de que el edificio tiene la proporción normativa del Palacio Farnese, de cornisa a suelo. Incluso, el número de ventanas es el doble que el del Palacio Farnese, lo cual es rarísimo. Farnese tiene un ritmo o periodo más dilatado, como italiano, mientras que éste tiene un ritmo un poco más abstracto.
T.: Sí porque además los huecos van contrapeados. Es una composición rítmica que a la vez transmite una sensación de serenidad.

Fotografía: Luis Asín
ET: Aquí la cornisa se sustituyó por una sombra muy ligera, y la pieza de máquinas que está detrás se ve como un remate de esa línea. Las máquinas, en este tipo de edificios, son instalaciones muy densas porque necesitan mucha renovación de aire al ser edificio con mucha afluencia de gente. El edificio y las aulas están llevados al límite por una cuestión de economía. Eso hace que tenga una maquinaria de evaporación de aire muy grande y una maquinaria de captación solar muy dilatada, muy extensa, y se acaba teniendo una instalación de unas dimensiones muy importantes, que nosotros estábamos empeñados en que quedara todo zunchado por una pieza al límite de la construcción que era 45 grados desde la cornisa. Es curioso porque el Farnese tiene esa gran cornicione y este lo que tiene es ese gran remate de piedra.

Axonometría descompuesta. Ver PDF
T: Y hay un juego interesante entre la estructura aparente, de grandes pilastras en fachada, donde el hueco y el macizo son casi iguales, y la estructura real, que son pilares de acero, y que van ocultos por el interior de estas pilastras y en los grandes muros huecos de ladrillo de las aulas y del espacio central con el graderío, que alojan los conductos de aire e instalaciones para liberar de alguna manera los techos ¿Se planteó así desde el principio del proyecto?

Fotografía: Luis Asín
ET: En realidad, pensamos en hacer el edificio con estructura de ladrillo, pero los tiempos de la universidad privada son muy ajustados. Nos dijeron que el curso tenía que iniciarse en septiembre de 2024. Era un plazo inamovible y la estructura metálica ahorraba mucho tiempo. El hecho de no hacerlo todo con ladrillo estructural permite resolver puntos singulares como los grandes huecos rasgados que hay en el nivel semisótano en las fachadas este y oeste, y que se sujetan con unas vigas vierendeel, integradas dentro de la estructura de ladrillo. Estas aperturas permiten la conexión del restaurante y el espacio central con unos patios ingleses a los que también se abren aulas y espacios de la biblioteca. Por otro lado, has adelantado otra cosa muy interesante, es que, en el interior, como está todo tan al límite, son todo losas postesadas: la luz central es de 14 metros y no aparecen descuelgues de vigas.

Fotografía: Luis Asín

Alzado noreste con sector fachada viga vierendeel. Ver PDF

Estructura fachada noreste con pilares de acero y viga vierendeel. Ver PDF
Sancho Páramo: El problema de la altura máxima normativa nos obligó a usar losas muy esbeltas, por eso hubo que postesarlas. Lo que comentabas de las renovaciones, es que ese problema de altura que teníamos no nos permitió hacer una distribución horizontal de la climatización. Por eso hemos tenido que hacer la distribución en cubierta, y bajar por todos estos muros de ladrillo, que eran grandes patinillos y bañábamos a las aulas verticalmente, porque no había espacio para llevarlo por el techo.

Planta sótano. Ver PDF

Fotografía: Luis Asín
ET: Es interesante porque cada pilar corresponde con un patinillo que lleva las instalaciones. Lo que ocurre es que el pilar, la viga que debería soportar la losa postesada, en realidad se divide en dos vigas, que deja un vacío entre medias para meter la impulsión desde arriba.
Con eso hemos conseguido ganar muchísimo en altura. Nos hubiera gustado dejar las losas vistas, pero siempre acaban teniendo tal cantidad de elementos de detección, extracción, incluso de oscurecimiento, que se decidió colocar un falso techo absorbente, una placa perforada con un aislamiento encima, que al final ha venido bien porque ha mejorado los espacios de las aulas, no solamente en términos termodinámicos, sino también en términos acústicos, porque aísla del ruido de las instalaciones de impulsión, retorno y de oscurecimiento.

Fotografía: Luis Asín
T: ¿El falso techo se limita a las aulas?
ET: No, el pasillo tiene un falso techo de más tamaño, porque desde ahí es desde donde se está distribuyendo toda la acometida del agua, la extracción, y demás.
SP: El falso techo de las aulas tiene un plénum de 15 o 20 centímetros porque la impulsión que se efectúa por toberas desde estos grandes patinillos-muros, que separan las aulas de los pasillos, y el retorno también. Cada muro de estos está sirviendo al aula. Entonces, por el falso techo, va la detección, todo el tema audiovisual, la electricidad y la iluminación.
En las fachadas, la viga perimetral aumenta de canto hasta los 50 cm igualándose con el descuelgue del falso techo. Este aumento del frente de la viga sirve además para absorber el decalaje de los pilares metálicos entre plantas.

Axonometría constructiva. Ver PDF

Fotografía: Luis Asín
T: Y has comentado que el espacio funcionaba bien desde el punto de vista del confort térmico, ¿Cómo está planteada la climatización?
SP: Siempre se busca la idea de poner una base que es el suelo radiante, que atempera, y después aprovechar toda la infraestructura de la renovación de aire para meter un poco más de frío, o de calor.
ET: El falso techo no solamente nos ha servido acústicamente para el tema de la absorción, sino también para los temas de impacto, porque las aulas tienen que dar un confort, digamos que incluso mayor que en las viviendas en ciertos aspectos. Por ejemplo, en un aula deben evitarse los ruidos de arriba o de al lado en todo momento para que no pierda el misterio de la enseñanza. Creo que eso está muy conseguido recurriendo a ese falso techo.

Fotografía: Luis Asín

Planta primera. Ver PDF

Fotografía: Luis Asín
T: E medio de este gran espacio central, en la planta primera hay un gran cierre de vidrio que interrumpe de algún modo la continuidad espacial ¿Cuál es el motivo?
ET: Es un recurso para que cumpla con la normativa de la sectorización de incendios. Nosotros no queríamos meter elementos tecnológicos complejos como cortinas que bajen. En realidad, son tres espacios. El de abajo es una grada que tendrá más adelante unos video-walls al fondo, y que pertenece al mundo de la cafetería. Hay un segundo espacio, que es otra vez otro anfiteatro pero que funciona ya como tal, que tendrá también su video wall y que lo bonito que tiene es que, sentado, ves la luz del segundo anfiteatro que es el de la cafetería. Y el tercer espacio que está más arriba, es una gran zona de estudio que complementa a la biblioteca que está abajo. Yo creo que una cosa que tiene bonita el aulario, que la tiene la Escuela de Arquitectura de Madrid, es que en el fondo los espacios de vestíbulo se utilizan todo el rato como lugares donde los alumnos pueden estar trabajando o pueden estar intercambiando conocimientos. Y, de hecho, son espacios muy vividos actualmente. Uno, con más silencio, que es el aula de estudio de arriba, y los otros dos, tanto el del bar, o el segundo que está la gente trabajando o simplemente reunida.

Fotografía: Luis Asín

Planta segunda. Ver PDF
T: En la última hay unas escaleras que suben a la cubierta. ¿Se puede utilizar la cubierta?
ET: En la cubierta hay otra aula más. Todavía falta poner los toldos, pero ya están previstos para el próximo verano. En la misma proporción que ese hueco que se va moviendo planta a planta, en la cubierta hay un aula al aire libre equipada para eventos académicos o festivos. El resto de la cubierta está ocupado por las máquinas y hay dos escaleras para permitir una evacuación muy rápida. También se abren los lucernarios que iluminan las salas de la planta alta, que creo que se utilizan para actividades de máster y posgrado

Fotografía: Luis Asín
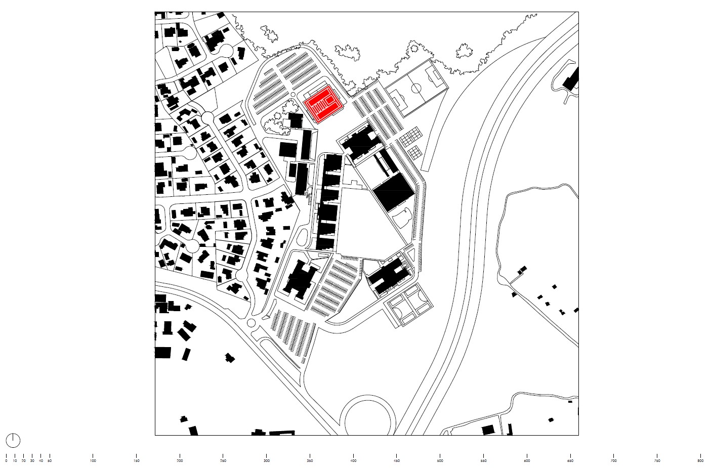
ET: El campus de la Francisco de Vitoria es muy claro; se articula en dos ejes: un eje rodado y el eje peatonal, que está lleno de street food, de restaurantes…, un poco a la americana. Esos dos ejes confluyen exactamente en la puerta de lo que es este aulario, este CRAI. Y cuando subes a la cubierta, te das cuenta de que en realidad el campus está cerca de Madrid, pero está rodeado totalmente de arbolado. Es una maravilla. Subir allá arriba nos permite entender muy bien la universidad, cómo está organizado el campus, pero también entender esa condición un poco de estructura que pertenece a Madrid, pero que se construye casi como una ciudad autónoma. Porque la gente, va a las ocho o nueve de la mañana, y ya se queda todo el día allí porque resuelve también todo el ocio, el deporte… El polideportivo de Alberto Campo, que se encuentra muy cerca, está todo el día al 100%.

Plano de situación. Ver PDF
T: ¿El aulario sirve a toda la universidad o está dedicado a una especialidad?
ET: Es un aulario que funciona para distintas titulaciones, incluso titulaciones que se entremezclan entre ellas. Las universidades privadas tienen una buena gestión del espacio. El aulario sirve a diferentes carreras, aunque está fundamentalmente ligado a las de leyes, y la biblioteca sí es de toda la universidad, como el restaurante, al que va a comer gente de otras facultades. Es el aulario más grande que se ha construido en la Francisco de Vitoria, y es como una máquina de dar clases con esta condición de aprovechar el espacio al 100% del tiempo.
T: ¿Y la biblioteca del aulario tiene autonomía de uso?
ET: Sí, de hecho, la biblioteca se pensó para poder tener acceso las 24 horas del día.

Fotografía: Luis Asín
T: En cuanto a soluciones constructivas, llama la atención que el ladrillo de fachada está pintado, que cambia por completo la percepción porque cubre todo por igual, ladrillo y llaga. ¿Se debe a una cuestión de mantenimiento?
ET: El campus de la Francisco de Vitoria empezó siendo de ladrillo, unas construcciones que al principio me parecieron más anodinas y con el tiempo las acabo viendo más interesantes. Y luego, todas las intervenciones nuevas que se han ido incorporando son blancas: el polideportivo de Alberto Campo, la arquitectura de Felipe Samarán, que ha estado siempre muy involucrado en la construcción del campus, o Bjarke Ingels ahora,y pensamos que, en la intersección de las dos calles, de los dos ejes, tenía que haber algo de ladrillo, pero blanco.
He de decir que siempre citábamos la obra de Van der Laan en Holanda, que utiliza una técnica típica holandesa de pintar el ladrillo que se llama Kaleien. Curiosamente, ahora que estamos trabajando en Maastrich, nos damos cuenta de la ligazón que nos une con ciertas partes de Holanda y de Bélgica, de la zona flamenca. Me parecía bonito traer esa técnica que se utilizaba allí en Holanda, sobre todo en la zona flamenca, de pintar las fachadas cuando se van estropeando, que es una práctica que aquí se puede entender muy bien como mediterránea. Pero la técnica la va a explicar Sacho, porque eso interesa.

Fotografía: Luis Asín
SP: De partida fuimos a un ladrillo blanco, nos decidimos por un ladrillo clínker, y en el proceso de investigación de cómo pintarlo utilizando un mortero blanco para conseguir uniformizar el tono, vimos que el clínker, que es un producto que está curado a muy alta temperatura, casi vitrifica y cristaliza la superficie y no es fácil adherirle una pintura que con el tiempo perdurara. Nosotros, de partida, hubiéramos tirado por una pintura de silicato, que solemos trabajar con el hormigón, pero el resultado de las pruebas de adherencia en el laboratorio no era satisfactorio. Finalmente encontramos al fabricante que hace este recubrimiento en los Países Bajos, pero se iba de precio. Es aun pintura que tiene de base poliuretano y es la que utilizaba Van de Laan en su edificio con la que pinta hasta las puertas.
Encontramos, entonces, un fabricante que ofrecía un revestimiento que seguía la técnica de Kaleien pero con un proceso mucho más tecnificado en base a silicona, que daba muy buen resultado, transpirable

Fotografía: Tim Van de Velde. Roosenberg Abbey. Hans Van der Laan
ET: Hay que tener en cuenta un dato: este es el edificio más barato que hemos hecho por metro cuadrado en nuestra vida: 800 € el metro cuadrado, con alturas de 10 y 12 metros. El ladrillo que inicialmente teníamos era un ladrillo caro. Y lo que hicimos es elegir uno barato, que se pinta con esta pintura que no es tan cara y que, además, se ha demostrado que tiene un mantenimiento muy sencillo.
Si hubiéramos hecho como Van der Laan, que es una pintura con un color arena, sería un poco más complejo, porque la mezcla no siempre es perfecta, pero esto es blanco puro. Cuando tienen una pintada o un problema, cualquier persona, la limpia. Es impermeable, transpira y a su vez tiene una adherencia total a un ladrillo básico. La pintura imita el resultado del encalado. Por mencionar una obra, la casa de Cano Lasso, que está pintada con cal y con los años va cogiendo el grosor.

Fotografía: Luis Asín
T: Y otra particularidad es la del pavimento, que tiene un proceso muy particular, una piedra artificial que resulta de una especie de trabajo de geología artificial: se hace un bloque gigantesco y se corta. ¿Cómo es esto?
ET: Es un material precioso a la mano. Es como si hubieras extraído la piedra tal cual y, en teoría, podrías hacer cortes de cualquier tamaño, aunque al final hay que manejarse en unos tamaños relativamente razonables, 90 x 60 centímetros. Con este sistema se consiguen piezas de formatos especiales y mayores dimensiones que el terrazo tradicional.
SP: Y lo curioso es que visualmente es igual al terrazo clásico, que también hemos utilizado, porque la masa es la misma. Lo que pasa es que el clásico sigue un proceso de fabricación convencional en moldes, y salen piezas de 60 x 40, 60 x 60 centímetros. Y el otro, se llenan cuatro, cinco metros cúbicos, se cura, se prensa y se filetea.
T: ¿Y qué diferencia hay de resultado?
ET: Nosotros teníamos previsto todo del tipo bloque, que requiere un trabajo artesanal, frente al terrazo que es un trabajo más industrial. Este es un edificio de 20.000 metros cuadrados –para que nos hagamos una idea es la mitad de Colecciones Reales– y el terrazo permite traer de inmediato grandes cantidades, y el de bloque no. Al final, dejamos el de bloque para el espacio central, que tenía dimensiones mayores y encuentros más especiales con las escaleras y los cambios de color, y el terrazo, que es más manejable, con piezas de 60 x 30 cm, en todo lo demás, que es mucho más barato y funciona muy bien.
Nos hacía gracia volver a ese aulario de toda la vida de terrazo. Además, la Francisco de Vitoria tenía buena experiencia con el terrazo, porque en los primeros edificios que hicieron, hace ya veinte años, lo colocaron y ha dado muy buenos resultados.

Fotografía: Luis Asín (fragmento)
T: Lo que también está muy cuidado en el edificio son todas las salidas de aire y con una solución ciertamente singular.
SP: Pensamos encargarlas especiales, pero al final descubrimos esta pieza cerámica con perforaciones circulares. Fue una casualidad. Estábamos viendo el tamaño de la tobera que teníamos, que era de 15 centímetros, y de repente, un día nos topamos con estas celosías yo creo que en instagram. Pedimos una y acabamos utilizándola para impulsiones y retornos.
ET: En las impulsiones la tobera se queda flotando, haciendo una línea de sombra perfecta. Es la misma pieza cerámica para todos los sitios.
SP: La tobera asoma a media madera y echa el aire a través del agujero de la pieza cerámica. El retorno se hace por plenum también a través de perforaciones similares.

Fotografía: Luis Asín
T: Y por terminar, en el exterior habéis utilizado un adoquín para pavimento, ¿no?
ET: Es calçada portuguesa, una caliza de color negro. Todos los pavimentos de Lisboa se dibujan con esta práctica alternando caliza blanca y la caliza negra. Está colocada por artesanos portugueses que vienen y hacen 100 metros (cuadrados) por día, perfectamente. Es un trabajo autónomo, que se hace al final de la obra.
SP: Tienen una técnica muy curiosa, porque son piezas bastante residuales. No es un adoquín perfilado, tallado, como el granito que se pone aquí. Es una pieza amorfa y ellos, con un toque, lo van perfilando, tallando, uno a uno, para que encaje en el damero. Es un trabajo muy curioso, porque trabajan en cuclillas: cogen una maderita cuadrada, le ponen un pie derecho y es como un taburete con un solo pie, con el que pivotan y descansan un poco el peso.
ET: Es un sello de la casa. Todas las obras que hemos hecho desde Zamora lo tienen.
Autoría: Emilio Tuñón y Carlos Martínez de Albornoz
Localización: Campus Universidad Francisco de Vitoria, Pozuelo de Alarcón. Madrid
Colaboradores: Andrés Regueiro, Julia Díaz, Nicolo Franchetto, Catarina Pereira, Javier Chávez, Inés García de Paredes, José Ramón Rodríguez, José Luis Pedrera (Arquitectos); Alfonso Gómez Gaite, Alfonso Redondo Gómez, GOGAITE INGENIEROS (Estructuras); Carlos Úrculo, ÚRCULO INGENIEROS (Instalaciones); Sancho Páramo Cerqueira, Cristina Nicolás Soto (Dirección de ejecución).
Fotografías: Luis Asín
Promotor: Fundación Universidad Francisco de Vitoria
Empresa constructora: Ferrovial
Empresas destacadas:
Editado por:
Publicado: Dec 1, 2025