GREENH@USE, el nuevo proyecto de vivienda social del estudio Peris+Toral Arquitectes y Jaime Pastor en la calle Venezuela de Barcelona, se presenta con una imagen marcadamente urbana y solemne. Según sus autores, la estética del edificio es un resultado directo del sistema constructivo y conceptual empleado: "Todo depende del sistema. Es una cuestión de 'form finding'. Según lo que nos pida el proyecto, vamos más hacia un lado o hacia otro”. A continuación, el estudio detalla los avances implementados en su continua investigación sobre la tipología de la vivienda social, así como en el planteamiento termodinámico de estas viviendas respecto a otros proyectos anteriores.

Fotografía: José Hevia
En conversación con Tectónica, José Toral de Peris+Toral Arquitectes, nos revela las claves de su propuesta tipológica de vivienda social y de funcionamiento termodinámico para el edificio del barrio 22@ de Barcelona.

Plano de situación. Histórico, con el antiguo trazado del camino de Valencia. Ver PDF
José Toral: Lo primero que hay que tener en cuenta de este edificio, que es una cuestión contextual e interesante, es que está en el distrito de San Martí. Es un distrito que se incorporó a Barcelona a principios del siglo XX, y una de las condiciones en esta integración era que no estaban de acuerdo con la escala de las manzanas de Cerdà y pidieron que se cambiara. El municipio, donde está el barrio del 22@ hoy en día, está lleno de pasajes.

Axonometría del edificio y su entorno urbano. Ver PDF
Estos pasajes tienen que ver con la idea de cambiar la escala al Eixample. Se puede ver en el plano esa condición de manzanas con pasajes, en uno de los cuales está este proyecto. Esto nos lleva a entender que, más allá de alinearnos solo a la calle –que era el antiguo Camí Antic de València– como pedía el planeamiento, era importante la idea del pasaje, entenderlo como calle, que es la vocación que se tiene en esta zona del Ensanche de Barcelona. Y por otro lado hacemos que el exceso del volumen edificable se introduzca dentro del edificio, esponjándolo y creando un vacío central, fundamental en el proyecto, y que ya podemos adivinar que va a ser un vacío termodinámico.

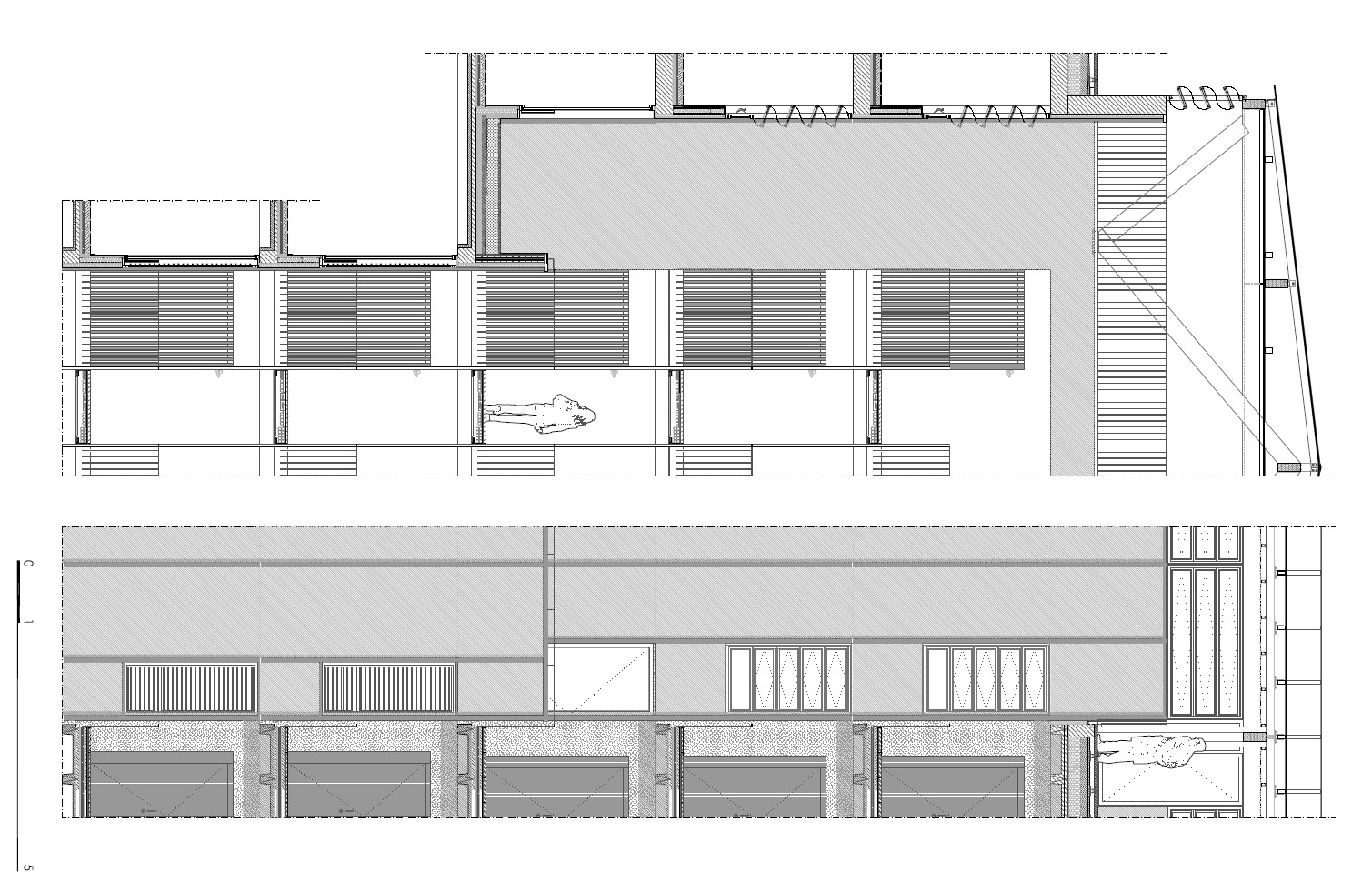
Sección transversal. Ver PDF

Fotografía: José Hevia. Atrio cubierto con la calle interior.
El programa del proyecto es muy curioso, porque es un programa de viviendas mixtas, de usos diferentes y totalmente independientes unas de las otras. Es una situación extraña en la que nos piden viviendas para gente mayor, que tienen un dormitorio, viviendas de alquiler social que tienen dos dormitorios, y unas viviendas que aquí llaman alojamientos, que son viviendas para gente en situación de emergencia, en las que la estancia es por poco tiempo y que ya están amuebladas. Cada tipo de vivienda tiene una gestión y un acceso totalmente independiente, y yo creo que ganamos el concurso porque fuimos los únicos que, en lugar de hacer un edificio al lado de otro, lo que hicimos es poner un edificio encima de otro.

Planta baja. Ver PDF

Fotografía: José Hevia. Acceso a las viviendas de alojamientos de emergencia.
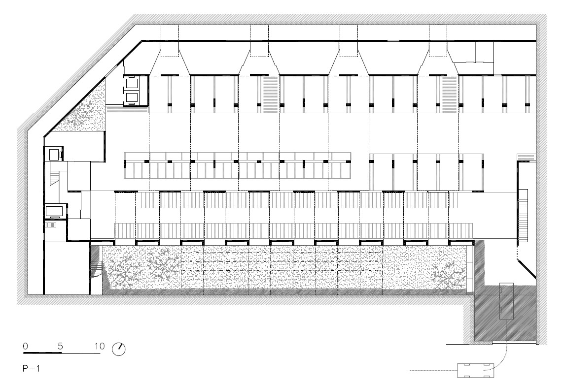
Es decir, los alojamientos, por cuestión de densidad de equipamientos, tenían que estar en planta baja, y el alquiler social y la gente mayor encima. También, a la gente mayor las pusimos arriba del todo por dos cuestiones, una es que al tener un dormitorio pudimos esponjar el patio, ampliar esta zona alta, y que llegara más luz a todo el vacío, y también por la condición de que la gente mayor va a estar más horas en casa y las viviendas de arriba tienen mejor asoleo. Por otro lado, los alojamientos tienen más relación con el jardín paralelo al pasaje. Y hay un parking que cumple con las plazas normativas y que busca tener una ventilación natural, algo parecido a como ya hicimos en las viviendas de Bon Pastor.

Fotografía: José Hevia. Acceso a las viviendas de gente mayor.
Por lo tanto, hay cuatro accesos al edificio: a los alojamientos, directamente por planta baja, en donde el atrio está acristalado, pero tienen acceso al jardín; al aparcamiento; y por el chaflan se sube a las cuatro plantas de alquiler social, y, de manera diferenciada a las tres plantas de gente mayor, y estas siete plantas comparten la escalera de evacuación en el extremo opuesto al chaflán... En estos portales, que en el de mayores tiene un espacio para el portero, se utiliza una celosía cerámica que funciona como un absorbente acústico.

Fotografía: José Hevia. Acceso a las viviendas de alquiler social. En los portales de acceso, para compensar el exceso de reverberación de materiales "duros" como el hormigón o terrazo, se coloca una celosía de Cerámica a Mano Alzada como absorbente acústico.
Los programas de estas viviendas son totalmente independientes y en ningún momento nos han dejado unirlos. A nosotros nos gustaría que en un futuro se pudieran unir. Y en ese sentido, de sectorizar las distintas viviendas, en planta baja, se tuvo que cerrar el atrio - acristalándolo- pues se consideraba que las personas de estos alojamientos de emergencia pueden ser conflictivas y en ocasiones pueden generar mucho ruido.

Planta 2. Alquiler social. Ver PDF
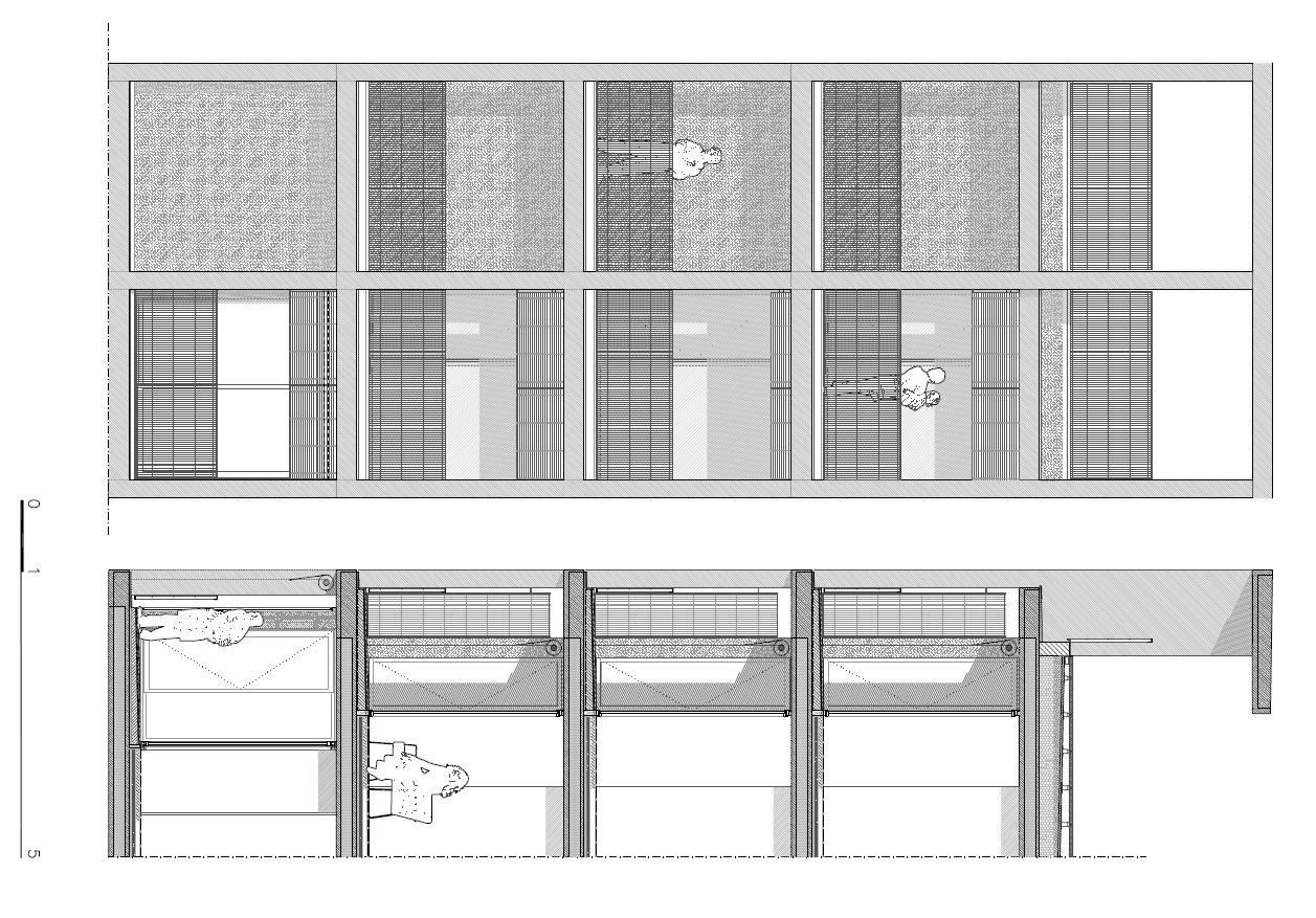
"La planta se organiza en veinte viviendas por nivel, dispuestas alrededor de una pasarela que funciona como calle elevada y atraviesa una secuencia de cinco patios y rellanos de acceso. Cada rellano reúne cuatro entradas, formalizadas mediante unas cajas de celosía de madera que tamizan la vista y el aire, regulando la privacidad y fomentando la apropiación del espacio. La vivienda articula dos espacios en diagonal —la cocina -comedor, vinculada con la entrada y la sala con la terraza— que se conectan directamente con las habitaciones para evitar pasillos". (Memoria del proyecto)

Fotografía: José Hevia
Luego, en las plantas de alquiler social y de gente mayor hemos incorporado unos dispositivos que ya utilizamos en Son Servera, que son estos lugares intermedios previos a la puerta de entrada, que permiten ventilar sin abrir la puerta. Es entender que la entrada no es una línea, sino un espacio. Esto ayuda mucho a la relación social, porque es más fácil abrir estas puertas que las de la casa.

Fotografía: José Hevia

Planta 7. Gente mayor. Ver PDF
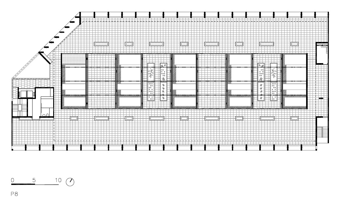
En las plantas tipo de gente mayor, donde en las de alquiler social estaba el núcleo de comunicación, hay unas salas polivalentes para uso compartido, que se resuelven con un techo acústico de fieltro. Y el acceso a la cubierta es exclusivo para la gente mayor en donde hay zona para un huerto urbano, solárium exterior.
En cuanto a la tipología de a vivienda de gente mayor, se dibuja la cocina de una manera perpendicular al espacio para hacer de filtro y provocar ser más participativo: cocinar mirando el espacio, no contra la pared. También tienen la terraza más abierta y una ventana que también se abre al patio, y siempre se resuelve la distribución con esa disposición de paredes grecadas que generan diagonales entre los espacios; una casa sin pasillos, con puertas correderas, con una línea de continuidad hacia los lugares más íntimos: el baño es la última pieza a la que se entra desde la habitación.

Fotografía: José Hevia. Para hacer posible el funcionamiento termoclimático del atrio, ha sido fundamental incluir elementos de ventilación de UIN2, tanto en ventanas de las viviendas como en los exutorios junto a la cubierta acristalada.

Sección constructiva cerramiento interior. Ver PDF.

Fotografía: José Hevia

Sección constructiva cerramiento exterior. Ver PDF

Fotografía: José Hevia
Otro recurso que ya habíamos utilizado en Ibiza y en Son Servera es el jardín de invierno con la cortina de cristal y la persiana alicantina por fuera, para la que hemos hecho un prototipo para motorizarla. Tener la cortina de cristal permite resolver la carpintería con correderas más grandes y finas que son más baratas. Es un sistema de correderas donde una hoja es fija, lo que la hace más estanca –las prestaciones de una corredera siempre son menores que en una abatible, pero se minimiza la cantidad de junta al tener una hoja fija–. Luego, en la vivienda, hacia la terraza, hay estores de oscurecimiento.

Fotografía: José Hevia

Fotografía: José Hevia

Planta 4. Mixto clusters. Ver PDF
Y siguiendo con el tema de novedades en las tipologías de vivienda social, en una planta, hemos conseguido hacer la vivienda intergeneracional, un planteamiento en el que estamos trabajando más a fondo en otro proyecto, donde hay un espacio, la cocina, que es compartido. Es la planta cuarta, en donde cuatro viviendas comparten cocina

Fotografía: José Hevia
Es una idea que propusimos nosotros que tiene que ver con el explorar y cómo compartir. Está pensado para relacionar a una persona mayor y alguien joven, cada uno tiene su espacio privativo, pero comparten la cocina, que es de mayor escala y cada uno tiene su propia nevera y otras cosas. Hay dos accesos, y es reversible. Lo hicimos con esa condición.

Fotografía: José Hevia
Todos los espacios están vinculados a través del aire y de la termodinámica.

Fotografía: José Hevia

Fotografía: José Hevia
El atrio funciona como un recuperador de calor. El aire entra en verano a través del jardín por unas aperturas en celosía situadas en el extremo del forjado de techo del aparcamiento hasta el atrio. Estos conductos de una altura de 70 cms se forman colocando sobre la losa, unos tabiques conejeros o palomeros y, sobre ellos, una rasilla y una pequeña capa de compresión.

Funcionamiento atrio cubierto y ventilado en verano (izquierda) con la incorporación de aire del exterior, a través del forjado de techo del aparcamiento. En invierno estas tomas se cierran.

Fotografía: José Hevia. En la imagen se aprecian las perforaciones que son la entrada de aire a unos grandes conductos que discurren sobre el aparcamiento para llegar al interior del atrio.

Fotografía: José Hevia

Planta -1. Aparcamiento. Ver PDF

El atrio como vacío termodinámico.
"En la planta baja, un patio inglés ajardinado en contacto con el pasaje permite la iluminación natural y ventilación cruzada del aparcamiento, capaz de adaptarse a nuevos usos en el futuro, y aporta una entrada de aire al atrio, clave en su comportamiento termodinámico. La inercia térmica de la estructura prefabricada de hormigón, la higroscopicidad de la madera y la absorción acústica del revoco de los patios proporcionan confort a este espacio intermedio atemperado". (Memoria del proyecto)

Fotografía: José Hevia
Todo el funcionamiento termodinámico está motorizado, tanto el accionamiento de las ventanas como la protección solar a través de un sistema de sensores que les da un comportamiento dinámico. Es un sistema que ya hemos incorporado en otros proyectos y consiste en ser capaces de captar energía y subirla unos grados, en invierno y generar movimiento del aire en verano, Además, en cada rellano tenemos ventiladores, con dos direcciones de movimiento de las aspas, para evitar la estratificación y para mezclarlo, que ayudará a refrigerar en verano y a evitar la estratificación en invierno, porque si no, el aire caliente se quedaría arriba.
Pero la mayor diferencia respecto a proyectos anteriores es que aquí es podemos utilizar el atrio como recuperador de calor. Todas las viviendas renuevan el aire con aire atemperado del atrio.

Fotografía: Peris+Toral Arquitectes
La construcción es en base a todo un sistema de estructura prefabricada que está optimizada con geometría. Esto ya lo definimos en Ibiza. La mejor manera de hacer un hormigón un poco más sostenible era dándole mucha geometría. La prefabricación nos ayuda a darle geometría de forma más económica. Se utilizan unas unas vigas pi, hechas a medida. Con eso tenemos una sección estructural de 30 cm y la cantidad de hormigón equivalente a un forjado de 15 cm. Lo cual implica una reducción del 50% en la cantidad de hormigón.

Axonometría forjado prefabricado. Leyendas en PDF con suscripción Premium.
En las partes lisas es lo mismo, pero el vaciado se hace con un aislamiento térmico, un porex, que también ayuda a reducir el puente térmico. Lo interesante es que aligeramos por molde o con porex. Luego, la capa de compresión es la que lo une todo. En lugar de ser articulado, es hiperestático.

Fotografía: Peris+Toral Arquitectes
Hay tres líneas estructurales y son simétricas. Esto nos permite una luz de 7 m, luego una de 4 m y una de 6 m. La de cuatro es la pequeña que permite que las otras dos sean más grandes. Los pilares de fachada son una línea estructural. Las líneas estructurales son bastante continuas, son casi muros de carga. Siguiendo la línea de muros de hormigón – estos si realizados in situ por economía (ya que no se iban a ver)- se dispone una viga prefabricada -una semiviga – a las que llega por un lado el forjado Pi, y por otro la prelosa en la otra dirección.

Fotografía: José Hevia
"En la octava planta se ubica el programa colectivo de las viviendas senior, que incluye lavandería comunitaria, tendederos, solárium, huertos urbanos y espacios polivalentes. Por encima, una gran cubierta de vidrio envuelve los cinco patios, transformándolos en un gran atrio bioclimático, cuyo comportamiento varía según la estación: funciona como captador de calor en invierno y como chimenea solar en verano. Este esponjamiento interno constituye una estrategia medioambiental para reducir la demanda energética de forma pasiva, y actúa a la vez como condensador social".(Memoria del proyecto)

Planta 8. Ver PDF
T: El edificio tiene una imagen de edificio urbano muy contundente, muy clásico, ordenado, solemne, muy diferente de la macla de volúmenes de Ibiza o del proyecto que ahora estáis desarrollando en Montgat que resolvéis con arcos ¿Qué determina estas respuestas tan singulares?
JT: Todo depende del sistema. Esta cuestión del "form finding" de proyecto nos tira mucho. Según lo que nos pida el proyecto, vamos más hacia un lado o hacia otro.

Fotografía: José Hevia
Autoría: Marta Peris +José Toral / y Jaime Pastor
Localización: Barcelona, c/Veneçuela 100,106
Colaboradores: Arquitectos: Guillem Pascual, Izaskun González, Ana Espinosa, María Megias, Cristina Porta, Miguel Bernat, Rita Martins Alves, Javier Roig (de P+T) Manel Fernández, Meri Blanco; Dirección de ejecución: Joan March i Raurell; Estructuras: Bernúz Fernández; Instalaciones: Jaume Pastor – L3J Tècnics Associats; Asesoramiento ambiental: Luca Volpi - Societat Orgànica; Acústica: Sergi Soler - Àurea Acústica
Fotografías: José Hevia
Promotor: IMHAB - Institut Municipal de l'Habitatge i Rehabilitació de Barcelona
Empresa constructora: Calaf Constructora
Empresas destacadas:
Editado por:
Publicado: Nov 17, 2025