Miguel Ángel Díaz Camacho, propone un brillante contenedor para la biblioteca del barrio madrileño de Butarque, como un nuevo “marcador urbano” en el que la madera – laminada y CLT – de la estructura, que caracteriza el interior, se envuelve con chapa metálica evocando el pasado industrial del lugar, que se ofrece como un espacio de encuentro y participación ciudadana.

Fotografía: Javier Callejas
El texto que aparece a continuación, procede de una conversación sobre el proyecto de la Biblioteca de los Mil Soles, entre Miguel Ángel Díaz Camacho de MADC & Partners , con Berta Blasco y Jose María Marzo de Tectónica.
Tectónica: Desde que se inauguró la biblioteca de los Mil soles ha recibido importantes premios, así como ha tenido una acogida fantástica en Butarque, el barrio de Villaverde (Madrid) en donde se levanta, ¿cuáles crees que fueron las claves del proyecto para que vuestro proyecto fuera el ganador del concurso de ideas?

Fotografía: Javier Callejas
Miguel Ángel Díaz Camacho: De eso hace ya mucho tiempo, fue un concurso convocado por el Ayuntamiento de Madrid y el COAM en 2018. La biblioteca está en un barrio periférico de bloques de ladrillo, los de 'toldo verde' que llaman ahora, con una zona nueva, un PAU, donde hay edificios 'tipo cebra'. Parece que se han caricaturizado los dos tipos de edificios que caracterizan diferentes planteamientos de urbanismo: el de los años 70, de baja altura, y el de los años 2000, de edificios muy altos con piscinas privadas. La biblioteca está en medio de los dos. Pensábamos que en el concurso habría muchas propuestas para estos barrios considerados 'sin carácter' que buscaran una arquitectura más icónica que les diera un supuesto carácter que no tienen.

Axonometría de la propuesta

Plano de situación. Barrio de Butarque, Villaverde, en Madrid.
Nosotros, como tenemos el estudio en la periferia, huimos de estos discursos. Queríamos una biblioteca que aportara dignidad al barrio, que pudiera estar en Bruselas, Londres, París u Oslo; una biblioteca de una ciudad como Madrid. Aunque sea Butarque, un barrio de Villaverde, que es un distrito de la ciudad de Madrid. Por lo tanto, debe haber unos mínimos cualitativos para cualquier biblioteca, colegio público o centro de salud que nos igualen con esas ciudades. Siempre pensamos en un edificio discreto en lo formal, pero con una experiencia espacial muy elaborada. El jurado, creo, valoró eso, además de porque respondíamos con rigor a la alta exigencia ambiental que requerían las bases.

Fotografía: Javier Callejas
Las bases pedían un edificio especialmente sostenible y relevante en el contexto del Pacto Verde Europeo. Hay que tener en cuenta que finales de 2018, cuando se convoca y se entrega el concurso, fue un momento de cambio de gobierno y aparecen paquetes legislativos importantes. Desde el Pacto Verde Europeo a nivel continental, hasta la aprobación en España de la Ley de Cambio Climático en 2019. Nosotros pudimos poner en práctica muchos de los contenidos que imparto en clase y que he repetido toda la vida: que la arquitectura es un activo cultural y ambiental a la vez. Todo esto que he contado tantos años como presidente de ASA (Asociación Sostenibilidad Arquitectura) durante el periodo 2013-2021.
Hubo más o menos 120 propuestas para este solar. Recuerdo edificios que eran todo verde: la cubierta, las fachadas… frente a esta excitación de lo sostenible desde lo visual ganó el concurso una propuesta relativamente discreta, porque estas imágenes tan reproducidas del interior no las teníamos entonces.

Fotografía: Javier Callejas
T.: ¿Y por qué surge el lema de los Mil soles?
MADC: Creo que estuvimos especialmente finos con el lema que describe muy bien la propuesta. Es un lema muy poético. La propuesta es una parcela difícil, alargada, que está entre dos bloques: "Toldo verde" y "Edificios cebra". Los bloques "Toldo verde" son bajitos y los "Edificios cebra" son muy altos y arrojan sombra a la parcela del concurso en primavera, otoño e invierno, que es cuando necesitamos recibir el sol porque nos calienta. En verano, cuando en Madrid hay que evitarlo, el sol está tan alto que pega de pleno en la parcela y el edificio.
Como no teníamos el sol directo, no podíamos utilizar las estrategias bioclimáticas clásicas de captar la radiación solar, filtrarla, acumularla y distribuirla. En una parcela en la que no hay sol, salvo en verano, lo que hicimos fue diseñar mil dispositivos distintos que interceptaban, filtraban y reflejaban la luz hacia el interior. A eso le llamamos “los mil soles”.

Esquema bioclimático Primavera / Otoño, y reflexión de la luz sobre los planos de cubierta para iluminar el interior de la Biblioteca. Ver ampliación.
T: Y por eso las lamas blancas de la fachada.
MADC: Exacto, Las lamas blancas de madera capturan luz y la introducen. Os explico el mecanismo: el sur lo tenemos a la espalda. Por un lado, están las lamas, en la fachada noroeste (30 grados), que empiezan a funcionar desde finales de otoño hasta el final de la primavera, cuando el sol incide en esta fachada noroeste y lo introduce al interior: por la tarde la biblioteca tiene una luz anaranjada espectacular. Por otro lado, están los lucernarios, dispuestos de tal modo que sus faldones están contrapeados y en donde la luz, que llega por detrás, rebota sobre la chapa del faldón de un lucernario y lo redirige hacia el envés del lucernario contiguo, que a su vez lo baja hacia el interior de la biblioteca. Hay luz natural prácticamente todo el año, aunque vayas a las ocho de la mañana en invierno o a las seis de la tarde en verano. La biblioteca está configurada a través de numerosas “trampas para la luz”.

Fotografía: Javier Callejas
T: En cuanto a solución estructural y de la envolvente ¿ha habido cambios respecto a la idea inicial?
MADC: El edificio es, prácticamente, el mismo. La estructura de madera y la envolvente industrializada eran parte del concurso. Evidentemente, durante la fase de proyecto, tuvimos que definir los espesores de esas envolventes, porque todavía faltaban datos. Finalmente fue una envolvente de chapa de 28 cm que pasa por delante de toda la estructura de madera, protegiéndola del contacto con el exterior en todo momento.
El tema de que sea de chapa es, por un lado, porque es económica, pero también por el carácter del barrio. El barrio de Butarque, en Villaverde Bajo, fue una zona industrial de Madrid muy importante. En el siglo XIX, aquí estaban todas las fábricas de tejas y ladrillos con los que se construyó el barrio de Salamanca, por ejemplo. Posteriormente, en el siglo XX, se fueron cambiando a fábricas más tecnológicas, como la Standard Electric, la de motores Barreiros o la nave Torroja, que luego se rehabilitó y ahora es el espacio “La Nave”. Aquí había naves de chapa, pequeños talleres, incluso grande naves de Renfe, pero no había viviendas. Toda esta zona eran naves industriales que vertían al río, que está en la parte baja, y conectaban con el tren, que se sitúa en la parte intermedia del barrio. Eso ahora ha desaparecido; solamente hay viviendas y la biblioteca aparece como la única nave, como un marcador urbano, un testigo que te recuerda cómo era el barrio antiguamente. Richard Sennett habla de los “marcadores urbanos”, un concepto relacionado con la memoria que nos interesa mucho, más elaborado que la tendencia a los “landmarks” o los iconos. La biblioteca rememora y muestra, especialmente a los niños y jóvenes, que este era un barrio industrial.

Fotografía: MADC & Partners
Por otro lado, la estructura de madera era también una premisa: construir un edificio que fuera un acumulador de carbono. La madera secuestra carbono que se acumula durante la vida útil del edificio; lo almacena durante 50 o 100 años. Esas intuiciones que teníamos en el concurso las refinamos en el proyecto. Hicimos un predimensionado y dibujamos toda la estructura. Luego la ingeniería la validó en la fase de cálculos y justificaciones, pero no cambió apenas las dimensiones de los elementos. Después el fabricante ajustó el cálculo a su sistema de uniones con mínimas variaciones en relación al modelo original.

Fotografía: Javier Callejas

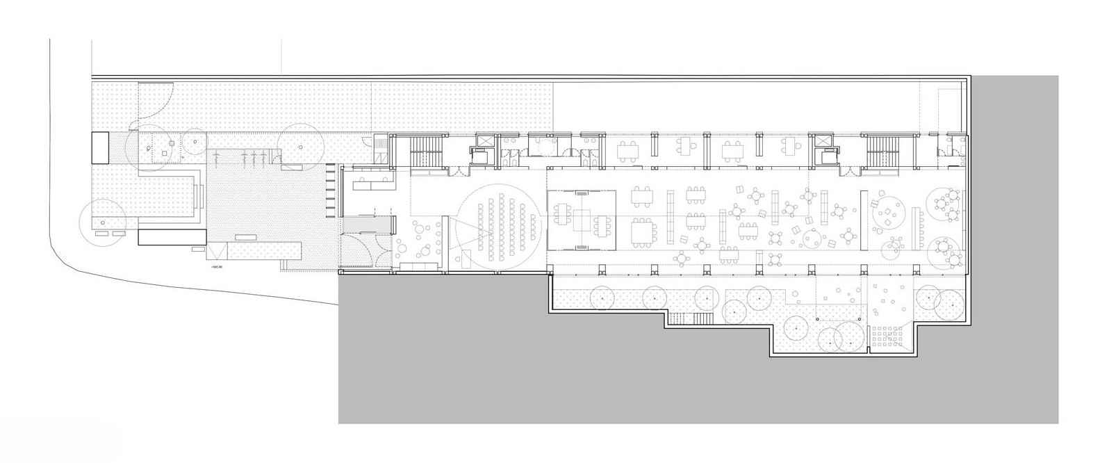
Planta baja. Ver PDF
T: El proyecto tiene una estrategia bioclimática muy potente, como has comentado. Hay una parte pasiva, que es lo que has estado explicando, y también una importante aportación activa.
MADC: Sí, lo primero que hacemos en el edificio es reducir la demanda de energía. Es decir, si no tuviera instalaciones, que demande la menor energía posible. Una vez que teníamos eso, teniendo en cuenta que es un edificio público, de pública concurrencia, con unas exigencias como la de renovación de aire constante, climatización y demás, queríamos que esa demanda o consumo final fuera aportado por fuentes renovables. Ahí apostamos por dos tipologías: la geotermia y la fotovoltaica. La geotermia está bajo el suelo y la fotovoltaica en la cubierta. De hecho, la fotovoltaica es la única instalación en la cubierta. Todas las demás instalaciones del edificio están en el subsuelo; no hay ninguna máquina en la cubierta, salvo las placas fotovoltaicas, que no pesan nada. Para la geotermia tuvimos que hacer un estudio de para saber si se podían perforar pozos geotérmicos, porque el río Manzanares está muy cerca y se podría producir un proceso de desecación del subsuelo del río. Por suerte, se pudo hacer geotermia y, además, resultó que era una zona muy buena porque el terreno es muy estable, precisamente porque el río estabiliza esas laderas. De hecho, la temperatura de cálculo que utilizamos en el proyecto, después de hacer el test de respuesta térmico TRT sobre el terreno, nos indicó que íbamos a tener más energía del terreno de la que habíamos proyectado teóricamente.

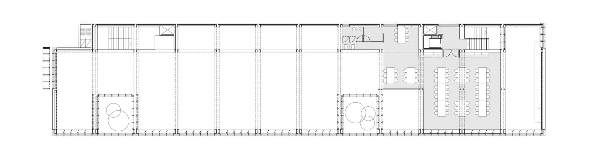
Planta primera. Ver PDF
Estas parcelas al lado del río se utilizaban para sacar arena y utilizarla en la construcción de Orcasitas, San Cristóbal y otros barrios del sur de Madrid. Después se rellenaban con restos y cascotes, por lo que hubo que vaciar la parcela entera, y una vez que alcanzamos la cota de fin de excavación, a unos ocho o nueve metros, hicimos los pozos geotérmicos, con una profundidad de 125 o 130 metros cada uno. El resultado es que tienes energía constante y gratuita para el resto de la vida útil del edificio. Por otro lado, teníamos la producción fotovoltaica en cubierta. Todos estos lucernarios se abren hacia el norte, pero al mismo tiempo se inclinan 30 grados, que es justamente la inclinación óptima hacia el sur para los paneles fotovoltaicos. Tenemos 45 kWp de potencia de producción fotovoltaica y otros 45kWp de geotermia, que han coincidido en ser iguales, sumando 90 kWp en total. Esto hace que el edificio sea autosuficiente gran parte del año. Estos sistemas están conectados con suelos radiantes y refrescantes de baja temperatura que climatizan hasta los dos metros, más o menos, y da una sensación especial. En verano parece que no hay aire acondicionado, sino que se está fresquito como en las iglesias antiguas.
El suelo refrescante radiante es más caro, pero hemos invertido el dinero en esto. Los acabados de la biblioteca pueden ser austeros, incluso un poco monásticos: madera y suelo de hormigón. En principio teníamos otros acabados en mente: un suelo de terrazo continuo, el mostrador era de una pieza del mismo terrazo… los acabados se simplificaron con el objetivo de invertir el máximo en los dispositivos ambientales, tanto pasivos como activos.

Entreplanta. Ver PDF

Fotografía: Javier Callejas
T: Las capas constructivas han transformado la arquitectura. Si hace dos décadas este detalle era frecuente en los cerramientos de edificios en Europa, por ejemplo, en Alemania, ahora es más habitual encontrarlo en nuestro entorno, como en este proyecto en que se incorporan múltiples membranas funcionales (estanqueidad, impermeabilización, barrera de vapor). ¿Podrías explicarnos el comportamiento de este sistema multicapa?
MADC: Los muros del cerramiento que tiene el edificio, que no son muchos, son de CLT. Ese muro de CLT va aislado por fuera, con lo cual no necesitaría barrera de vapor como tal. Primero, porque aquí dentro no se produce mucho vapor de agua y segundo, aunque se produjera, la temperatura ya está atemperada. Lo que sí tiene es una lámina de estanquidad al paso del aire, porque se ha construido con criterios Passivhaus, y como tiene que conectarse con las carpinterías, con el arranque del muro cortina, que está justo a la altura de las lamas blancas, tiene que encintarse. Por dentro, es un empanelado de madera. Hacia el exterior, ese muro de CLT lleva una lámina de estanqueidad, el aislamiento de lana de roca que al exterior lleva una lámina negra de protección UV, para que no se deteriore si le diera el sol, que también es impermeabilizante, y a partir de ahí lleva una cámara de aire y el cerramiento de chapa.

Sección constructiva. Ver PDF. (sección constructiva con leyenda, al final del artículo con plan suscriptor Premium)
T: Se ve cómo las fachadas se adaptan al contexto, porque la fachada sureste es muy diferente a la noroeste - la principal-
MADC: La fachada sureste es muy curiosa por su condición térmica: en verano el sol le pega directamente y en invierno las aceras se congelan porque está todo el día en sombra. La hemos planteado prácticamente ciega para resguardarla del sol de verano, con ventanas muy pequeñas y con una celosía de chapa microperforada por fuera para que tenga una luz natural, pero filtrada, y con una envolvente térmica muy potente. Las ventanas corresponden a los baños y servicios, que están veladas por esta celosía, y las que hay abiertas pertenecen a algunos despachos de planta baja.

Alzados. Ver PDF

Fotografía: Alicia F. Barranco. La envolvente de chapa metálica ondulada recuerda el pasado industrial del barrio. Chapa minionda de fachada: SOLDRAY.
No es una fachada con mucha visibilidad porque es una trasera de servicios que conecta con la rampa de coches del edificio vecino. Era el único sitio al que no queríamos mirar. Es un urbanismo de edificios altos con muros de cuatro metros al lado de las aceras estrechas y lleno de coches que no podíamos ocultar, pero sí al menos manipular su percepción cuando estás dentro del edificio. Además, en el interior se ha colocado una mampara de vidrio traslúcido contra la que acaban las estanterías de libros, ocultando la ventana practicable solo para mantenimiento y detrás, la chapa perforada. Así es la construcción de la fachada sur. Por el contrario, hacia los edificios de toldo verde, en frente de la otra fachada -la noroeste-, sí abrimos ventanales porque es una tipología que representa mejor la historia del barrio y nos interesa más.

Fotografía: Javier Callejas
T: ¿La carpintería de madera dónde aparece en la biblioteca?
MADC: La carpintería de madera aparece en sitios donde queríamos que el edificio saliese al exterior, como a buscarte. En el acceso principal, en la planta primera, todas las carpinterías, incluso los cortavientos, son de madera. En la fachada suroeste hay un ventanal de madera que es una ventana escaparate muy importante porque es la única que llega hasta la acera. En la planta baja, todas las ventanas que dan al patio inglés son también de madera. Esa era la planta destinada al área infantil y juvenil, que tenía salida al patio inglés. Son los tres sitios donde se optó por carpintería de madera, permitiendo que el edificio se abra al exterior y su estructura se comunique con el barrio a través del material.

Fotografía: MADC & Partners. La madera está presente en la Biblioteca, además de la estructura, en la carpintería: ventanas y puertas, de Carmave; en el mobiliario fijo: estanterias y panelados, así como las lamas verticales -lacadas en blanco- de la fachada, todo de Finsa.
MADC: Hay un aspecto interesante en cuento a esta preocupación por crear urbanismo y es que el concurso al que nos presentamos se refería al equipamiento de la biblioteca, pero no del espacio público de alrededor. A nosotros nos preocupaba mucho que la biblioteca tuviera una acera de un metro en la fachada noroeste, con coches aparcados y contenedores de basura. Era un sitio bastante deprimido cuando fuimos a verlo para hacer el concurso y decidimos incluir un planteamiento de rediseño urbano: peatonalizar la calle, quitar los coches de un lado, hacer una acera de 3 metros, meter vegetación hasta el río…. En mitad de este proceso aparece el proyecto de Madrid Bosque Metropolitano, que curiosamente llega hasta aquí, a la puerta de la biblioteca, y nos pareció la oportunidad perfecta para avanzar hasta Villaverde Bajo. Sin embargo, una vez que hicimos el concurso, todo eso quedaba fuera de nuestro alcance, la biblioteca acaba en la parcela y que incluso la acera, que también pertenece al Ayuntamiento de Madrid, es de otra área. Pero no nos rendimos y desarrollamos un anteproyecto de urbanización que pasamos al área de urbanismo, donde funcionarios implicados en la mejora de la ciudad, entendieron la necesidad de re-urbanizar la zona en paralelo. Entonces, el área de Vías, rediseña entera la calle Miguel Solas hasta la estación de Villaverde Bajo y en el tramo donde está la biblioteca introduce totalmente nuestro proyecto que ya ha ejecutado el Ayuntamiento de Madrid. Es un proyecto urbano que ha cambiado el barrio totalmente y que surge de un edificio: la gente baja hasta el río por un paseo verde junto a la biblioteca; los coches y las farolas se han ido al otro lado de la acera; en el lado de la biblioteca solo hay árboles y bancos… Es un pequeño milagro, pero también tiene que servir de reflexión sobre la exigencia de que los concursos de este tipo de equipamientos públicos tienen que incorporar el espacio público. Es algo impensable en cualquier ciudad europea. En este caso se pudo enmendar con mucho esfuerzo por parte de mucha gente, pero no debería ser así; todos los edificios públicos tendrían que incorporar en el concurso el rediseño del espacio público.

Fragmento del Proyecto Madrid Bosque Metropolitano. La Biblioteca se incorpora al mismo.
T: También está muy cuidada la iluminación de la biblioteca, que al ser un espacio de trabajo y estudio requerirá un estudio especial, supongo. ¿Cómo lo abordasteis?
MADC: Sí, hemos contado con varias casas que nos han hecho los estudios de iluminación. Queríamos que la iluminación artificial fuera lo más discreta posible y que tuviera dos funciones: una, crear escala. La luminaria circular, muy grande, que está a 2,60 m de altura, y el mobiliario, generaban la escala íntima de la “habitación de lectura”. Cuando no tenía todavía luminarias ni muebles parecía un hangar gigante. El mobiliario tampoco lo pudimos diseñar o elegir, pero si se ha respetado la idea de colocar mesas circulares debajo de los aros, y con estos dos elementos se crea una habitación virtual dentro de un gran espacio. Por otro lado, teníamos que conseguir iluminar el plano de trabajo: no queríamos iluminar el techo, ni hacer especialmente visible la estructura, y, además, debían estar a la altura de una escalera para poder cambiarlas fácilmente, por lo tanto, todas están a baja altura y están descolgadas.

Prueba de iluminación. Fotografía: MADC & Partners
Este plano de iluminación bajo nos producía una duda sobre si la cubierta estaría en penumbra al no iluminarla, pero en las simulaciones que hicimos, resultaba que la luz iba a rebotar en el plano horizontal, que está muy cerca (el suelo, las estanterías), e iluminaría el plano superior. En las fotos nocturnas, en las que se ve el interior con el envés de la cubierta iluminada, es la luz reflejada del suelo. Y esta es la última sorpresa de los mil soles, el suelo se convierte en otro sol artificial que refleja hacia arriba porque, además, esa luz que llega a los lucernarios se va hacia la acera, hacia la calle convirtiendo la biblioteca en una lámpara urbana por la noche.

Fotografía: Javier Callejas.
T: Y has comentado que el mobiliario no es vuestro, ¿ningún elemento?
MADC: Las fotografías con las que estamos presentando la biblioteca reflejan hasta donde hemos llegado nosotros. Son un registro de lo que nos han encargado y en ellas no hay mobiliario porque ya pertenece a otra área del Ayuntamiento, no a Obras. Sí hemos tenido una buena relación con las bibliotecarias, que eran las encargadas de elegir los muebles, y no ha quedado mal: colores discretos, estructura de tubo blanco, sillas Jacobsen de madera y mesas blancas, pero un equipamiento de este tipo no debería tener mobiliario puesto al azar. Cuando he visitado bibliotecas contemporáneas, como la Biblioteca Gabriel García Márquez en Barcelona, u otras en Bruselas o París, y más las históricas, el mobiliario se hace a medida. Nosotros hemos logrado incluir las estanterías, se ha quedado parte y todo lo que va en el perímetro, que es parte de la envolvente. Si se quitaban las estanterías, la fachada se perdía y agradecieron mucho el tenerlas ya incorporadas.

Fotografía: Javier Callejas. La Biblioteca es el primer edificio municipal propiedad del Ayuntamiento de Madrid que cuenta con la certificación ambiental VERDE de GBCe. Con una puntuación de 4 sobre los 5 niveles posibles.
T: Considerando que la biblioteca fue diseñada en 2018, ¿cómo se ha adaptado su programa a las demandas y necesidades funcionales actuales?
MADC: El concurso ya planteaba un programa muy abierto. Todavía no hemos alcanzado el concepto escandinavo de bibliotecas, que son verdaderos condensadores culturales para los barrios, pero tampoco se plantean las bibliotecas como el lugar de consulta de grandes tratados, sino que han evolucionado hacia espacios de encuentro, atención social y participación. Esta biblioteca se encuentra en ese camino, transitando de las bibliotecas clásicas a las más abiertas.
Participa más de la tipología abierta y ha beneficiado mucho que el desnivel de la calle lo hemos utilizado para meter una planta baja, a la que se accede desde la plaza, y una planta alta, a la que se accede desde la calle, ambas independientes. Así, el Ayuntamiento ha podido establecer dos usos distintos. En el concurso, llamamos "la nave social" a la planta baja, conectada con la plaza, de carácter más comunitario, para talleres, actividades y ruido. Por arriba se accedía a otra planta distinta, "la nave cultural", más enfocada a los libros, quizás con talleres de lectura de poesía y actividades relacionadas con ellos.
Yo voy bastante a la biblioteca; me siento allí a leer y me ha impresionado cómo se comportan los usuarios, y eso que hay muchos con edades comprendidas entre los siete u ocho años hasta los quince y dieciséis. Y este respeto se traslada a todo el edificio porque las fachadas llevan más de un año y medio acabadas y no tienen ni una pintada, y eso que había muchos prejuicios respecto al barrio. Y las bibliotecarias con las que he hablado también están muy contentas. Creo que me dijeron que los primeros quince días se habían prestado treinta mil libros, lo que da una idea del servicio que presta y lo necesario que era el equipamiento.
Autoría: Miguel Ángel Díaz Camacho
Localización: Madrid / Promotor: Ayuntamiento de Madrid
Colaboradores: Zoltan Valbuena (Coordinador del proyecto), Almudena Antolín y Jorge Gallego, arquitectos en MADC & Partners SLP; Rafael Valín (Director de Ejecución de Obra); CALTER (Ingeniería de Estructuras); ÚRCULO (Ingeniería de Instalaciones); ATEAM (Coordinación de Seguridad y Salud); CPV (Control de Calidad); Alejandro Bosqued (Certificador GBCe VERDE); Fernando San Román (Jefe de obra)
Fotografías: Javier Callejas
Empresa constructora: GYOCIVIL
Empresas destacadas:
Editado por:
Publicado: Oct 20, 2025