Para introducir luz natural en un estrecho bloque de viviendas del casco viejo de Pamplona, situado en una calle de poco más de 5 metros de anchura, Joseán Ruiz Esquiroz propone una solución singular: 'tejer' la fachada principal con ladrillos de vidrio. Esta estrategia se complementa con patios de luz que aseguran, además, una beneficiosa ventilación cruzada de las viviendas.

Fotografía: Imagen Subliminal (Miguel de Guzmán + Rocío R. Rivas).

Fotografía: Imagen Subliminal (Miguel de Guzmán + Rocío R. Rivas).
El proyecto de cuatro viviendas se sitúa en el corazón de Pamplona, a escasos 40 metros de la calle Estafeta, famosa por los encierros de San Fermín. La calle, como tantas del tejido gótico, apenas tiene 6 metros de anchura y una altura de cornisa de 15 metros.

Plano de situación.
Ante estas proporciones, el desafío era introducir luz y ventilación natural en unas viviendas de apenas 4,6 m de crujía y 18 m de profundidad. Para ello se utilizan dos elementos:
En primer lugar, el ladrillo macizo de vidrio tejido con ladrillo cerámico, recordando que la calle Tejería concentraba los artesanos medievales de tejas y ladrillos.
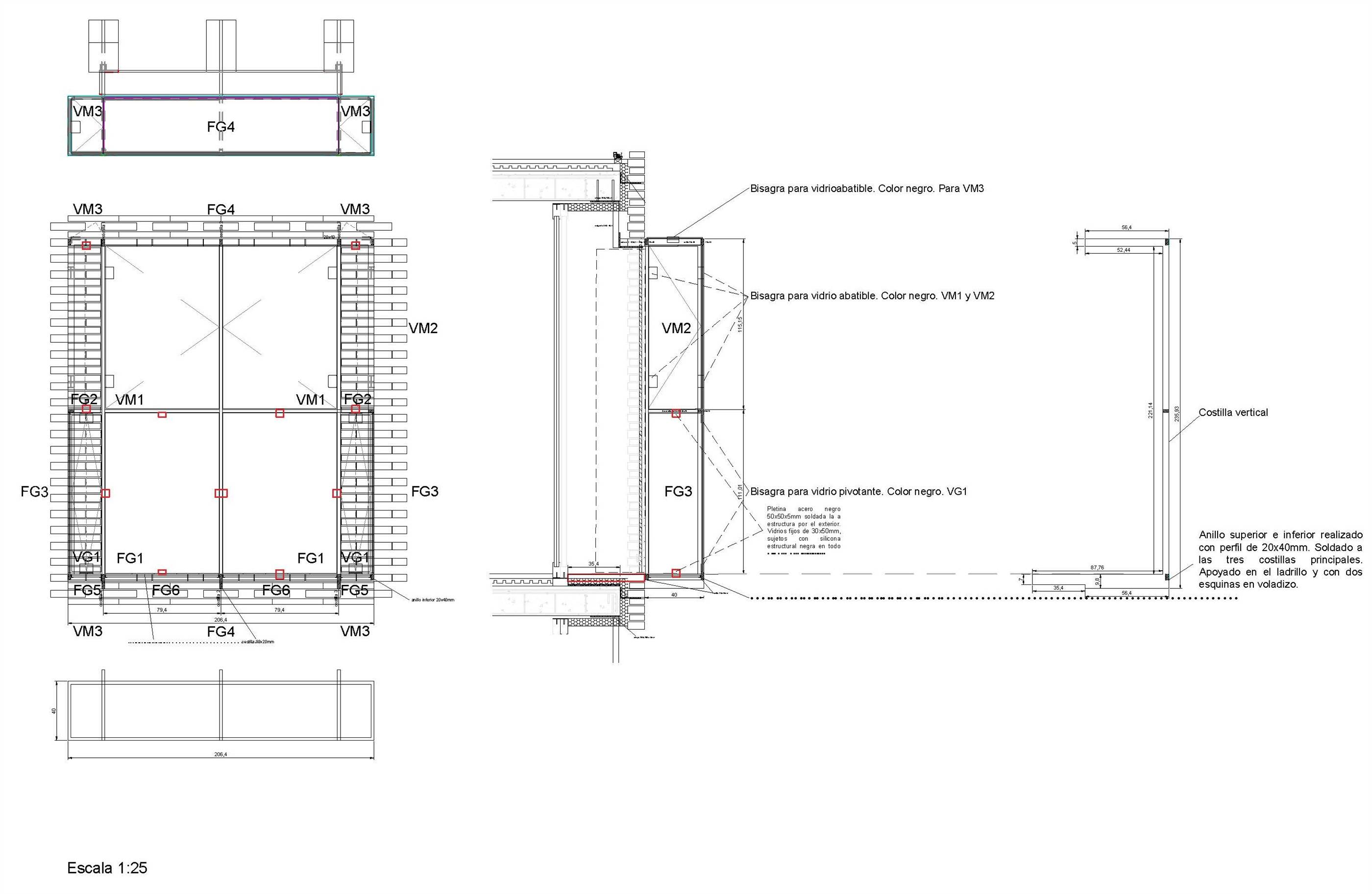
En segundo lugar, las galerías acristaladas de forja, reinterpretando las realizadas en el s. XIX, por su extrema ligereza. La fachada semitransparente de ladrillo se abre con tres galerías acristaladas, sustentadas por finas pletinas de acero. A esta piel exterior le sucede otra interior acristalada, creando una galería que aísla térmica y acústicamente de la calle, generando un filtro ajardinado.

Axonometría detalle galería. Ver PDF

Fotografía: Imagen Subliminal (Miguel de Guzmán + Rocío R. Rivas).

Fotografía: Imagen Subliminal (Miguel de Guzmán + Rocío R. Rivas).

Detalle galería. Alzado, planta y sección. Ver PDF

Fotografía: Imagen Subliminal (Miguel de Guzmán + Rocío R. Rivas).

En la fachada hacia el Casco Viejo de Pamplona se combinan tres formatos de ladrillo, construyéndose este tejido como una fachada cara vista hacia sus dos lados. Se realizaron ensayos en laboratorio de la capacidad de compresión de los ladrillos macizos de vidrio, así como de los morteros que los unían éstos a los de cerámica.

La estructura de las galerías acristaladas en voladizo se realizó soldando las pletinas en taller. Se prelacaron y montaron in situ para posteriormente instalar su perímetro de vidrio templado, cuyas bisagras debían permitir el cumplimiento de la limpieza desde el interior que exige el CT.

Planta baja.

Planta viviendas primera, segunda y tercera plantas.

Planta cuarta, vivienda dúplex.

Planta quinta, vivienda dúplex.

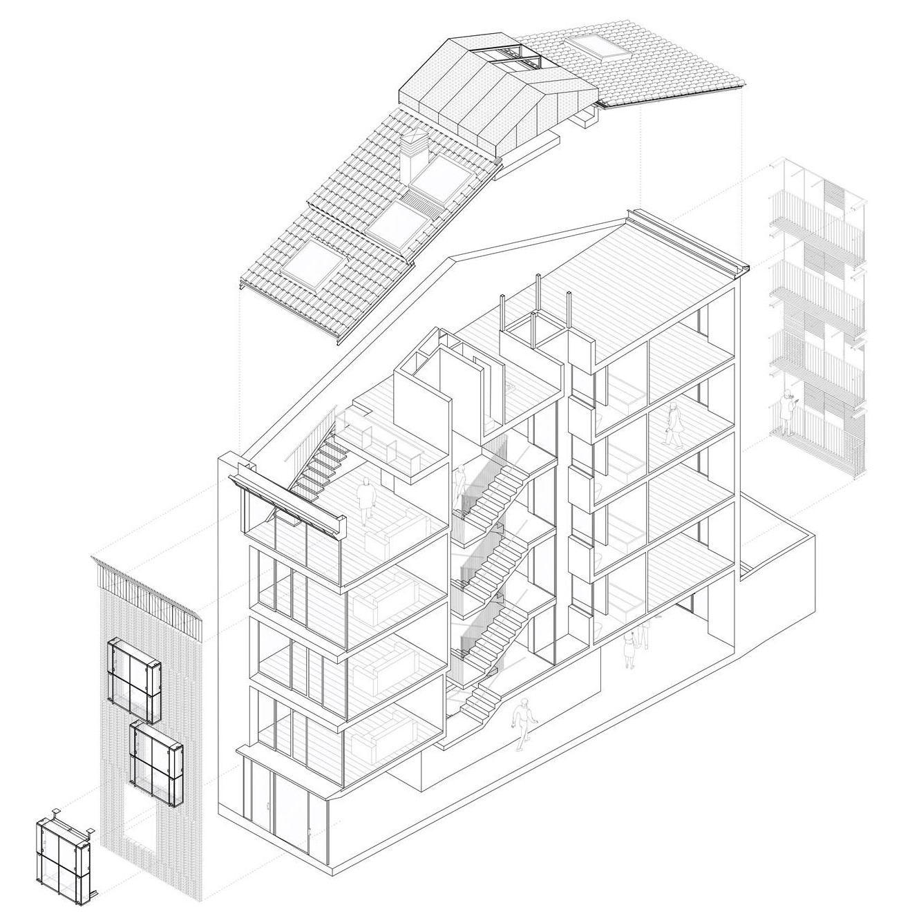
Axonometría.
La nueva estructura no se apoya en las medianeras, sino en la caja de escaleras y en los dos planos de las fachadas, en una operación en cierto modo contraintuitiva.

La construcción comenzó con una delicada demolición manual del edificio existente, comenzando por la cubierta y descendiendo despacio, pero manteniendo las vigas de madera para arriostrar las medianeras existentes.
La estructura comenzó con una losa de cimentación que debía soportar el núcleo central del edificio, y las zapatas en las líneas de fachada, que harían que la estructura se apoyase de manera inversa a la lógica entre medianeras. La razón era simple: las medianeras eran un collage de materiales que no ofrecían suficiente estabilidad estructural.

La estructura es de hormigón armado encofrado in situ. Conforme se elevaba, se iban desmontando los arrostramientos de las vigas de madera entre medianeras. La cubierta se realizó con una finísima losa de 8 cm de hormigón inclinada, con nervios de refuerzo en sus plegamientos.
La estabilidad estructural de los vecinos nos hizo mantener las medianeras, descubriendo un palimpsesto de piedra, ladrillo y madera. La propuesta deja visto este tapiz, estabilizando las zonas más degradadas con un mortero de cal.

Finalizada la demolición se realizó un escaneado 3D de la grieta de unos 4.6 metros cruzada por casi 100 vigas. Con sus dos millones de puntos, la nube espacial resultante fue de gran utilidad para reconfigurar con precisión la estructura y el proyecto.


El muro interior se limpió con chorro de arena y se le dio un fijador transparente. Fotografía: Imagen Subliminal (Miguel de Guzmán + Rocío R. Rivas).

En las zonas en las que las medianeras presentaba un acabado de adobe muy deteriorado, se optó por rasearlo con un mortero de cal de color ocre. Fotografía: Imagen Subliminal (Miguel de Guzmán + Rocío R. Rivas).
En la planta baja, los muros eran más gruesos, limitando el espacio del portal y del local. El primero gira hacia la luz cenital de la escalera común, que baña la rugosidad desnuda de la medianera. El segundo conecta la calle con un pequeño patio interior ajardinado cuyas paredes blanqueadas multiplican la luz.

Fotografía: Imagen Subliminal (Miguel de Guzmán + Rocío R. Rivas).

Fotografía: Imagen Subliminal (Miguel de Guzmán + Rocío R. Rivas).

Fotografía: Imagen Subliminal (Miguel de Guzmán + Rocío R. Rivas).

Fotografía: Imagen Subliminal (Miguel de Guzmán + Rocío R. Rivas).
Todas las viviendas son pasantes, orientando salones hacia la calle y dormitorios hacia el interior de manzana. Para evitar que la cocina invada el salón se permitió abrirla al corredor. También los armarios se colocan en este espacio. Ambos elementos se materializan en madera. Los dos dormitorios son de tamaño muy diferente, pudiendo unirse en un único espacio. El menor se abre completamente al corredor, conectando visualmente toda la profundidad de la vivienda.

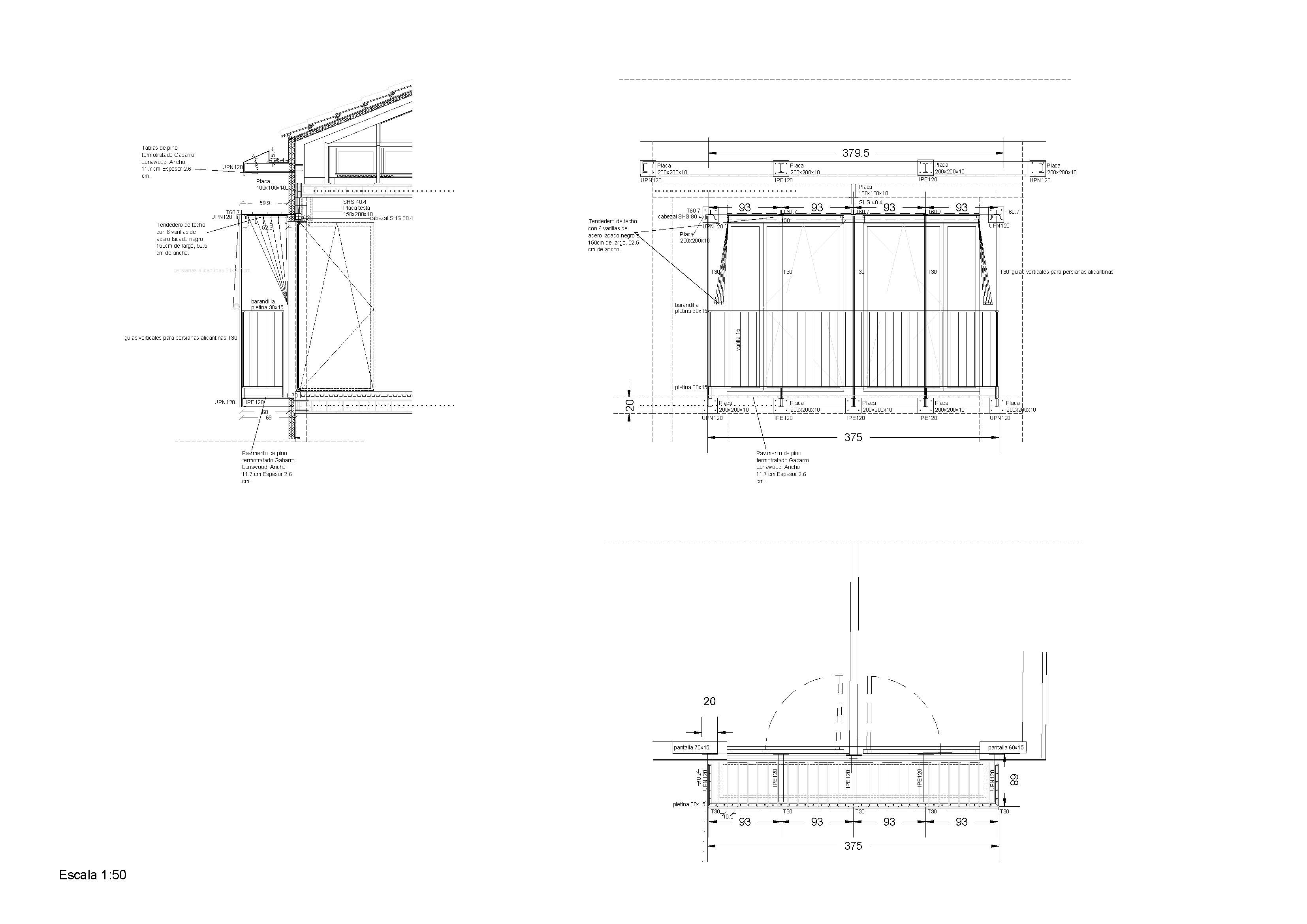
La fachada hacia el patio interior de manzana se resuelve con un Sate de 10 cm del que vuela una estructura de acero corten, que forma las terrazas corridas y de la que se descuelgan las alicantinas de madera y los tendederos de aluminio lacado negro. Fotografía: Imagen Subliminal (Miguel de Guzmán + Rocío R. Rivas).

Fotografía: Imagen Subliminal (Miguel de Guzmán + Rocío R. Rivas).

Fotografía: Imagen Subliminal (Miguel de Guzmán + Rocío R. Rivas).

Detalle fachada posterior. Alzado, planta y sección. Ver PDF
La fachada interior se abre con las mayores balconeras permitidas, dando acceso a una terraza protegida con alicantinas de madera.
Intentando reducir la escala del edificio, la cuarta planta se oculta en la fachada de la calle detrás de la cornisa de madera, pero en realidad contiene una contraventana que se abre en librillo hacia una galería interior. La cubierta inclinada permite la aparición de un salón con doble altura, con un despacho en el altillo y un dormitorio en suite iluminado por un patio ajardinado privado. La cubierta se perfora con tres lucernarios que iluminan el salón, el altillo y el dormitorio abuhardillado.

Fotografía: Imagen Subliminal (Miguel de Guzmán + Rocío R. Rivas).

Fotografía: Imagen Subliminal (Miguel de Guzmán + Rocío R. Rivas).

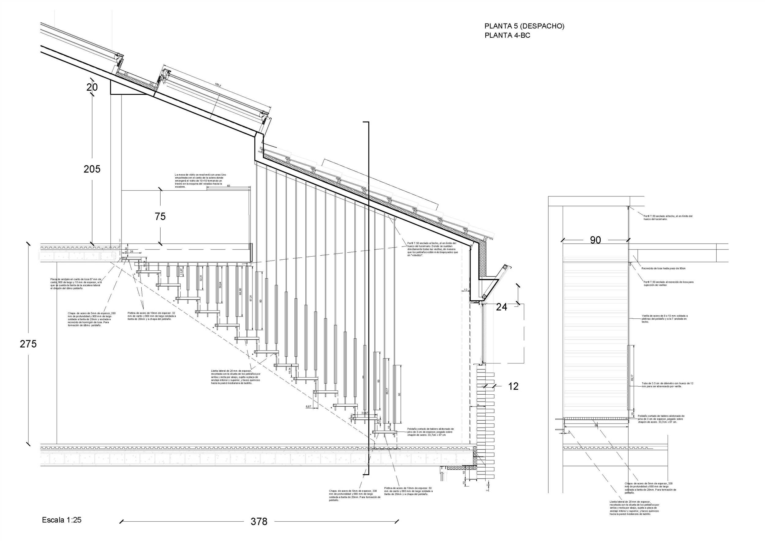
Detalle escalera. Ver PDF

Fotografía: Imagen Subliminal (Miguel de Guzmán + Rocío R. Rivas).

Para la contraventana en librillo de planta cuarta se confió en una empresa alemana especializada elementos de protección solar, pero forrada de la misma madera termotratada de Lunawood que el alerón y el suelo de las terrazas y el patio interior del local. En el interior, las puertas y las cocinas están revestidas con el mismo panel de madera. Fotografía: Imagen Subliminal (Miguel de Guzmán + Rocío R. Rivas).
La climatización del edificio se confía a un sistema de aerotermia que aprovecha la inercia térmica de las losas de hormigón y las medianeras, y que ha obtenido la máxima calificación energética.
Ha sido un proyecto cocinado a baja temperatura en el que ha costado mucho convencer a los agentes implicados. El objetivo era simplemente habitar mejor una pequeña parcela entre medianeras, tan común en nuestros cascos históricos europeos, sin recurrir al pastiche historicista y llevando al límite la interpretación de la normativa.

Fotografía: Imagen Subliminal (Miguel de Guzmán + Rocío R. Rivas).
Arquitecto: Josean Ruiz Esquíroz-Ruizesquiroz arquitectos
Equipo arquitectura: Enrique Morillo, Marta Muñoz, Roberto Romero, Sandra Ojea. Arquitecto Técnico: Miguel Larraburu- David Martínez Coordinación obra: Fernando Ruiz Gan Estructura: Josep Agustí
Promotora: Maestroarena Proyectos y Promociones
Contratistas: Maestroarena-IZ4-Kapana
Laboratorio ensayos ladrillo de vidrio: Iona
Fotografías: Imagen Subliminal (Miguel de Guzmán + Rocío R. Rivas)
Año construcción: 2020-2025
Superficie construida: 588,4 M2
Empresas destacadas
Lunawood, madera termotratada
Jung Electro Ibérica, mecanismos serie LS990
Editado por:
Publicado: Dec 29, 2025