Ineren Estudio, formado por los arquitectos Roberto Fuentes y Alberto P. Corbella acometen dos intervenciones en la costa tinerfeña para mejorar el acceso a las playas de Benijo y Lima, con gran sensibilidad hacia el paisaje y el entorno, tanto en la primera, situada en el Parque Rural de Anaga, y por lo tanto paisaje protegido, como en la más reciente actuación en la playa de Lima, perteneciente al municipio de Arafo, en un contexto en el que coexiste infraestructuras de gran escala con zonas de autoconstrucción residencial.
El Parque Rural de Anaga ocupa el extremo nororiental de la isla de Tenerife. Tiene una extensión de 48.727 hectáreas con una riqueza y diversidad extraordinaria de fauna y flora por lo que fue nombrada Reserva de la Biosfera en 2015, con zonas de especial protección. El macizo de Anaga alcanza una altura de 1.020 metros sobre el nivel del mar y forma una península que, a pesar de no tener una altura elevada, si cuenta con desniveles muy pronunciados, que en la costa forman importantes acantilados, entre los que se abren algunas playas como la de Benijo, al norte del parque, de 300 metros de longitud.

Fotografía: José R. Oller.
La actuación se localiza en la Playa de Benijo, en el litoral nordeste de la isla de Tenerife, dentro del ámbito protegido del Parque Rural de Anaga, uno de los enclaves de mayor valor paisajístico y ambiental del archipiélago. Este territorio, caracterizado por una topografía abrupta, una geología volcánica muy marcada y una fuerte relación mar-montaña, conforma un paisaje de alta fragilidad ecológica y gran potencia visual.
La propuesta se enmarca dentro del programa ‘Tenerife y el Mar’, impulsado por el Cabildo de Tenerife, orientado a mejorar la accesibilidad, la seguridad y la calidad espacial de los accesos al litoral, compatibilizando el uso público con la preservación de los valores naturales.
En este contexto, el ámbito de actuación corresponde al trazado del sendero preexistente que conecta el núcleo de Benijo con la playa, en elevado grado de deterioro, fruto de la erosión natural y la falta de mantenimiento.
Desde esta realidad, la intervención se concibe como una oportunidad de renovación paisajística, orientada a cualificar el lugar mediante una actuación capaz de ordenar el tránsito, integrarse en la ladera y reforzar la lectura del paisaje costero.

Playa de Benijo. Antes de la intervención.

Fotografía: José R. Oller.
El objetivo principal de la actuación es la recuperación y consolidación del sendero existente, de aproximadamente 200 metros de longitud y 65 metros de desnivel, que conecta el pueblo de Benijo con la playa.
Trazado original. Ver pdf.
El objetivo es consolidar esta traza y hacerla legible como un perfil más de la montaña, capaz de dialogar con las líneas naturales del relieve y con los estratos geológicos que caracterizan el paisaje de Anaga.
La propuesta asume la lógica del trazado original, respetando sus quiebros, pendientes y puntos de relación visual con el mar. Los trabajos se centran en la estabilización del recorrido, la definición clara de su sección y la eliminación de situaciones de riesgo asociadas a desprendimientos, procesos de erosión y pasos inestables. De este modo, el sendero recupera su condición de infraestructura básica de acceso, mejorando la seguridad y la accesibilidad peatonal y garantizando la continuidad del recorrido sin alterar el carácter natural y paisajístico del entorno.
Acceso a la playa antes de la intervención.
Para ello, se restauran e integran los distintos elementos de piedra preexistentes —muros de mampostería, escaleras y pavimentos de piedra hincada—, incorporando además elementos de madera reciclada que cosen y dan continuidad al trazado, tanto en la estabilización de suelos como en la formación de elementos de protección frente al acantilado.

Trazado de la intervención. Ver pdf.

Sendero original de piedra hincada.

Fotografía: José R. Oller.
La combinación de ambos materiales permite regenerar el sendero desde una lógica constructiva coherente con el entorno, reforzando su identidad material y su vínculo con el territorio.

Fotografía: José R. Oller.
La sostenibilidad de la intervención se fundamenta en la recuperación y reutilización de los elementos existentes, reduciendo la necesidad de nuevas aportaciones materiales y minimizando el impacto sobre un entorno de alta fragilidad ambiental. Esta estrategia permite regenerar el sendero desde una lógica constructiva eficiente y coherente con el carácter del lugar, bajo principios de economía circular y gestión responsable de los recursos, incorporando soluciones en madera de bajo impacto, de origen reutilizado y fácilmente desmontables.

El proyecto entiende el sendero como una infraestructura ligera, al servicio del territorio, convirtiéndolo en un elemento estructurador y potenciador del paisaje, reforzando la relación entre el pueblo Benijo con la playa.
La actuación de Mejora y acondicionamiento del acceso a la playa de Benijo tuvo como objetivo principal la recuperación y consolidación del sendero existente, partiendo siempre de criterios de mínima intervención, integración paisajística y reutilización de los elementos presentes en el lugar. Bajo estas premisas, la intervención se desarrolló conforme a los siguientes criterios:
En primer lugar, todos los elementos preexistentes de piedra basáltica —muros de mampostería, escalones y pavimentos de piedra hincada— fueron rehabilitados y, en aquellos casos en los que fue necesario, repuestos utilizando exclusivamente la piedra encontrada en el propio entorno. De este modo se garantizó la continuidad material y constructiva del sendero original.
En los tramos donde no existían elementos pétreos consolidados, se incorporó una nueva sección ejecutada con madera reciclada, destinada a pavimentos, barandillas y pasamanos, con distintas secciones según su función. Todos estos elementos se fijaron mecánicamente mediante tornillería de acero inoxidable AISI 314. La madera, tratada en fábrica mediante autoclave, no recibió ningún tipo de barniz ni protector superficial, con el objetivo de permitir su envejecimiento natural y su progresiva integración cromática y material con el entorno.
En relación con la preparación del terreno, previamente a la colocación de las nuevas secciones de madera se realizaron movimientos de tierra muy controlados, destinados únicamente a la regularización y compactación de la base. Sobre esta se dispuso un geotextil de protección y, posteriormente, se instalaron los elementos de madera, anclados al terreno mediante varillas de acero corrugado hincadas a una distancia aproximada de 1,20 m, garantizando así la estabilidad del conjunto sin recurrir a soluciones agresivas.

Trazado tramo 1-2-3. Ver pdf.

Mirador. Fotografía: José R. Oller.

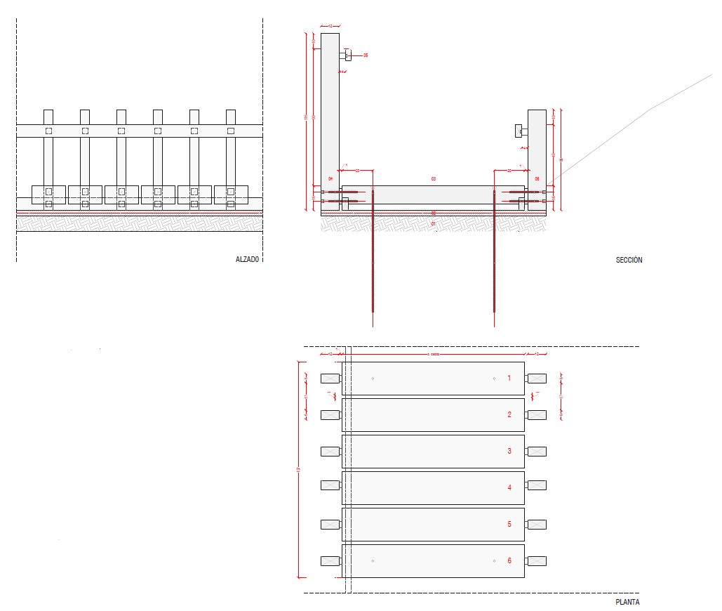
Barandilla tramo 1. Ver pdf.
01.Escalones de piedra hincada existente: reposición / recuperación.
02.Dados de hormigón en masa 30 x 30 x 30 cms bajo pavimento de piedra para anclaje de viga de madera a modo de durmiente para recibido de barandilla, dispuestos a cada 1,50 m aprox.
03.Viga de madera de 8 x 15 cms fijada a dados de hormigón en masa, mediante varilla roscada y resinas de 2 componentes (x2), incluso tapones de madera en ocultación / protección de anclajes. Especificaciones de la madera y anclajes definidas en documento de Medición y Presupuesto.
04.Barandilla compuesta por listones de madera de 12 x 6 cms y altura sobre N.P.T. de 100 cms. Se fijarán lateralmente a la viga "durmiente" de madera mediante tornillería de acero inox. definida en documento de Medición y Presupuesto, incluso tapones de madera en ocultación / protección de anclajes.
05.Pasamamos - arriostramiento de madera de 10 x 4 cms, incluso biselado superior (r=2cms) para facilitar el agarre de las personas.
06.Muro de mampostería e: 40 / 50 cms s. casos y h. sobre N.P.T 50 cms.
07.Barandilla compuesta por listones de madera de 12 x 6 cms y altura sobre muro de mampostería de 50 cms. Se fijarán verticalmente al muro mediante varilla roscada y resinas de 2 componentes, definida en documento de Medición y Presupuesto, incluso tapones de madera en ocultación / protección de anclajes.

Barandilla tramo 2. Ver pdf.

Fotografía: José R. Oller.

Fotografía: José R. Oller.

Trazado tramos 3-4-5.. Ver pdf

Barandilla tramo 5. Ver pdf.
01.Terreno compactado.
02.Cama de asiento para recibido de traviesas de madera, incluso geotextil de protección en separación con el terreno compactado.
03.Traviesas de madera de sección 22 x 12 x 120 en casos de rampa y pequeños escalones; y 22 x 16 x 120 en casos de escaleras con desniveles pausados. Las traviesas irán colocadas sobre rastrel inferior de 8 x 4 cms dispuesto según esquemas adjuntos al detalle s. sección de traviesa. Cada 6 traviesas aprox. se anclarán al terreno mediante varillas de acero corrugado.
04.Barandilla compuesta por listones de madera de 12 x 6 cms y altura sobre N.P.T. de 100 cms. Se fijarán lateralmente mediante tornillería de acero inox. definida en documento de Medición y Presupuesto, incluso tapones de madera en ocultación / protección de anclajes.
05.Pasamamos - arriostramiento de madera de 10 x 4 cms, incluso biselado superior (r=2cms) para facilitar el agarre de las personas.

Fotografía: José R. Oller.

Fotografía: José R. Oller.
La mejora de la accesibilidad a la playa de Lima también ha sido promovida por el Cabildo de Tenerife dentro del programa "Tenerife y el Mar". Sin embargo, el carácter urbano de la playa de Lima, dentro del municipio de Arafo, determinan materiales y elementos.

Fotografía: José R. Oller.
La intervención se sitúa en la Playa de Lima, en el término municipal de Arafo, en un ámbito costero en contacto directo con el asentamiento de autoconstrucción de La Viuda, enclavado en el Polígono Industrial Valle de Güímar, uno de los principales enclaves productivos del litoral sureste de la isla de Tenerife. Este entorno combina infraestructuras de gran escala con espacios residenciales informales, generando una relación fragmentada entre actividad industrial, paisaje y costa.
El núcleo de La Viuda responde a una morfología propia de los asentamientos de autoconstrucción, donde la edificación se ha desarrollado de manera progresiva y espontánea, condicionada por la topografía, la proximidad al mar y la ausencia de planificación urbana.

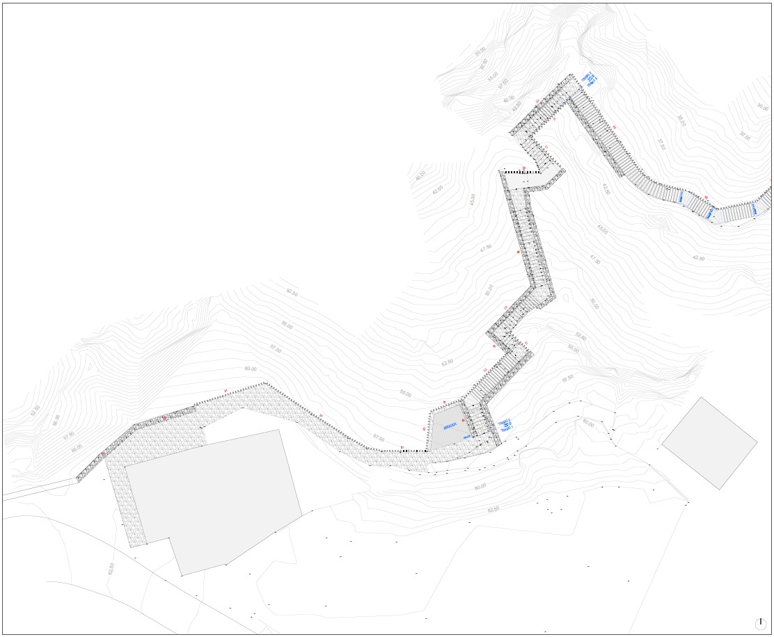
Planta general. Ver pdf.
En este contexto, la intervención se localiza en el talud definido entre la carretera y la costa, un espacio residual caracterizado por una topografía acusada y una marcada fractura visual y funcional con el paisaje litoral. La propuesta, enmarcada dentro del programa Tenerife y el Mar, aborda este ámbito como una oportunidad de renovación urbana y paisajística, mejorando el acceso peatonal y contribuyendo a la integración de un territorio de alta complejidad geomorfológica y desigualdad social.

Playa Lima. Estado inicial.

Playa Lima. Estado inicial.
La intervención se apoya en la topografía existente como elemento estructurador del proyecto, utilizando el bancal como estrategia de adaptación al medio en ladera. Este sistema de abancalamiento, ampliamente arraigado en la construcción del paisaje agrícola insular, establece una continuidad conceptual con la tradición, permitiendo resolver el desnivel (aprox. 10 m) mediante una sucesión de terrazas vegetales contenidas por muros de mampostería de piedra basáltica.

Maqueta.

Fotografía: José R. Oller.
Asimismo, se genera un recorrido longitudinal resuelto mediante una escalera que atraviesa los distintos bancales, generando una transición gradual entre la vía y el litoral y disolviendo el talud en su condición de límite físico. Este recorrido, que establece una relación directa entre arquitectura y paisaje, finaliza con un pequeño espacio de estancia a modo de solárium, consolidando una solución constructiva coherente con el lugar y su tradición material.

Secciones transversales. Ver pdf.
La actuación de acondicionamiento del acceso a la playa de Lima se plantea desde una combinación de criterios constructivos, funcionales y de integración paisajística, utilizando materiales durables y acordes con el entorno insular.
En primer lugar, se emplea piedra basáltica de la propia isla, procedente de canteras cercanas, reforzando la coherencia material con el paisaje volcánico y reduciendo el impacto derivado del transporte de materiales.

Fotografía: José R. Oller.

Fotografía: José R. Oller.
El pavimento de toda la intervención —incluyendo escaleras, solárium y graderíos— se ejecuta mediante madera tecnológica, seleccionada por su durabilidad, bajo mantenimiento y buen comportamiento frente a la exposición exterior. La barandilla se realiza mediante torsión de barras de acero corrugadas, de nulo mantenimiento, y para el pasamanos se ha utilizado madera de Iroko, fijado a pletinas de acero cortén, con un tratamiento superficial de barnices al agua, incoloros y a poro abierto de Cedria.

Fotografía: José R. Oller.
La barandilla se concibe como un elemento vertebrador del proyecto, acompañando de forma continua el desarrollo de la escalera y actuando como un hilo conductor que cose la intervención física y metafóricamente: en la discontinuidad generada por el recorrido entre los bancales; y por la fractura física previa entre viario y litoral, entre espacio público y paisaje. Frente al carácter pétreo de los muros de mampostería vinculados a la tradición constructiva insular, la barandilla introduce un lenguaje asociado a la construcción industrializada, estableciendo un diálogo directo con el entorno del polígono industrial donde se inserta.

Barandilla. Detalles constructivos. Ver pdf. En escaleras y zonas de solárium, se dispuso tarima para exterior de madera tecnológica de 138x23 mm montada sobre rastreles en “H” de 50x50 mm del mismo material, fijada mediante clips y tornillería de acero inoxidable no ferrítico AISI 316, incluyendo los remates y ayudas de albañilería necesarios.
En los bordes de los escalones se colocó mamperlán recto de la misma madera tecnológica que incorpora un estriado de 50 mm conforme a normativa y dispone además de una franja acanalada de 5 cm de ancho, separada 3 cm del borde del peldaño, siguiendo las especificaciones de la Orden TMA/851/2021, de 23 de julio, relativa a las condiciones básicas de accesibilidad y no discriminación en los espacios públicos urbanizados. Esta solución se extiende también a los rellanos de embarque y desembarque de los dos tramos de escalera, permitiendo la correcta utilización del espacio por parte de personas con discapacidad visual.

Fotografía: José R. Oller.

Fotografía: José R. Oller.

Fotografía: José R. Oller. El doblado de las varillas se realizó en taller, mientras que el mecanizado y ajuste final se ejecutaron durante la obra. Inicialmente se colocaron las varillas verticales de anclaje a la solera de hormigón que conforma la base de la escalera; posteriormente se enhebraron las varillas longitudinales que arriostran el conjunto, realizando la instalación progresiva varilla a varilla con ayuda de vitolas, garantizando la equidistancia entre elementos y las alturas necesarias para la posterior colocación de los pasamanos.
Su configuración responde, además, a las condiciones climáticas del lugar, caracterizado por la fuerte exposición a los vientos alisios del noreste. El diseño permeable permite ‘peinar’ el viento sin generar efecto pantalla, manteniendo al mismo tiempo la seguridad y accesibilidad en todo su recorrido. La repetición rítmica de las varillas evoca referencias culturales ligadas al paisaje y al viento, incorporando una dimensión simbólica que refuerza la relación entre arquitectura y entorno.

Fotografía: José R. Oller.
La utilización de varillas de acero cortén recicladas, procedentes del desecho de la actividad industrial cercana, introduce criterios de sostenibilidad basados en la reutilización y el reciclaje, integrando principios de economía circular como parte activa de la solución constructiva.


Pérgola. Detalle. Ver pdf.
La intervención incorpora especies vegetales autóctonas, propias del ecosistema cardonal–tabaibal, característico de las zonas bajas y costeras de la isla de Tenerife. Este ecosistema, adaptado a condiciones de elevada insolación, salinidad ambiental y escasa disponibilidad de agua, constituye uno de los paisajes vegetales más representativos del litoral canario. Su implantación refuerza la integración paisajística de la actuación y garantiza una respuesta coherente con las condiciones climáticas y ambientales del lugar.

Fotografía: José R. Oller.
En coordinación con el Servicio de Medio Ambiente del Ayuntamiento de Arafo, cuyos técnicos asesoraron en la selección de especies, marcos de plantación y necesidades de riego, se introducen especies de porte estructural y alto valor simbólico, como el drago, el cardón, la tabaiba y el tarajal, combinadas con vegetación de menor escala como la leña buena, el salado, el romero marino, la lavanda y el cardoncillo. Todas ellas presentan una alta capacidad de adaptación a contextos de baja disponibilidad hídrica. Esta selección vegetal minimiza las necesidades de riego y mantenimiento, favoreciendo un modelo de gestión sostenible y resiliente, coherente con los principios de eficiencia y adecuación ecológica de la intervención.

Fotografía: José R. Oller.
Situación: Parque Rural de Anaga. Tenerife
Promotor: Cabildo de Tenerife
Arquitectos: Ineren Estudio: Roberto Fuentes; Francisco J. García Navarro (colaborador) Alberto P. Corbella (colaborador).
Arquitecto Técnico: Rafael Bocanegra Sánchez
Empresa Constructora: Transportes Orlatrans S.L.
Fechas: 2020 – 2022
Madera reciclada: Fitor Forestal
Situación: Polígono Industrial Valle de Güimar. Tenerife
Promotor: Cabildo de Tenerife
Arquitectos: Ineren Estudio. Roberto Fuentes; Alberto P. Corbella (colaborador).
Arquitecto Técnico: José M. Bethencourt
Empresa Constructora: Transportes Orlatrans S.L.
Fechas: 2022 – 2025
Madera tecnológica: Visendum.
Barnices barandilla de madera de iroko: Cedria: una capa de CEDRIA FON TIN, lasur mate al agua, de gran fluidez, destinado a teñir y proteger la madera. Dos capas de CEDRIA BARNI SOL, lasur incoloro al agua, a poro abierto y con alto contenido en sólidos.
Fotografías: José Oller
Editado por:
Publicado: Mar 26, 2026