El Pabellón biblioteca es el último edificio que el estudio Rojo/Férnandez-Shaw ha incorporado al Campus del Runnymede College en Madrid. La madera va a caracterizar un espacio singular para la lectura y estudio, así como la retícula de vigas y pilares –en madera laminada– que se concibe como una cesta, con uniones realizadas sin piezas metálicas poniendo en valor el material con procesos constructivos propios de la madera.

Fotografía: RFS
El texto que a continuación aparece en azul procede de una conversación en torno al proyecto, entre Luis Rojo, de Rojo/Fernández-Shaw arquitectos, con Berta Blasco y JM. Marzo de Tectónica.
Tectónica: Aunque la publicación se centra en el pabellón ‘biblioteca’ del colegio, como el proyecto se engloba en una intervención mucho más antigua y compleja, nos gustaría que nos hicieras una breve presentación del proyecto completo del Runnymede College y del proceso en el que habéis estado implicados tantos años.
Luis Rojo: Este trabajo empezó como un concurso por invitación de este colegio, que es una empresa familiar fundada en los años 60. Los padres de los actuales directores fundaron en el barrio de El Viso en Madrid un colegio pequeño donde daban educación siguiendo el programa de estudios inglés. Organizaron el concurso, al que invitaron a cinco equipos de arquitectos, en el año 2016-2017. Como consecuencia de ese concurso, que ganamos Begoña y yo, se ha desarrollado este proyecto desde 2017 hasta ahora, aunque todavía no está acabado. Es un proceso del que ya hablaremos, bastante interesante desde el punto de vista del planteamiento del proyecto y de su ejecución, no solo logísticamente, sino también conceptualmente, porque se ha construido con el colegio en marcha. El colegio nunca ha parado de funcionar entre el 1 de septiembre y el 24 de junio.
El colegio original se trasladó a esta propiedad en el Soto de la Moraleja en los años 90 o 2000. La propiedad actual, en realidad, está formada por dos parcelas bastante largas y estrechas que pertenecían a dos antiguos colegios: la mitad derecha (mirando desde el acceso por la calle), que tiene un edificio de ladrillo con una cubierta a cuatro aguas, era un antiguo colegio Montessori, que es el primero que alquilaron y ocuparon con varias edificaciones auxiliares prefabricadas; y a la izquierda estaba un colegio de Legionarios de Cristo que constaba de varias edificaciones de las que hemos mantenido las cimentaciones y parte de las estructuras de hormigón. Con el tiempo compraron primero la parcela del antiguo Montessori y diez años después también adquirieron la colindante.

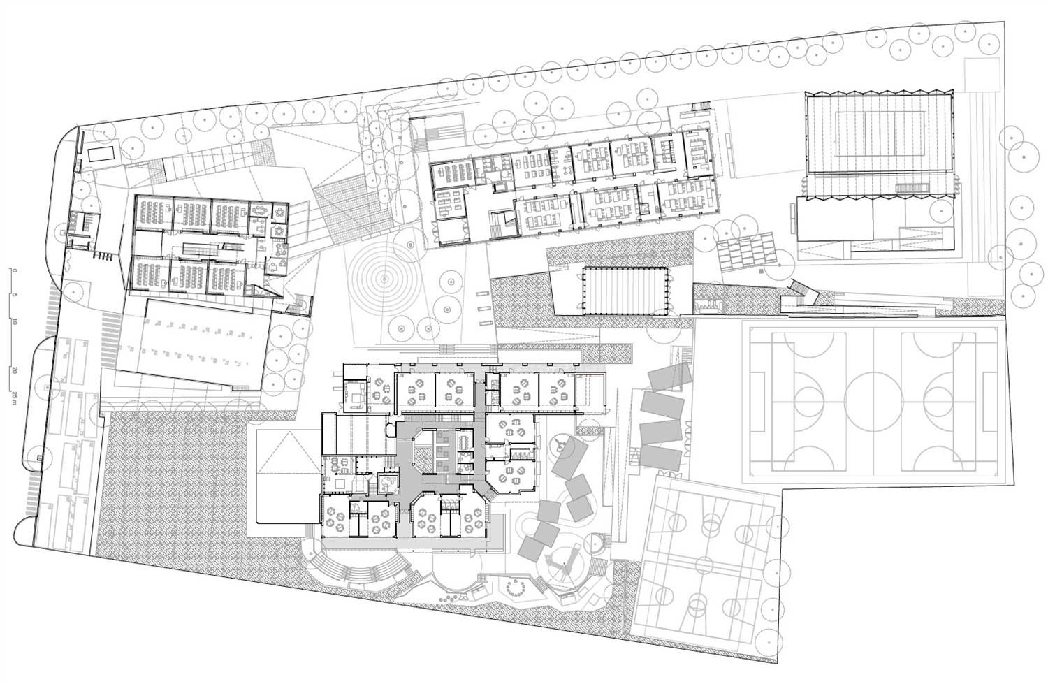
Axonometría aérea. Runnymede College Campus. Orientación oeste-este (izquierda-derecha) desde la calle de acceso.
Cuando nosotros empezamos a trabajar y hacemos la propuesta del concurso, las dos parcelas todavía no se habían unido, no se ha hecho la agregación. Cada una de ellas tiene su propia forma e historia, y la relación entre las dos es parte de lo que pregunta el concurso: cómo unirlas y cómo operar con ellas como un conjunto, teniendo en cuenta las edificaciones que había.
Esa doble condición implica, primero, que el colegio siempre ha estado en marcha y las edificaciones nuevas, las obras, operaciones e intervenciones se tenían que hacer siempre por fases y en periodos de tiempo muy cortos. Como consecuencia, aparece como necesaria la prefabricación, industrialización y serialización para poder construir parte de los edificios, las estructuras y los cerramientos en talleres y traerlos a la obra. Los edificios se construyeron en periodos de tiempo que nunca han sobrepasado los seis o siete meses. Algunos son más pequeños, pero otros son más grandes. En España, edificios de este tamaño a veces tardan un año y medio o dos en construirse en condiciones normales.

Runnymede College Campus. Sección transversal. Ver PDF
La gestión del problema logístico constructivo me hizo recordar que nunca fui a clase de Organización de obras y empresas porque no lo consideré importante, estúpido de mí, porque realmente en esta obra hemos ido haciendo las cosas que podíamos organizar. La más difícil de todas, que es la que más nos interesa, era que, aunque nos resultaba más fácil centrar la obra en objetos o volúmenes individuales o transformaciones de edificios que ya existían, a nosotros lo que más nos importaba era la reunificación de todo el conjunto, la unidad de toda la parcela como una identidad de sistemas de relación, de espacios sociales, espacios para crear vínculos entre estudiantes de distintas edades, profesores, etcétera. Lo que define la arquitectura de esta propuesta es lo que hay entre los edificios, que los agrega en un espacio abierto, público y naturalizado que actúa como seña de identidad.

Fotografía: RFS
Una idea que a nosotros nos interesa muchísimo es que un colegio es un microcosmos social. Es una especie de experimento social en donde se encuentran personas distintas, distintas edades, distintas condiciones, distintos intereses, distintas individualidades que tienen que aprender a convivir con ciertas normas, objetivos, horarios y una cultura, en este caso la británica. Nos parecía que el colegio era un espacio común y abierto, más que un conjunto de edificios cerrados dedicados al mundo académico, los cuales son más fáciles de entender y controlar: aulas, laboratorios, bibliotecas, etcétera. Son más fáciles de concebir como arquitectura y como problema que la idea de que la arquitectura construye espacios de interrelación y sociales.
Todo el proyecto está hecho de trozos, pero en el que cada uno de ellos estaba sujeto a las condiciones específicas de una obra, de una contratación, de una empresa constructora, de una licitación, de una economía de medios y de problemas constructivos o logísticos muy diferentes. No era lo mismo construir en la parte de abajo de la parcela, cerca de la calle, o construir al fondo de la parcela, por razones de transporte de materiales o de las estructuras prefabricadas. Hay una lección de la arquitectura como técnica, literalmente, de organización y construcción, de utilización de las herramientas de la industria y de los materiales.

Planta y sección longitudinal. Ver PDF
T: Cuando iniciasteis el proyecto, ¿ya se sabía qué edificios se iban a construir? Y también, ¿estaban incluido en el proyecto el diseño de los espacios abiertos, el jardín, los accesos?
LR: Había un programa inicial, creado por el colegio para transformar sus instalaciones. En la zona Montessori, tenían edificios prefabricados que habían comprado porque no habían encontrado una manera mejor de construir en los cortos periodos de verano. Sabían que querían eliminar los prefabricados, ampliar hacia la nueva parcela del colegio de Legionarios de Cristo, y que necesitaban un edificio y una zona deportiva para novecientos alumnos. Conocían la estructura organizativa, por supuesto, dividida en pre-nursery, nursery, primary school, secondary school, pero sí había cuestiones que se iba reformulando a lo largo de los años.

Fotografía: RFS
Generalmente, los clientes aportan una lista de necesidades, pero en este caso, hemos tenido la suerte de que el colegio es un proyecto en marcha para ellos; no solo lo dirigen, dan clase y participan en múltiples actividades en torno a la vida académica. Para cada edificio hemos hecho un anteproyecto que lo presentábamos y discutíamos con la dirección Runnymede pero también los profesores o incluso los cocineros, que daban su feedback. Se hicieron modificaciones incluso en lso proyectos de ejecución precisamente porque es un cliente muy involucrado. Durante las obras, nosotros íbamos una vez a la semana, pero ellos iban cinco días a la semana a la obra
Sabían lo que querían hacer, porque el esquema educativo está preestablecido. Pero, por ejemplo, en origen, la biblioteca, como lugar donde estaban los libros, había desaparecido porque hace como diez o quince años, el colegio hizo una apuesta, como tantos otros colegios o instituciones o incluso la sociedad en general, por la tecnologización de la educación y habían digitalizado el sistema educativo a través de iPads, pantallas, repositorios y bases de datos. Entonces, la biblioteca había desaparecido del programa como espacio donde están los libros, se había convertido en un espacio digital. Sin embargo, en un determinado momento, hace cuatro o cinco años, cambiaron de opinión y han llegado a la conclusión de que se iba a volver a los libros, a las pizarras, a los sistemas de trabajo en físico. Y reaparece la biblioteca, cuando el espacio que ocupaba antiguamente estaba ya estaba en construcción ocupado por otras aulas y laboratorios.
Lo que me preguntabas antes de los espacios de relación y del proyecto paisajístico, sí estaba incluido desde el Anteproyecto. Lo planteamos como si fuese un recorrido que tiene algo que ver con el paisajismo pintoresquista y no con las plazas pavimentadas. Queríamos hacer desaparecer materiales asfálticos y sobre todo soleras, y usar materiales de suelo absorbentes y respetar la topografía. La unión de las dos propiedades, desde abajo hasta arriba y desde una esquina hasta la otra, tiene un desnivel de 9 m, con pendientes muy importantes, y muchos de los edificios están escalonados, porque aceptamos que la forma del terreno determinaría la forma de los edificios. O sea, que la arquitectura no se puede construir sobre plataformas explanadas como si estuviéramos dibujando en un papel en blanco. Esa idea proviene del proyecto moderno, es decir, que la arquitectura es un objeto, el objeto es autónomo y está construido sobre el papel blanco y literalmente se traslada a la construcción como explanación. En este caso, los edificios, se adaptan a los niveles existentes, van cabalgando la topografía hacia arriba de la parcela. Y hay algunos en los que, literalmente, la sección vertical tiene un vacío en el centro con escaleras que reproducen el desnivel del terreno en el que se sitúa.

Fotografía: Luis Asín
T: Resolver la accesibilidad, entonces, habrá sido muy complejo.
LR: Era uno de los puntos clave en el tratamiento de ese espacio común: accesibilidad, naturalización, y el tercero, que es muy importante, eliminación del tráfico rodado. Antes los coches entraban hasta el fondo de la parcela, mezclándose la circulación y los espacios comunes. Hemos vaciado la parcela de coches. Los autobuses, en vez de recorrer toda la parcela, como antes, ahora acceden por una especie de puerta cochera desde la calle en paralelo. De esta manera, no hizo falta solera ni asfaltado, ya que no hay sobrecargas de coches. Fue el primer paso para retirar las soleras, llegar al terreno natural y pavimentar con tacos permeables y jardín. Así, la parcela no sería solo una imagen pintoresquista, sino un verdadero jardín, donde el suelo es de tierra o de tacos que filtran sobre cama de arena.
T: ¿Cómo fue orden de ejecución de los edificios? ¿Coincidían la organización del proyecto con las necesidades del colegio?
LR: Empezamos en los dos lados. En el lado izquierdo, el antiguo colegio Legionarios de Cristo, había tres edificios: unas oficinas, un colegio de primaria y al fondo, uno de secundaria. El colegio de primaria era un edificio largo y estrecho; el de secundaria, una especie de castillo. Menciono 'largo y estrecho' o 'castillo', es decir, 'lineal y fortificación', porque la arquitectura de los colegios, de cualquier institución, vincula y representa lo que la institución es. El de los Legionarios de Cristo era un colegio donde la autoridad, la diferenciación, la alineación, el desfile, estaban muy presentes. Todas las clases eran iguales, había un pasillo central muy estrecho, y el edificio de los adolescentes estaba cerrado. De esos dos edificios, derribamos la envolvente. En el caso del nuevo polideportivo, solo dejamos la cimentación para apoyarnos sobre ella. La forma rectangular con una rampa a su derecha se debe a que el edificio era cuadrado. Ocupamos dos tercios de ese cuadrado y el otro tercio lo dejamos como un vacío por el que se bajaba. La construcción de la estructura del polideportivo es metálica, se hizo en un taller, la trajeron troceada en camiones y durante un "spring break", la colocaron. Así, la logística encajaba.

Runnymede College Campus. Planta general. Ver PDF
En el de primaria, el primero que hicimos, por razón de plazos fue necesaria conservar las dos plantas con estructura de hormigón, los pilares y la cimentación, y encima de ellos añadimos una planta con una estructura de cerchas metálicas también hechas en taller, que se apoyan en las dos fachadas sin pilares centrales. La planta de arriba es la que tiene los lucernarios y es más abierta. Abajo están los laboratorios de ciencias y arriba están las aulas. Además, añadimos un módulo estructural nuevo al Este. Es una estructura metálica que hicimos desde la planta cero hacia arriba, ahí pudimos meter la escalera, el hall de entrada y los baños que requerían luces y distribuciones distintas. De tal manera que vamos compaginando elementos que reciclamos y elementos que añadimos nuevos. El edificio más cercano a la calle, que tiene aulas y un vestíbulo central más amplio de este a oeste, es el único construido de nueva planta. Tiene un aparcamiento, donde hemos metido todos los coches, situado bajo la pendiente del terreno. Pero tampoco hemos modificado los niveles del terreno. Hemos construido el aparcamiento en rampa continua, a la americana, respetando la topografía original. Es un aulario para niños de ocho a once años, y tiene unas escaleras que, tanto por fuera como por dentro, salvan los seis metros de altura que sube el terreno.

Fotografía: RFS
El edificio de la derecha es una combinación del edificio de Montessori, que tenía una forma interesante. Montessori, como sabéis, propone que los niños se eduquen en casa o que la institución educativa sea como una casa, en términos arquitectónicos, o como una familia, en términos ideológicos. Construyen chalés grandes, y este era uno, una casa grande con habitaciones amplias (las aulas) alrededor de un patio central. A la izquierda, en esa barra larga, alguien había añadido aulas, ya fuera del concepto Montessori. El edificio principal lo conservamos fundamentalmente, porque, aunque no nos gustaba, era coherente. Pensamos que, si vaciábamos el patio y creábamos un vacío central para una biblioteca abierta donde los niños pudieran aprender a leer, haríamos algo interesante para el colegio, que además aprovecharía una idea original inteligente del edificio Montessori.
Es una combinación continua de transformación, reocupación, reforma y a la vez de transformación de los edificios en sí. Pero, sobre todo, al unir las dos parcelas y hacer desaparecer la línea de propiedad que las dividía como un tajo vertical, apareció ese espacio central, que es donde colocamos la biblioteca, sobre una plataforma en pendiente donde la gente se reúne y donde se cruza todo el mundo, un punto donde se ve a todo el colegio; como si fuera una especie de "main street" a la americana.

Fotografía: Luis Asín
LR: "La envolvente, separada de la fachada, se ha planteado con un lenguaje opuesto: por dentro todo es madera y por fuera es casi todo industrial, metálico-plástico, con la carpintería de acero de Forster, galvanizada, que llega montada para ser atornillada, y el policarbonato."
Hay más arquitectura en los vacíos que en los edificios, que están más morfológicamente determinados por su programa. Por eso nosotros hemos insistido intencionadamente en esta posición aleatoria de las cosas, que no es del todo real, porque hay estructuras que estaban de partida, de manera que los edificios no parecieran tan importantes y lo que parece más importante es el marco naturalizado; el suelo, que topográficamente tiene mucha identidad, y este espacio central donde todo el mundo se encuentra, cosa que en un colegio no tiene que ocurrir porque hay mucha estratificación por edades.
Cuando nos encargaron la biblioteca nos pillaron con el pie cambiado. Llevábamos tres o cuatro años trabajando en distintas fases del proyecto y una de las cosas más importantes era que la red digital de wifi funcionara homogéneamente en las aulas, los pasillos y lso vestíbulos, pero también en los espacios exteriores sin que se produjeran interrupciones del roaming. Lo que unía a todo el colegio era la señal digital de wifi, la electrónica virtual de la red. Era el paradigma tecnológico de principios de los 2000, y de repente todo cambia y deciden que tiene que aparecer una biblioteca física: un espacio que representara un nuevo paradigma, la importancia de la lectura, la atención, la desconexión digital.

Axonometría interior biblioteca. Ver PDF
Al proyectar la biblioteca tratamos de hacer dos cosas a la vez: una, conseguir que ese volumen inesperado mejorara el proyecto general; y dos: intentar reinterpretar esta condición de la lectura física, de la lectura del libro y del espacio cerrado, tranquilo, de estudio de la biblioteca, al margen de lo digital. Además, al colocar la biblioteca en el centro, cierra la parte de abajo, que tiene más carácter de espacio social, respecto a la de arriba, que es la zona deportiva, que es un espacio que tiene otras dinámicas.
La Biblioteca se abre a este y oeste con dos vestíbulos exteriores, uno abajo y otro arriba. Y está apoyada sobre un muro de contención, pues hay un desnivel, una pendiente de nueve metros que va en diagonal, de noroeste a sureste, de tal manera que la biblioteca se sitúa en medio, pero no expuesta, sino arropada. Le construimos un jardín delante, que es tierra rellenada para acompañar esa rampa que sube a su derecha, y que hace que el edificio no sabes si está construido o excavado, pero en realidad está sobre la plataforma del terreno que ya existía porque el colegio de Legionarios de Cristo sí había explanado dos tercios de la parcela.
En el muro de contención vamos a construir una rampa muy grande, metálica, con muy poca pendiente, accesible, que haremos en un taller y apoyaremos sobre el muro de contención existente, que coserá también la zona deportiva en el sentido horizontal, norte-sur.

Fotografía: Luis Asín
T: Y frente a la materialización de otros edificios, en los que se han utilizado sistemas industrializados metálicos o de prefabricados de hormigón, en la biblioteca habéis optado por la madera. ¿Han pesado las razones sensoriales para esta elección?
LR: Había varias cuestiones. Una muy importante es que esta pieza ni siquiera se construye en verano. Como es un edificio pequeño, se construye en los tiempos en los que no se da clase a lo largo de un año. Por lo tanto, tenía que ser prefabricada, hecha en un taller para montarse en seco.
Y por otro lado, está esta cuestión más subjetiva y simbólica, de lo que es o no un espacio de reflexión o de lectura. Es la razón por la que es un espacio vacío, una sola habitación, como una capilla. No tiene casi forma, porque es rectangular, ni casi orientación: tiene una ventana superior corrida en los cuatro lados.
Y dado que la prefabricación no podía ser de acero ni de hormigón, pues no tendría sentido para resolver esa condición de espacio interior que necesita de una especie de manto o ropa que lo envuelve, decidimos hacerlo de madera, que era la única manera de prefabricarlo para que tuviera esa condición sensorial que has mencionado, así como simbólica.
Yo decía que la biblioteca era como un nido trenzado con ramas. Un espacio naturalizado a una escala muy pequeña que te envuelve, y diría que es un poco gótica. Me explico. Para hacerla ‘nido’ teníamos que utilizar una estructura de madera con dimensiones que no se correspondían con el cálculo estructural, es decir, con más pilares y vigas de las estrictamente necesarias, o con unos elementos de dimensiones muy esbeltas que trabajaran trabados. Los ejes de la estructura están cada 1,10 m. Y cuando llegan al lateral y giran noventa grados, los pilares continúan como si la estructura de madera funcionara en ambas direcciones, que funciona, pero no era necesario; podríamos haber usado vigas y pórticos. Pero para darle esa cualidad de nido, esa cosa gótica de nervios que muestran la estructura, todo está envuelto en una estructura de madera muy insistente y retórica.

Axonometría interior explotada. Ver PDF
Esto tiene que ver con lograr que ese espacio vacío, destinado a actividades de lectura, conocimiento, etc., tuviera un carácter de envolvente, sin condicionantes ni estructura intermedia. Así, lanzamos al perímetro la estructura, el cerramiento y las estanterías que estaban todas hechas de madera por razones de montaje y prefabricación.
Y, por otro lado, porque nos parecía que la madera, dentro de los materiales que se podían utilizar para este sistema prefabricado y de montaje, era la que le daría esa condición simbólica a una sala que no tenía nada dentro, pero cuya arquitectura debía adquirir ese significado. ¿Dónde estoy? ¿Qué es este sitio? No es un aula, oficina, jardín o polideportivo; es una habitación donde la gente entra, se sienta y está a lo suyo; no se trabaja en equipo ni en grupo, nadie habla, no hay clases ni profesores... Es una especie de capilla académica.

Fotografía: RFS
T: Y para el cerramiento, la cubierta o el pavimento, también se recurre a madera o materiales derivados de la madera ¿no?
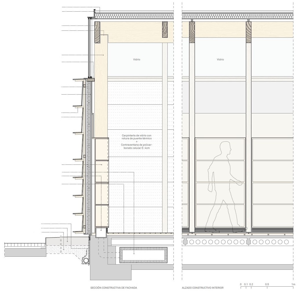
LR: Primero hicimos la estructura de madera, como si fuera un cesto boca abajo. Y a la hora de envolverla, necesitábamos hacer un espacio climático contenido y también controlar la vista y el ruido. Pensamos que para mantener la integridad de esta condición de "cesto”, necesitábamos que la fachada y la envolvente estuvieran separadas, puestas por fuera. Y también queríamos seguir trabajando con distintas materializaciones de la madera.
Así, tenemos la madera del suelo, la de las estanterías, que también están metidas entre los pilares, y los paneles de la cubierta, que son prefabricados con madera y aislante, aunque estén pintados. Luego, los paneles de la fachada, que de alguna manera es madera reciclada. Todo esto responde a una decisión ideológica de usar madera, pero también a la necesidad de que todo fuera industrial.
No podíamos hacer una fachada que no fuera industrial. Se colocaron los bastidores galvanizados y se pusieron inmediatamente las piezas de cemento madera, que ya habían sido cortadas con precisión según el despiece que les habíamos dado. Del mismo modo que la estructura de madera laminada, aunque el material viene de Galicia, fue fabricada y montada por un carpintero de Guadalajara.
El encargado de cortar y fresar la madera laminada nos sugirió, por la escala y la repetición de la madera, que podíamos quitar los anclajes metálicos. Como la estructura es hiperestática en todas direcciones, en vez de construirla como una estructura prefabricada de madera laminada, como habíamos hecho en Elche, podíamos hacer las uniones entre las piezas de madera como si fuera un mueble, usando uniones de cola de milano, media madera, apoyo etc. De este modo, el edificio es virtualmente de madera en su totalidad. El carpintero disponía de un sistema de corte 3D para piezas no muy grandes que permite tratar la madera laminada si se trabajara con elementos de un mueble que luego se ensamblan. Como las piezas forman un volumen cerrado, tiene un grado de rigidez y estabilidad bastante alto. Así, el acero de las uniones desapareció.

Fotografía: RFS
T: Y, supongo que os lo habrán dicho, pero la fachada tiene una imagen que inmediatamente te conecta con la del almacén para Ricola de Hertzog & De Meuron, evidentemente con otra escala.
LR: Me das una alegría porque es un edificio precioso. Nos encantaría hacer algo que pudiera compararse con Hertzog & De Meuron. En realidad, teníamos una primera fachada que era de piedra y era demasiado pesada, no solo por el peso, y no parecía adecuada. Entonces decidimos hacerlo con estos paneles por el color y la madera, nos parecía más coherente. Este tipo de paneles tienen la desgracia de que todo el mundo los obliga a parecer piedra, como si fueran un aparejo o sillar, cuando en realidad son un recubrimiento. La única manera de romper esa maldición era colocarlos perpendiculares a la fachada como lamas y como cerramiento. Y cuando los colocas como lamas, tienes que darles pendiente para que desagüen. No puedes hacer juntas porque tienen unas dilataciones muy grandes, porque es un conglomerado bastante inestable. Tienen anclajes, pero dilatan muchísimo. Entonces, son como piezas sueltas. Por eso tiene esta forma, esta apariencia de superficie con lamas o tejas. Y si se parece o recuerda a la gente al edificio de Ricola, pues quiere decir que mi subconsciente y el de Begoña funcionan bien.

Sección constructiva Biblioteca. PDF y leyendas para suscriptores premium.
T: Y también tiene algo de ese recubrimiento de teja de madera, de chillas, de construcciones con madera tradicionales.
LR: Yo tenía en la cabeza más el Shingle Style americano de Boston, con las fachadas hechas con tejas de madera. McKim, Mead & White lo utilizaron en las casas en los Hamptons que querían que no fueran neoclásicas. Tiene que ver con recubrir una pared vertical con algo hecho de trozos como si fueran tejas y están solapadas. Pensamos que tenía que tener volumen. Al principio, era un aplacado, pero cuando quitamos la piedra y colocamos el panel de fibrocemento como alternativa, ya no podía ser un aplacado, tenía que ser otra cosa. Una vez más, las explicaciones tienen que ver con la economía de medios, la rapidez, la lógica de los materiales y también con las filiaciones y los odios que uno tiene. No puedo soportar que hayan convertido los paneles de aluminio o cualquier otro panel en subrogados de la piedra. Me parece que hay que entender la tecnología como un potencial, y los materiales producidos en fábrica como materiales que tienen cualidades y virtudes increíbles, aunque no sean naturales.
Autoría: Begoña Fernández-Shaw y Luis Rojo de Castro
Localización: Madrid
Fotografías: Luis Asín
Promotor: Runnymede College
Empresa constructora: SAN JOSE Constructora
Empresas destacadas:
Editado por:
Publicado: Jan 20, 2026