La Villa Olímpica para los Juegos de Invierno 2026 destacará en la historia de la construcción por su avanzado planteamiento urbano. El proyecto recupera un área ferroviaria obsoleta para crear un barrio que fomenta la conectividad y el vínculo con la naturaleza. Su ejecución destaca por el uso de sistemas de bajo consumo de recursos y mínima generación de residuos, incorporando por primera vez un brazo robótico patentado por Xlam Dolomiti para la colocación de muros exteriores de CLT en la propia obra.
Las citas olímpicas constituyen un indudable impulso económico y turístico para las ciudades anfitrionas. Bien gestionado por las instituciones locales, este acontecimiento deportivo va acompañado de una profunda acción transformadora, capaz de catapultar el desarrollo y el carisma de las metrópolis elegidas como sede.
La primera edición de los Juegos Olímpicos de la era moderna se celebró en Atenas en 1896, pero no fue hasta 1936 en Berlín cuando el evento adquirió una repercusión global y un rango similar al actual. La celebración de los Juegos en la capital alemana supuso un potente ejercicio de propaganda que colocó en el escaparate no tanto el nuevo Estadio Olímpico y otras infraestructuras deportivas, o la mejora del paisaje urbano con el diseño de nuevas avenidas, sino la –perturbadora– grandiosidad del Reich, el propio régimen nazi.
Fue también en los Juegos de Berlín donde surgió el concepto actual de ‘villa olímpica’, entendida como el conjunto de edificaciones destinadas a alojar a los atletas participantes y a almacenar el material necesario para las competiciones. Hasta entonces se había optado por el alquiler de propiedades cerca de la ciudad o la construcción de cabinas o cabañas en las proximidades del estadio que, al finalizar la competición, eran desmontadas.
Hasta 1972, en Munich, no fue habitual que estas residencias de los atletas se mantuvieran en las ciudades con un uso permanente tras la celebración de los Juegos. Desde entonces las villas olímpicas se han ido reutilizando bien como conjuntos residenciales asequibles y de mercado que, integrados en el tejido existente (como en Barcelona 1992, Pekín 2008 o Londres 2012) atienden las necesidades de la creciente población de la ciudad, o bien como complejos de viviendas de alto standing (Río de Janeiro 2016 o Tokyo 2021 son ejemplos de ello).

SOM. Milano-Cortina Villa Olímpica. Render: © SOM - Pixelflakes.
Lo que resulta claro es que a lo largo de las distintas ediciones han sido minoría los casos en los que un proyecto residencial, como es una villa olímpica, haya sido planificado con un enfoque estratégico ambicioso y tratado con la misma relevancia que esas otras grandes operaciones de renovación de la infraestructura viaria, los espacios verdes o las dotaciones de la ciudad que caracterizan a los procesos dirigidos a convertir una gran metrópolis en sede olímpica.
Uno de esos escasos ejemplos merecedores de reconocimiento, por ir más allá del mero ámbito edificatorio y empeñarse en constituir una propuesta de manifiesta escala urbana es el caso de la sede en Milán de la Ciudad Olímpica Milano-Cortina para los Juegos Olímpicos de Invierno 2026 (que se celebran del 6 al 22 de febrero): un proyecto que, diseñado por el mítico estudio SOM, hace posible un lugar que celebra la diversidad de usos, se entreteje con la ciudad y da vida a antiguas estructuras bajo un enfoque bioclimático.

SOM. Ciudad Olímpica Milano-Cortina para los Juegos de Invierno 2026. Fotografía: Dave Burk © SOM
Algunos de los ejemplos más reconocibles de la iconografía de la construcción en altura del siglo XX han sido diseñados por este ya clásico y emblemático estudio de arquitectura e ingeniería fundado en Chicago en 1936 por los arquitectos Louis Skidmore y Nathaniel Owings, a los que se unió, tres años más tarde, el ingeniero John Merrill.
Sus proyectos están presentes, con honores, en cualquier enciclopedia de arquitectura contemporánea por haber sido protagonistas de la expansión del rascacielos plenamente moderno en Nueva York y Chicago desde mediados del siglo XX. Reconocidos como los mejores “intérpretes de la estética de Mies van der Rohe”, SOM han firmado la Lever House (1952) de Nueva York o el John Hancock Centre (1970) y la Torre Sears (1971) en Chicago, verdaderos clásicos de la arquitectura contemporánea. En un paisaje monótono de paralelepípedos envueltos en muros cortina de vidrio, replicados como clones en las ciudades americanas, los proyectos de SOM se alzan como excepciones brillantes de impecabilidad constructiva. Con una combinación magistral de innovación tecnológica, genialidad estructural, estilizada elegancia y una gran solidez tipológica y funcional, SOM redefinió así los estándares de la arquitectura moderna, aportando identidad y propósito. Ya en época reciente, sus nuevos miembros son autores del que es hoy el edificio más alto del mundo, el llamado Burj Khalifa, inaugurado en 2010 en Dubai.

El perfil en Instagram de SOM en la que convive referencias a obras históricas del estudio, como es la Lever House en Nueva York (imagen en blanco y negro) con las investigaciones actuales que abarcan desde el desarrollo de bloques constructivos basados en algas, planes de naturalización y conexiones urbanas o la ejecución de estructuras complejas.
La firma, que cuenta con oficinas en Nueva York, Chicago, San Francisco, Los Ángeles, Washington, Londres, Hong-Kong, Shanghai, Bombay y Abu Dhabi, ha recorrido sus increíbles ocho décadas de existencia sin dejar de apostar por una verdadera fusión entre la arquitectura y la ingeniería estructural, la innovación, la tecnología y el enfoque interdisciplinar de su trabajo, que conciben como un esfuerzo colectivo. A estos valores se ha sumado en los últimos años un decidido compromiso por la sostenibilidad, y en cada uno de sus proyectos se busca la reducción del impacto de carbono en el sector de la construcción.
La Villa Olímpica Milano-Cortina forma parte de un proyecto de intervención en la antigua estación ferroviaria de Porta Romana situada al sur de Milán.
El plan urbanístico para la intervención en el área –Parco Romano– nació entre 2016 y 2017 como parte del acuerdo marco del programa entre Ferrovie dello Stato, el municipio de Milán y la Región de Lombardía, después de una consulta pública y un trabajo de diseño dirigido por Elizabeth Diller (Diller Scofidio + Renfro), Lee Polisano (PLP Architecture), y Carlo Ratti (Carlo Ratti Associati). Junto con otras colaboraciones externas, este equipo proyectó un nuevo barrio con un gran parque central, plazas públicas, un bosque suspendido y una especial atención a la conexión con la ciudad a través de itinerarios peatonales y ciclistas.
En 2021 se convocó el concurso internacional para el diseño de las residencias de los atletas y su posterior transformación en viviendas para estudiantes, en el que resultó ganador el estudio estadounidense Skidmore, Owings & Merrill.
El barrio residencial ocupa el cuadrante suroccidental del núcleo ferroviario de Porta Romana (un área de 60 mil metros cuadrados). El proyecto presentado, con criterios de diseño nZEB (edificios de consumo de energía casi nulo) y el objetivo de lograr la certificación Leed Platino, proponía una nueva relación con la ciudad de los edificios respecto al plan general y, entre otras decisiones, disminuía la altura de los seis bloques residenciales.

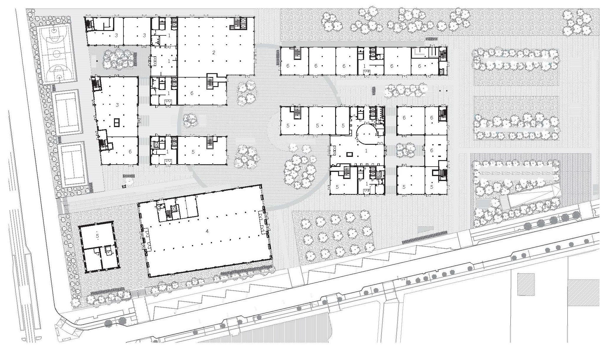
Planta baja de la Villa Olímpica: 1. Vestíbulos; 2. Gimnasio; 3. Espacios de uso flexible relacionados con la salud y el bienestar; 4. Comedor y co-working; 5. Espacios comerciales; 6. Tiendas de alimentación. Ver pdf. © SOM.
El proyecto, que se ha ejecutado cumpliendo plazos de entrega en un tiempo récord de unos 30 meses, gracias a la construcción industrializada con componentes fabricados off-site, se completó a finales de 2025
La Villa Olímpica de Porta Romana ha sido diseñada, ante todo, para integrarse en el tejido urbano de la ciudad. Abarca un conjunto de espacios públicos verdes, la transformación de dos estructuras históricas y seis nuevos edificios de viviendas que servirán a corto plazo a los atletas olímpicos y luego se transformarán en viviendas para estudiantes y familias, tan necesarias en Milán. Esta actuación residencial está planteada con criterios de equidad social, compromiso ambiental, bienestar, inclusividad y resiliencia.
Ubicada en el emplazamiento de una antigua playa de vías, la Villa Olímpica encuentra su inspiración arquitectónica tanto en la historia industrial del lugar como en las tipologías edificatorias de Milán. El plan de ordenación adopta el ritmo del paisaje urbano circundante, creando una manzana urbana porosa con una variedad de nuevos recorridos públicos y conexiones con otros componentes del Plan Director de la zona ferroviaria de Porta Romana.

Plano de situación.
La naturalización del campus es un tema que ha estado muy presente en todo el proyecto para aportar resiliencia climática del barrio, así como para confort, salud y bienestar a ocupantes y visitantes. El paisajismo, diseñado por Michel Desvigne en coordinación con Elizabeth Diller, integrará el barrio en el corredor verde de Milán. La vegetación surge en las áreas exteriores, que se complementan con superficies porosas para capturar el agua de lluvia y estrategias de sombreados, y forman un auténtico pulmón en el remate del campus en donde unas terrazas comunitarias con plantaciones verticales ofrecen espacios de estancia al aire libre, así como actúa como colchón acústico para las unidades residenciales.

Plantas tipo: 1. Cocinas comunitarias; 2. Salas de estudio; 3. Terrazas comunitarias. Ver pdf. © SOM.

Sección AA. Ver pdf. © SOM.

Alzado este. Ver pdf. © SOM.

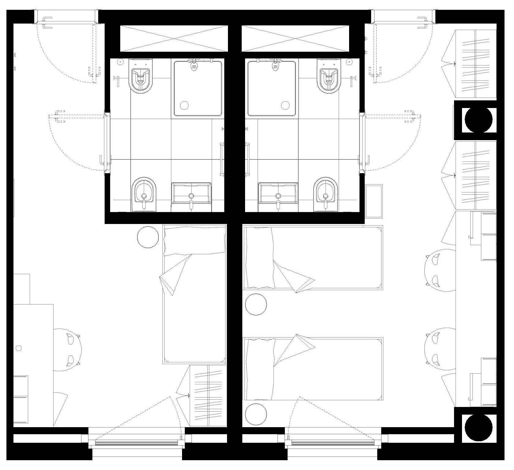
Planta tipo de las habitaciones. Ver pdf. © SOM.

Fotografía: Dave Burk © SOM.
Toda la Villa Olímpica está diseñada según los principios de una ciudad inteligente y sostenible, creándose un complejo que está conectado y es autosuficiente al mismo tiempo. Para lograr el objetivo de construir un proyecto nZEB se recurrió a estrategias de refrigeración pasiva, paneles solares, gestión del agua a través de red urbana de intercambio de calor, jardines en las azoteas para que, entre otros objetivos, evitaran el desperdicio de energía en el complejo y generara in situ gran parte de la que consume.

Fotografía: Dave Burk © SOM.
En la construcción de los nuevos edificios se ha elegido sistemas industrializados que aceleran la construcción y reducen los residuos. Una estructura mixta de acero y hormigón se cierra mediante paneles de madera contralaminada industrializada, reduciendo el impacto de carbono de la construcción. El acabado exterior matiza el proceso industrial con la textura del revoco aplicado sobre un tablero contrachapado.
Por otro lado, las escaleras y pasajes exteriores de los edificios residenciales fomentan la conexión entre residentes, además de facilitar la actividad física, que se complementa con gimnasios, instalaciones deportivas al aire libre y las terrazas ajardinadas.

Fotografía: Lucas Blair Simpson © SOM.

Fotografía: Colin Koop © SOM.
Dentro del proyecto de Villa olímpica, se preservan y restauran dos edificios industriales que mantienen el lenguaje industrial de sus orígenes: las envolventes exteriores y las cubiertas de ambos edificios se restauran íntegramente, dejando vistas sus estructuras internas de albañilería, madera y hierro. Estos dos edificios, Squadra Rialzo y Basilico, forman una puerta de entrada al complejo y, en su entorno y a través de ellos, se crean nuevos recorridos que enriquecen la vida de la zona con las actividades que se vayan desarrollando en sus espacios de uso flexible.

Fotografía: Dave Burk © SOM.

Fotografía: Dave Burk © SOM.
La prefabricación e industrialización de los procesos constructivos, específicamente de las viviendas, no es una novedad de la arquitectura actual. Se ha buscado desde hace décadas, principalmente en momentos de necesidad de grandes bolsas de vivienda nueva.
Los resultados, salvo excepciones remarcables, han sido de núcleos masificados en los que los residentes no han podido disfrutar de soluciones flexibles y adaptadas a sus particulares necesidades.
En la actualidad a la demanda de nuevas viviendas se suma la falta de mano de obra especializada en construcción en muchos países, y se ve la industrialización como una clara solución para aumentar la velocidad y eficacia de los procesos constructivos. Además, las nuevas tecnologías de proyecto y ejecución permiten una mayor individualización de las soluciones a lo que se suma una manifiesta preocupación por la calidad de los espacios urbanos remanentes entre viviendas.
De esta tendencia, por su diseño y por un proceso constructivo que aporta la novedad de la robotización en obra, es ejemplar la Villa olímpica de Milano-Cortina.
Los tiempos para la construcción de la Villa olímpica de Milán eran muy justos, con la obligación de entregar a la Fundación Milano Cortina las obras terminadas en julio de 2025, incluidos los espacios públicos y la vegetación. La solución, tanto para arquitectos como para el promotor, estaba en la industrialización para fabricar muchos de los elementos off-site.
La obra se ha proyectado con una estructura mixta de acero (reciclado hasta en un 93%) y hormigón según el sistema NPS (New Performance System) de Tecnostrutture, cerramiento de madera contralaminada de Xlam Dolomiti y baños prefabricados de Stone Bathwear (1.100 unidades de baño). Solo se realizó de manera tradicional la planta -1, los núcleos de escaleras y ascensores.


Fotografía: © Fondo di Porta Romana. Fotógrafo: Threeditions.
Fotografía: Dave Burk © SOM.
Una innovación importante en esta obra ha sido que, para lograr ajustar los tiempos del proceso constructivo, Xlam Dolomiti desarrolló un manipulador de paneles que facilita y agiliza el movimiento y la colocación de estos elementos en obra.

Sección constructiva de la fachada. Ver pdf. © SOM.
Para el desarrollo del manipulador, se aplicaron los criterios del montaje automatizado de la industria automovilística. La máquina colabora con uno de los operarios en el posicionamiento de los paneles contralaminados de Xlam Dolomiti. Se trata de una herramienta robótica que simplifica el proceso de instalación en alturas y lo hace más rápido y más seguro ya que se elimina la necesidad de instalar andamios y los elementos se instalan desde dentro del edificio. Este manipulador está equipado con brazos telescópicos y una abrazadera que permite la elevación y el posicionamiento precisos de las paredes.
"Trabajamos más rápido y la contribución de la mano de obra se reduce a una cuarta parte en comparación con el método de instalación tradicional. Se trabaja de forma segura, la fatiga disminuye, se trabaja en un entorno limpio". Albino Angeli, CEO de Xlam Dolomiti.
Este sistema representa una importante innovación en el sector de la construcción en madera, mejorando los resultados en términos de tiempo, costes y seguridad en obra. Se está llevando la industrialización a la fase de la obra, donde aún la mayoría de las tareas se ejecutan manualmente.
El robot manipulador está especialmente indicado en obras de gran escala que tienen tiempos limitados de ejecución. En la Villa olímpica Milano-Cortina se instalaron casi 16.000 m2 de muros de CLT con cinco operarios durante cinco meses.


Detalle de fijación de los paneles CLT. Ver pdf.
Se han instalado paneles de XLAM de 90 milímetros de espesor como muros exteriores en todos los edificios, fijados mediante angulares y tornillos y posteriormente sellados con cintas adhesivas. En la cara interior hay un trasdosado doble con una cámara y lana de roca, mientras que en el exterior se añade una capa de aislamiento de 12 centímetros de espesor y el acabado: revoco aplicado sobre un tablero contrachapado.

Fotografía: Dave Burk © SOM.
En la Villa Olímpica Milano-Cortina Xlam Dolomiti ha emprendido un camino claro: conjugar la tradición de la madera con las tecnologías más avanzadas para construir edificios sostenibles, eficientes y seguros. Una visión que mira más allá del presente, apostando por un futuro más responsable e innovador para el mundo de la construcción.
Promotor: Coima Sgr – Fondo Porta Romana
Arquitectura: Skidmore, Owings & Merril (SOM)
Constructor: Coima Rem con Covivio
Estructura prefabricada: Tecnostrutture
Paneles de cerramiento de madera CLT: XLAM DOLOMITI
Unidades prefabricadas para el baño: Stone Bathwear
Localización: Milán, Porta Romana
Edición del artículo: Isabel Bravo Barahona y Berta Blasco Góngora
Editado por:
Publicado: Feb 2, 2026