El primer edificio de oficinas desmontable y reutilizable de madera en Noruega de OsloTre es un ejemplo de cómo la buena arquitectura puede impulsar la innovación sostenible a través de la optimización de los procesos de montaje y de las uniones madera-madera, de la incorporación de instalaciones accesibles y renovables, así como de materiales saludables o reciclados, resultando una brillante propuesta de economía circular en la construcción.

Fotografía: Einar Aslaksen. El proyecto HasleTre, edificio de oficinas en el noroeste de Oslo, es un ejemplo pionero para la industria de la construcción circular del futuro, por su planteamiento de ejecución desmontable y reutilizable en madera.
El texto que a continuación aparece en azul procede de una conversación en torno al proyecto, entre Moritz Groba de OsloTre con Berta Blasco y JM. Marzo de Tectónica.
Tectónica: OsloTre es un estudio de arquitectura muy particular y nos gustaría que nos hicieras una breve presentación.
Moritz Groba: Sí, es especial porque los fundadores, Jørgen Tycho y Katrin Wilde-Sampaio trabajaban juntos en la producción de madera maciza, CLT. Aunque son arquitectos, estaban dibujando, produciendo y también montando proyectos de madera para otros y se dieron cuenta de que faltaban oficinas que conocieran ambos lados del proceso: proyectar con madera, pensando en cómo se fabrica y luego participar en el montaje de las obras. Así fundaron OsloTre hace diez años enfocada en una arquitectura sana que utiliza materiales naturales. Y a la vez, al tener el conocimiento de producción y montaje ofrecer procesos más eficaces. Y una anotación es que, aunque nos enfocamos sobre todo en la madera, también queremos utilizar otros materiales naturales como el adobe, la lana y otros mas, para construir una arquitectura saludable.

Plano de situación. Ver PDF
Al principio, teníamos dos divisiones: los arquitectos que dibujaban los proyectos y luego los dibujantes técnicos que creaban los modelos 3D para los ingenieros, los dibujos de producción y montaje, y que con el tiempo se ha convertido en dos compañías: OsloTre en donde somos arquitectos que dibujamos los proyectos con el conocimiento de todos los procesos técnicos, y OsloPre, que es la compañía encargada del montaje de los proyectos, aunque nosotros seguimos yendo a las obras y participar del montaje porque es algo que nos da mucho feedback sobre cómo funciona lo que hemos dibujado.
T: Entonces, ¿el edificio de HasleTre también lo habéis montado vosotros?
MG: No, porque en este tipo de proyectos grandes suele haber un contratista con el que se negocia previamente el precio y que tiene sus propios técnicos. En el caso de proyectos de menor escala sí tenemos más posibilidad de ser también los encargados del montaje.

Vista aérea del entorno urbano. Fotografía: OsloTre
T: El edificio son las oficinas de Save the Children, ¿cómo fue el encargo?
MG: A nosotros nos contrató Höegh Eiendom, el promotor, que ha alquilado a Redd Barna (Save the Childen en Noruega) el edificio como su sede principal en Oslo por quince o veinte años. Nos pidieron un proyecto construido en madera, con ambiciones sostenibles y con la premisa de poder desmontarlo.
T: ¿Habéis hecho algún otro proyecto desmontable con este sistema?
MG: Aún no. Ahora mismo estamos con un proyecto en Tromsø, en el norte de Noruega. Un edificio que hemos diseñado con soluciones que se pueden desmontar, pero no se puede considerar que tengamos un sistema porque son soluciones que se ajustan a cada proyecto, aunque de cada nuevo proyecto surgen decisiones que van quedando como importantes que se pueden trasladar al siguiente proyecto.


Estructura del edificio HasleTre y del Sistema de uniones madera-madera propuesto. Fotografía: OsloTre
En el estudio somos muy conscientes de que somos parte de la industria del 40%. En la escala global, todo el sector de la construcción produce el 40% de las emisiones de CO2 generadas, más o menos el 40% de los residuos y utiliza el 40% de los recursos globales. Así que tenemos la responsabilidad de cambiar cómo pensábamos y poner el foco en materiales naturales y renovables. Y, aunque sean renovables, tenemos que usarlos responsablemente y que permanezcan en los edificios el mayor tiempo posible, para almacenar el CO2 embebido durante todo el proceso. Tenemos que pensar en edificios que sean robustos, pero también flexibles y adaptables, y para hacer eso, necesitamos pensar en elementos que se puedan desmontar y cambiar en el futuro, como una fachada o las ventanas. También deberíamos simplificar las instalaciones, ya que a menudo son muy complicadas y contienen mucho metal. Así que, tenemos que buscar soluciones más sencillas, quizás con sistemas más descentralizados o utilizando fuentes naturales y, finalmente, tenemos que diseñar proyectos que gusten a la gente, que se encariñen con ellos, porque si nos gustan los edificios y los queremos, los mantendremos mucho más y perdurarán.
Y, volviendo al proyecto, a nosotros nos contactaron Höegh Eiendom y AF Eiendom, dos promotores bastante grandes aquí en Oslo, que habían desarrollado un barrio completo, donde tenían un solar bastante pequeño para el que nos pidieron ayuda para diseñar un edificio sostenible en construcción de madera, desmontable.

Fotografía: Dmitry Tkachenko

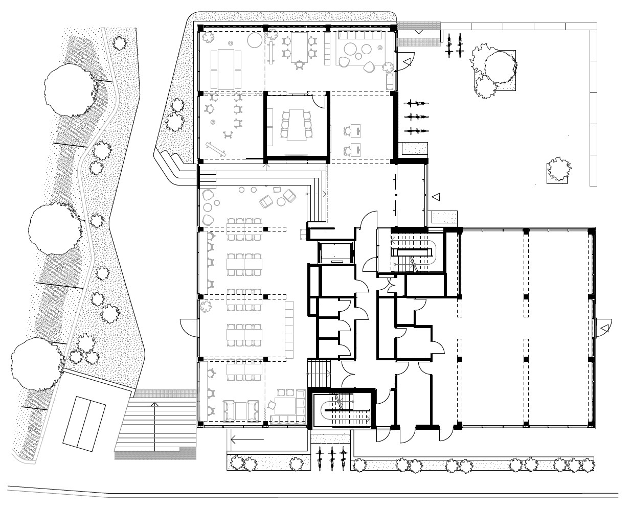
Planta baja. Acceso. Ver PDF

Fotografía: Einar Aslaksen
La parcela tiene, más o menos, 30 x 30 m, el edificio ocupa tres cuadrados de 15 x 15 metros. Al lado, en una parcela idéntica, ya había levantado otro edificio, una escuela que, aunque parece de madera, es de hormigón. Tiene los muros revestidos con madera.
La forma de ambos edificios es la misma, con tres plantas y una última, un poco retranqueada en la parte superior. El esquema de 15 x 15 metros para cada uno de los cuadrantes, permitía una estructura de pórticos de 5 metros, que para una construcción con madera contralaminada es muy razonable, con espesores de forjado de CLT de 180 mm. Este es, más o menos, el punto óptimo en términos de estructura versus material usado. Los paneles de CLT son de 3 x 15 metros, que prácticamente es el tamaño máximo que fabrica Splitkon, la empresa que ha suministrado el CLT.

Fotografía: Einar Aslaksen
Junto a la entrada hay un núcleo de madera maciza que integra la escalera, el ascensor, lavabos y otros cuartos técnicos. El núcleo central del edificio nos da flexibilidad en los pisos superiores para poder dividir la planta en dos áreas que se puedan alquilar independientemente. Cuando dibujamos el proyecto, la flexibilidad de uso era muy importante, y lo sigue siendo, porque no sabemos si en veinte años Redd Barna seguirá alquilando esos espacios o no. La escalera de evacuación la colocamos en el exterior, muy sencilla, de acero, y nos ha permitido poder dejar la escalera principal, de madera vista.

Planta tipo. Ver PDF

Fotografía: OsloTre

Sistema constructivo. Uniones madera-madera. Ver PDF. Fotografía: OsloTre


Fotografía: OsloTre

Fotografía: OsloTre

Fotografía: OsloTre
Una solución que hemos introducido en muchos proyectos es la viga discontinua. Parece un poco rara, pero es muy lógica. En la construcción con CLT, normalmente, por lo menos aquí en Noruega, el centro de la viga es un poco más gruesa para poder abrir huecos para pasar las instalaciones. En los paneles CLT, cuando trabajan a flexión, hay unas capas que trabajan mejor porque las fibras coinciden con la dirección del vano que hay que salvar. Pero en el sentido transversal, el panel también trabaja, aunque mucho menos. Es como una losa. Es suficiente para salvar esta distancia sin la ayuda de la viga.

Fotografía: OsloTre

De esta manera tenemos una zona en medio, que es mucho más adaptable a cambios de usos de los sistemas de ventilación y otras instalaciones técnicas. Y luego, también, esas vigas, para las que se ha utilizado menos madera, no se perforan, y por lo tanto son mucho más reutilizables para otros usos cuando se desmontan. Bajo este vacío y tapando los conductos de instalaciones se coloca una celosía de lamas de madera y un absorbente acústico tras ella.
Es una solución muy simple que lo hace mucho más eficiente y adaptable. Es de los detalles que estoy más orgulloso en este proyecto.

Fotografía: Einar Aslaksen
Otra de las las soluciones que más tuvimos que luchar en la obra para conseguir que se hiciera, fue realizar las conexiones entre pilar y viga sólo con ayuda de pasadores de madera de haya. Éstos, llegan a la obra muy secos (6% de humedad en la madera) lo que hace que cuando se introducen en los taladros de las uniones, se exponen a la humedad que tiene la normalmente la madera cuando llega a la obra (12 ó 14 %), absorben esta diferencia de humedad, se hinchan un poco y fijan la unión.

En esta unión viga-pilar es muy importante hacer que haya continuidad entre las fibras rectas de los pilares. Por eso, el pilar de abajo se prolonga a través de la viga y conecta directamente con el pilar superior. Si el pilar de arriba se apoyara directamente sobre la viga, con el tiempo, acabaría cediendo su cara superior, pues las fibras en ella van en sentido horizontal que tienen mucha menor resistencia que si fueran verticalmente.

Unión viga y pilar. Las perforaciones en el pilar se hacen después de situar en posición a la viga: se perfora a través de los orificips de la viga. De ese modo los pasadores de madera que fijarán la unión encajarán perfectamente. Fotografía: OsloTre
T: En el caso de desmontar la estructura, ¿Cómo habría que sacar esos pasadores de haya? ¿Taladrándolos?
MG: Puede ser empujándolo con fuerza, pero si se ha movido con el tiempo, -que es normal que suceda-. y eso, nos hace dudar de que muchos sistemas de acero que parecen extraíbles lo sean, se puede taladrar la madera y eliminar la fijación. Lo importante es que al final tengamos una viga que no contenga acero adentro.
El hecho de haber dimensionado el forjado en elementos tan grandes, de 3,00 x 15 metros, también hace que luego sea más fácil de reutilizar porque se puede cortar en piezas de menor tamaño.

Plano de montaje de la estructura con la indicación sobre el forjado de las uniones en cola de milano entre paneles de CLT.

Cola de milano y colocación para unir dos paneles CLT. Fotografía: OsloTre
Como uniones entre paneles de CLT, también hemos utilizado un sistema de Austria que se llama X-fix, que es una pieza tipo cola de milano en contrachapado. Es una técnica muy antigua. Lo importante es que están cortados en dos piezas que se ajustan en diagonal, para que al colocar una sobre la otra se van empujando lateralmente fijando completamente la unión entre las dos paneles.
Aunque nos faltaban algunos documentos técnicos, y no hemos podido utilizarlos sin añadir otras fijaciones mecánicas en los forjados, se han usado muchos menos tornillos de lo normal. Hemos reducido el uso de acero en un 70% comparado con proyectos estándar de madera.

Fotografía: OsloTre

Fotografía: Einar Aslaksen
De todos modos, especificamos que los tornillos no sean de doble rosca (double threaded screws) con los que la perforación va rápido al principio y un poco más lento después, lo que hace que enganchen muy bien, pero, cuando los quieres quitar, casi siempre se rompen.
Por eso, en este proyecto hemos empleado tornillos normales de rosca sencilla, con una cabeza un poco más grande para asegurarnos que podemos quitarlos después. Este intento de eliminar al máximo el acero, fue lo que más nos costó mantener con el contratista, que se sentía más seguro si utilizábamos fijaciones de acero.

Fotografía: Einar Aslaksen
Se han construido las cuatro plantas de madera encima del hormigón en cuatro semanas y media. La constructora creía que al ser la conexión entre la viga y el pilar, sólo con madera, se iba a tardar más, pero al final fue muy rápido. Era la primera vez que lo resolvíamos así, y esperamos que la próxima vez podamos hacerlo sin fijaciones de acero de ningún tipo.
La obra también es muy gratificante, porque huele a madera, los ruidos son mucho menores que en construcciones de hormigón, y además, todas las instalaciones se fijan fácilmente con tornillos sencillos.

Fotografía: Einar Aslaksen
T: ¿De qué madera son los elementos CLT?
MG: Spruce, (abeto) una conífera muy clarita. Lo que hacemos, y a los clientes les gusta, es tratarla con un aceite natural con pigmentos blancos para reducir los contrastes, porque los nudos y otras imperfecciones se ven mucho más sin este tratamiento, y, además, con los años se pone bastante amarilla si se queda sin tratar.

Fotografía: Dag Sandven
T: ¿Cómo es la solución del forjado y pavimento en las oficinas?
MG: Se realizó sin uso de mortero vertido ni hormigón. Sobre el panel de CLT de 180 mm de grosor se coloca un suelo técnico, una patente sueca, que consiste en un sistema de rieles con aislamiento acústico integrado. Sobre los rieles se colocan tableros de aglomerado de 38 mm, y sobre ellos directamente la moqueta o el parquet. El espacio intermedio se rellena con aislamiento acústico y por allí se conduce el cableado. Queremos incorporar estos sistemas también en viviendas, pero ahí hay normativas acústicas que son un poco más estrictas y habría que resolverlas.


Sección constructiva por forjado. Ver PDF
T: Comentáis en la memoria que se utilizaron soluciones recicladas. ¿De dónde procedían?
MG: El proyecto se desarrolló de manera tan rápida que tuvimos poco tiempo para encontrar elementos reciclados, pero muchos de los baños, el sistema de ventilación, paneles de lana mineral… eran reusados de otros proyectos.

Fotografía: OsloTre

Se reutilizó el mobiliario de las antiguas oficinas de Redd Barna, y también materiales procedentes del reciclado de otros edificios como el material aislante acústico de los falsos techos de madera, o los textiles de lana para revestir separadores o paredes en el espacio de trabajo. Fotografía: OsloTre
T: ¿Y eso dónde se consigue? ¿Hay un mercado de soluciones constructivas de segunda mano?
MG: Sí, lo hay, pero también como Höegh Eiendom son promotores importantes, tienen muchos proyectos y parte de ellos los están desmontando y así crean sus propios almacenes. Como decía, sí hay dos o tres mercados de segunda mano, aunque aún es bastante nuevo. El gran problema, en mi opinión, es que tienes que estar en el sitio correcto en el momento oportuno, o tienes que adaptar el proyecto a la oferta que hay.

Se colocaron en planta baja lavabos e inodoros de composite de madera. Fotografía: OsloTre

Alzado. Ver PDF
T: La fachada es industrializada ¿no?
MG: Así es. Los elementos de fachada, que son módulos prefabricados también, están formados por un entramado ligero de madera con aislamiento de fibra de madera, una lámina interior como barrera de vapor y una capa exterior de yeso laminado, cubierto con otra lámina resistente al viento y al agua. Las láminas se sellan entre sí para hacer estanco el conjunto. El módulo prefabricado cuando llegaba a la obra ya venía con los rastreles verticales de madera incorporados, de tal forma que sólo había que colocar el revestimiento de teja de madera para terminar la fachada ventilada.

Fotografía: OsloTre
Las tejas de madera, en realidad, son también un panel prefabricado de 2,40 m. y seguro que con más tiempo, la teja podría haber llegado a la obra preinstalada. Pero como en esta obra intervenían muchas empresas, tanto la terminación final de la fachada como las ventanas se montaron aparte.

Fotografía: OsloTre

Secciónes constructivas de la fachada. Carpinterías. Ver PDF

Fotografía: Einar Aslaksen

Secciones constructivas por la zona del hueco de fachada que interiormente está revestida de corcho y con acabado de madera en el exterior. Ver PDF

Fotografía: OsloTre
T: La fachada de tejas parece muy artesanal. ¿sigue siendo habitual su uso?
MG: Sí, sigue siendo muy popular. Es una empresa de tejas del norte de Noruega. Se dedica sólo a eso. Son de madera de pino o de abeto rojo sin tratar.


Fotografía: OsloTre
Hacia el interior, se termina el elemento de fachada con tableros ligeros de madera fijados con clavos de madera, que son increíbles. Se fijan con clavadora y es una instalación tan rápida que hace que los clavos se calienten y su propia resina se derrite. Al enfriarse queda el clavo soldado a la madera. No tiene cabeza y para desmontarlos hay que romperlos.
Lo importante para nosotros con este sistema es que, al quitar las capas, no hay acero.
Al final, tenemos casi 100% de los componentes naturales, principalmente madera, que tratamos con aceites naturales que no cierran los poros: laminada, CLT, las tejas, aislamiento de fibra de madera, las uniones X-Fix, los clavos de madera o corcho y lana en la moqueta, que es higroscópica.

Fotografía: Einar Aslaksen
Junto a las ventanas hay un panel de corcho. En principio pensábamos que al lado de la ventana queríamos tener un panel practicable opaco de madera, pero resultó muy complicado y mantuvimos esa idea colocando hacia el interior un revestimiento de corcho y al exterior un acabado de madera claramente diferente a la fachada. Hacia fuera ha quedado como un gesto, pero por dentro, con el corcho, es un elemento aislante, absorbente y además con una utilidad importante en una oficina: es en donde se pueden pinchar mensajes, fotografías y demás. Un espacio personal en la pared.
Es una oficina de madera, y es algo que se nota al entrar y más todavía al trabajar rodeado de materiales naturales.
Autoría: OsloTre
Localización: Oslo, Noruega
Colaboradores: Team Members: Jørgen Tycho, Architect MNAL; Moritz Groba, Dipl. Ing. Architektur; Salas Montes Mañas, Civil Architect; Kristine Karklina, M. Arch; Katrin Wilde-Sampaio, Dipl. Ing. Architektur; Jon Danielsen Aar- hus, Civil Architect MNAL; Olivia Gragnon, CAD Engineer; Interior Architect Fixed Furniture (Client side): I-d. Interiørarkitektur & Design AS; Loose Furniture (Tenant side): Romlaboratoriet AS; Landscape Architect Grindaker AS; Engineering Consultants: Oslotre AS & NyStruktur AS; Norconsult; AS Sweco AS; Rambøl AS; Ekom AS; Engenius AS; Multiconsult AS; F.M.Haaland AS
Fotografías: Einar Aslaksen / Dag Sandven / Dmitry Tkachenko
Promotor: Höegh Eiendom AS y AF Eiendom AS
Empresa constructora: Seltor AS
Empresas destacadas:
Editado por:
Publicado: Mar 3, 2026