La rehabilitación del edificio Catalunya de Vic, formado por 4 torres residenciales, por el estudio de ingeniería y arquitectura Colomer Rifà ha enfocado en la envolvente un esfuerzo especial para asegurar la mejora del comportamiento energético de las viviendas, con el resultado de un mantenimiento más económico y un mayor confort.
La rehabilitación del edificio Catalunya, beneficiada con una subvención de 2,6 millones de euros, es la mayor rehabilitación de viviendas subvencionada por los fondos Next Generation UE de Cataluña.

Rénder del proyecto / Colomer Rifa.
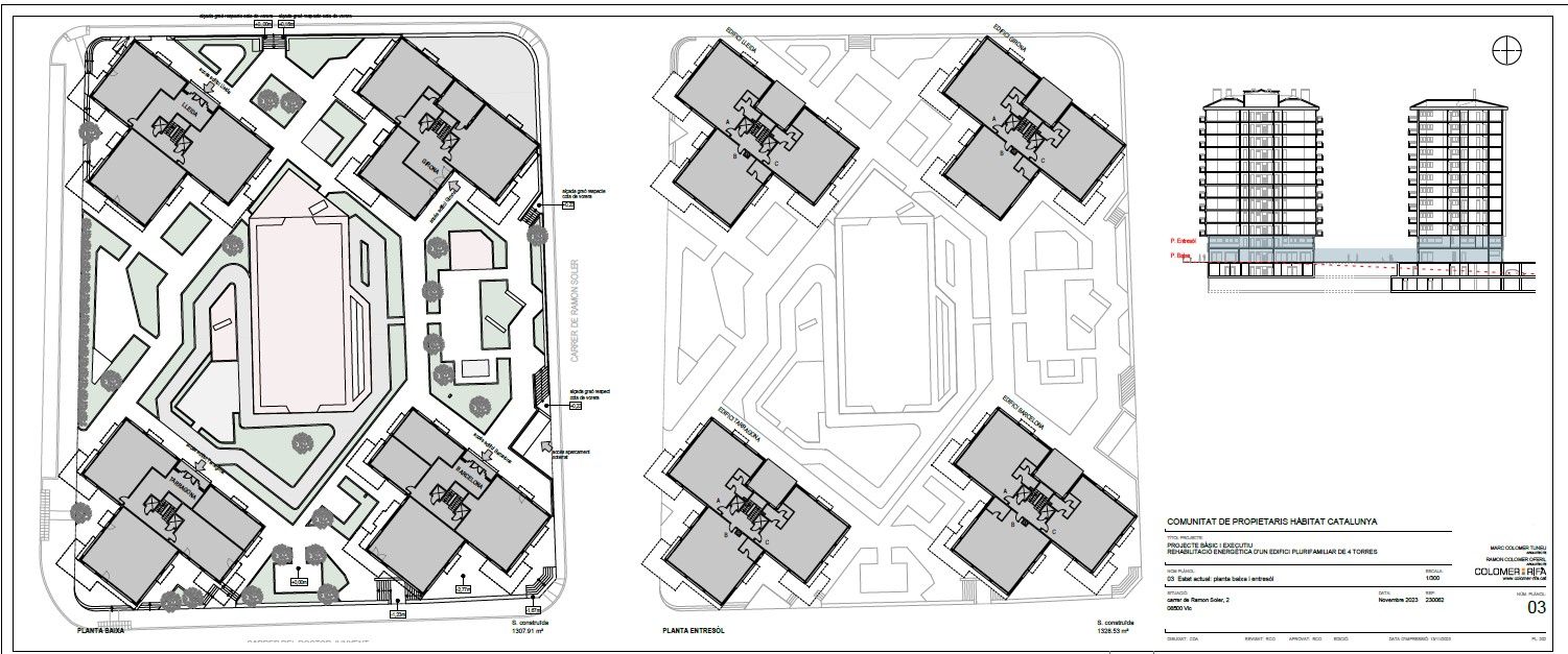
El edificio es el de mayor altura de la localidad y, por lo tanto, tiene un impacto importante en la percepción urbana de Vic. Las cuatro torres se denominan como las 4 provincias catalanas: Barcelona, Girona, Tarragona y Lleida y alcanzan 12 plantas (dos torres tienen planta baja + 10 y otras dos, planta baja + 11) que se dedican a viviendas y locales comerciales.

Edificio Catalunya en Vic formado por las 4 torres: Barcelona, Girona, Tarragona y Lleida.

Planta baja y entresuelo.

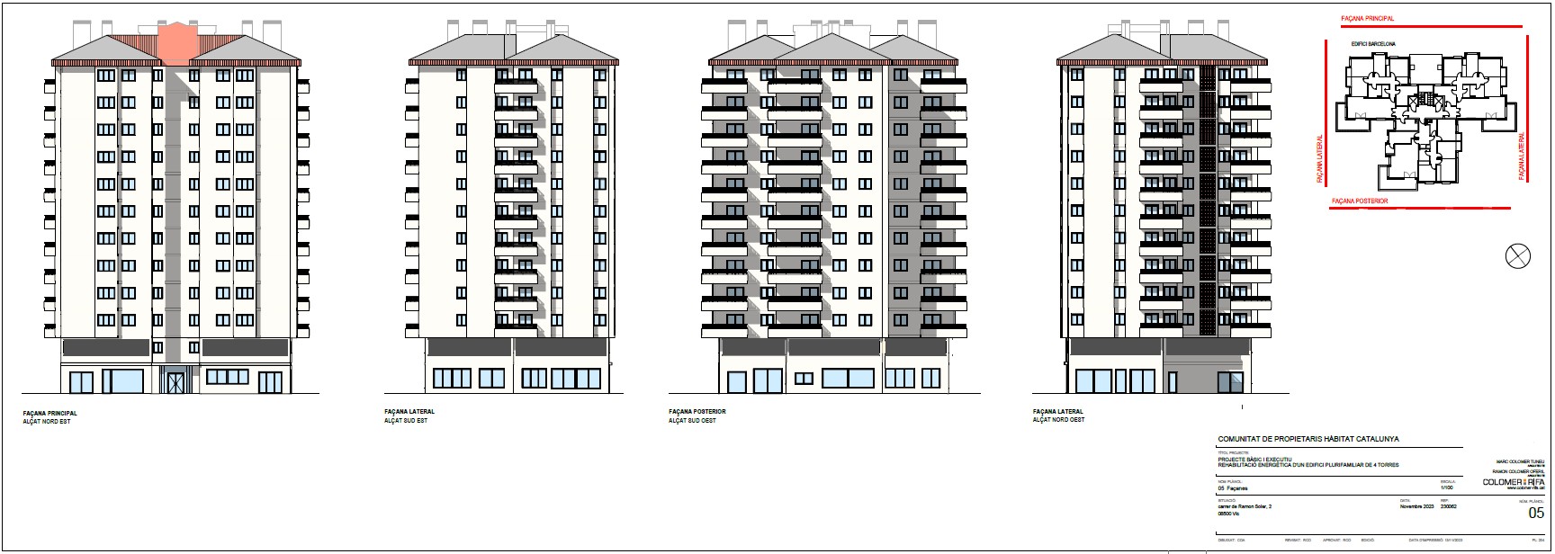
Alzados.
La construcción del edificio data del año 1976 con estructura es de pilares de hormigón in situ y forjados reticulares de hormigón y casetones cerámicos, y presentaba las carencias de la época especialmente en la resolución de la envolvente: la fachada era de doble hoja con cámara de aire intermedia, sin aislamiento térmico; las cubiertas inclinadas eran de placas de fibrocemento y viguetas de hormigón y no disponían de lámina de impermeabilización ni de aislamiento térmico.
Se establecen todo un conjunto de actuaciones para lograr la mejora de la eficiencia energética y de la funcionalidad del edificio que abarcan no sólo la rehabilitación de la envolvente sino también la instalación de nuevos sistemas ACS, sustitución de tuberías, reparación de terrazas, reurbanización, mejora de accesos e incluso la preinstalación de la carga de vehículos eléctricos.

Rénder del proyecto / Colomer Rifa.
La actuación número 6 se centraba en la rehabilitación de la fachada: Colocación de aislamiento térmico (10 cm lana de roca) por el exterior del plano de fachada (SATE).
Para la rehabilitación de las fachadas, con una superficie de más de 12.000 m2, se decidió un sistema SATE –Sistema de Aislamiento Térmico Exterior– que se ejecutó con la solución webertherm acustic; sistema que , junto a la mejora en el rendimiento energético, ofrece un excelente aislamiento acústico de la fachada frente a ruidos exteriores.

Sección por la terraza y fachada con ventana. Ver pdf.

·Condición de la solución constructiva para determinación del grado de impermeabilidad de la fachada (CTE DB-HSI apartado 2.3
El sistema se reviste con el mortero webertene advance M, un revestimiento siliconado de capa fina que contribuye a impermeabilizar la envolvente, manteniendo su traspirabilidad. Presenta una granulometría de 1 mm y proporciona una gran estabilidad del color, manteniendo sus propiedades inalteradas con el paso del tiempo.

Rénder del proyecto / Colomer Rifa.
El resultado final es el de un edificio con una estética renovada, con un acabado de gran durabilidad y estabilidad del color, que ofrece unas viviendas y espacios renovados que gracias a la calidad de su envolvente mantendrán las cualidades de confort a lo largo del tiempo.
Arquitectos: Colomer Rifà - Ingenieria-Arquitectura-Medio ambiente
Constructora: Construcciones Ferrer S.A.
Jefe de obra: Miguel Àngel Payà
Instalación SATE: Revest95 S.L.
Componentes SATE: Saint-Gobain: webertherm acustic / webertene advance M
Las imágenes pertenecen a las empresas salvo mención expresa.
Los productos pueden variar según la zona de distribución.
All images are property of the company offering the product unless otherwise indicated.
Products may vary depending on the area of distribution.