La arquitectura de las exposiciones internacionales ha legado un conjunto de proyectos que permanecen en la memoria colectiva por resolver, de forma audaz e innovadora, el desafío de lo efímero. Obras concebidas con fecha de caducidad que, en muchas ocasiones, han terminado por adquirir un carácter permanente. Desde la Torre Eiffel (París, 1889) hasta el reconstruido Pabellón Alemán de Mies van der Rohe y Lilly Reich (Barcelona, 1929), pasando por el Atomium o el Pabellón de los Hexágonos de Corrales y Molezún —ambos de la Exposición Universal de Bruselas de 1958—, abundan los ejemplos cuya aportación técnica y estética ha trascendido su tiempo previsto de vida.
Sin embargo, en la reciente Exposición Universal de Osaka, celebrada bajo el lema "Diseñar la sociedad del futuro para nuestras vidas", la normativa de desmantelamiento total en la isla de Yumeshima impidió que las estructuras permanecieran en el sitio, derivando cualquier legado físico a futuras reconstrucciones. En este contexto, el Pabellón de Polonia, diseñado por los arquitectos Borja Martínez Gómez y Alicja Kubicka de Interplay Architects, destaca como un ejercicio geométrico que aborda con valentía su materialidad. Aunque su existencia física haya sido fugaz, su propuesta de una envolvente de escamas de madera debe perdurar en la memoria como un caso ejemplar de investigación sobre la versatilidad y la poética del material.

Fotografía: Fernando Guerra.
“La espiral representa la historia de tantos polacos que construyeron sus vidas y carreras en el extranjero –desde Chopin hasta Curie-Skłodowska– sin perder nunca su identidad ni su vínculo con su país y su cultura. Sus brazos se extienden hacia fuera, abriéndose al mundo, pero siempre regresan al mismo centro. Llevan consigo conocimiento y cultura al exterior, y los devuelven enriquecidos: un lazo invisible que conecta a cada ciudadano polaco con sus raíces.

Geometría del Pabellón. Ver PDF
La génesis del proyecto parte de una fascinación por la geometría de la espiral. Una forma que ha inspirado a la humanidad durante siglos y que aparece en la naturaleza a todas las escalas: desde las moléculas de proteínas hasta la estructura de las galaxias.
¿Cómo representa esta geometría la identidad polaca y su espíritu de innovación? Las fronteras del territorio polaco no impiden que las ideas innovadoras se expandan, influyan en regiones lejanas y, a su vez, regresen al centro gravitacional de nuestra nación. Estas fuerzas invisibles, pero esenciales para el desarrollo del país, se expresan en la forma dinámica de los muros en espiral, con una sala de conciertos en su núcleo.”1
Pero la espiral también entronca con un motivo muy querido por la cultural polaca, los Wianek zboża, el adorno de coronas de varas de trigo con el que celebran las fiestas.

Adorno tradicional de Polonia, Wianek zboża, y la planta del peto de cubierta del Pabellón.
El lema con el que Polonia se presenta en esta Expo fue “Heritage that drives the future” (El patrimonio que impulsa el futuro). Interplay Architects se inspira en estas decoraciones tradicionales para dar textura a un diagrama formal que consistía en estos brazos que se abren al mundo orbitando en torno a un centro. Rápidamente, la referencia del grano de trigo los llevó a fragmentar la fachada en módulos con los que dar una escala y sobre todo, una imagen reconocible al proyecto.
Bajo el lema definido, el pabellón establece un diálogo entre identidad nacional y contexto local, entre tradición artesanal y formas abiertas al porvenir.

Fotografía: Fernando Guerra.

Fotografía: Fernando Guerra.
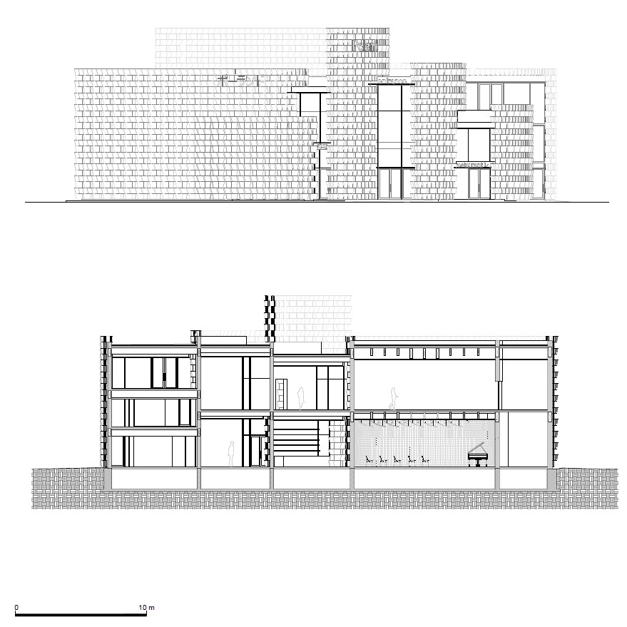
“Situado en una parcela en esquina, muy expuesta a las vistas desde el exterior, el Pabellón de Polonia se concibe a partir de una planta en espiral, formada por la superposición de muros curvos de diferentes alturas. Esta forma abierta y dinámica responde a la necesidad de ofrecer una imagen reconocible desde múltiples ángulos y, al mismo tiempo, atraer al visitante mediante las extensiones de los muros, que se proyectan hacia el entorno e invitan a descubrirlo.

Planta baja. Ver PDF

Planta alta. Ver PDF

Alzado y sección. Ver PDF

Fotografía: Fernando Guerra.
La geometría de la espiral no es solo un gesto formal, sino una herramienta espacial que organiza la secuencia expositiva y favorece una experiencia progresiva de descubrimiento.
El pabellón emplea exclusivamente madera de pino local japonés, tanto en su estructura como en su envolvente, aprovechando el excelente savoir-faire de los carpinteros nipones. Se hace así un guiño a las técnicas tradicionales, reinterpretadas mediante herramientas contemporáneas. El resultado es una fachada vibrante, que bajo la luz del día cambia de aspecto por la forma en que atrapa las sombras. En el interior, la madera aporta calidez, confort sensorial e incluso una presencia olfativa.

Fotografía: Fernando Guerra.
El conjunto se organiza a partir de una lógica modular basada en la repetición de exclusivamente dos tipos de módulos de madera. Esta estrategia permite, al mismo tiempo, flexibilidad para adaptarse a las geometrías del proyecto y rigor constructivo para afrontar unos plazos de ejecución extremadamente reducidos.

Piezas de madera del revestimiento. Tipo A y B. Ver PDF
El desarrollo técnico de la fachada fue guiado por dos objetivos principales: la repetición estricta de dos módulos idénticos y la concepción de un sistema estructural autoportante cuyos herrajes permanecieran completamente invisibles.
La lógica tras el primer objetivo era evidente: con más de 5.000 módulos y un plazo de ejecución extraordinariamente ajustado, la fabricación seriada no era una opción, sino una condición imprescindible. Desde el inicio, el principal reto fue geométrico. ¿Cómo lograr que un mismo módulo pudiera adaptarse a los múltiples arcos de radios variables que componen los largos brazos de la espiral, manteniendo al mismo tiempo su geometría inalterada en todo el proyecto?

Fotografía: Fernando Guerra.
Toda estructura necesita puntos fijos que le otorguen estabilidad. Sin embargo, anclar cada porción de muro de forma específica a su arco correspondiente habría supuesto renunciar a la repetición y multiplicar exponencialmente la complejidad de fabricación y montaje. La solución surgió durante una de las reuniones de trabajo con Jun Sato, ingeniero estructural del proyecto. Frente a un dibujo de la espiral, tomó su lápiz y comenzó a inscribir ciertos módulos dentro de una serie de circunferencias. “Como una cadena de bicicleta”, dijo. La analogía resultó decisiva.

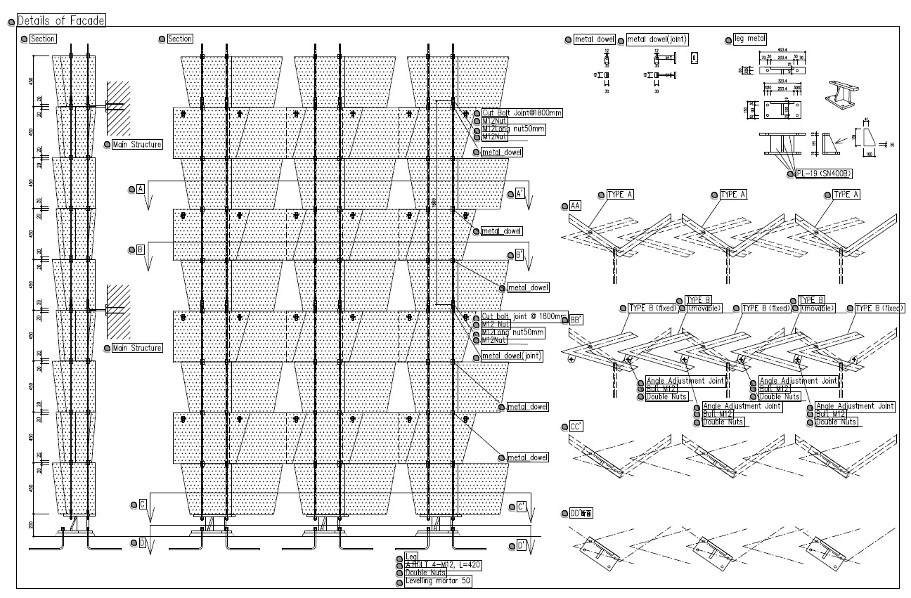
Concepto estructural del sistema. Ver PDF
El sistema se basaría en la alternancia de dos tipos de módulos: unos que actúan como elementos rígidos, organizados en columnas verticales con una orientación fija, y otros que funcionan como piezas de transición entre ellos. De forma análoga a los eslabones de una cadena, que se articulan mediante un perno para adaptarse a diferentes diámetros sin modificar su geometría, estos módulos permiten absorber las variaciones de radio sin alterar su forma individual.
De este modo, los módulos representados en azul en este dibujo forman una columna rígida y se posicionan perpendiculares al arco en el que se instalen, mientras que los rojos, pivotan alrededor de dos ejes con lo que permite que el conjunto se adapte progresivamente a la curvatura de la espiral según su radio.


Fragmentos de muro del Pabellón.
El segundo objetivo —concebir una estructura autoportante con herrajes invisibles— estaba directamente vinculado tanto a exigencias estructurales como a la integridad material de la madera. Algunos de los muros alcanzan los 13 metros de altura y están expuestos a las exigentes condiciones sísmicas de Osaka. En lugar de concebir la fachada como un revestimiento suspendido de una estructura independiente, se optó por hacerla trabajar como un sistema portante en sí mismo. La producción se llevó a cabo en Kagoshima, al sur del archipiélago japonés, en el taller de Yamasa Mokuzai, donde cada módulo fue mecanizado individualmente mediante control numérico. Este proceso permitió integrar los herrajes estructurales en el interior de las piezas y garantizar la precisión dimensional requerida por el sistema, condición indispensable para asegurar la continuidad estructural y la correcta alineación del conjunto durante el montaje en obra.

Colocación conectores metálicos verticales de unión de los módulos.

Detalle de los conectores y ajuste entre módulos. Ver PDF
Estos herrajes, completamente ocultos, quedan insertos dentro del espesor de la madera y se fijan mediante sistemas de conexión mecánica. Una vez ensamblados, se sellan con tapas de madera del mismo material, haciendo desaparecer cualquier rastro visible de la unión. Este enfoque permite preservar la lectura continua del material y refuerza la percepción de la fachada como una masa homogénea de madera, en la que la lógica estructural queda implícita pero no expuesta. El proceso de desarrollo requirió un intenso trabajo de prototipado y verificación, incluyendo la fabricación de mock-ups a escala real para validar tanto el comportamiento estructural como la precisión de las uniones.

Detalles encuentro muros de madera con forjados. Ver PDF
Más que recurrir a sistemas tradicionales de carpintería japonesa, el proyecto adopta técnicas contemporáneas de fabricación. Sin embargo, se apoya plenamente en la extraordinaria precisión y sensibilidad material de los talleres japoneses, cuya capacidad para trabajar la madera con tolerancias mínimas hizo posible la ejecución del sistema con el grado de exactitud requerido. Únicamente en los tramos más expuestos, correspondientes a los muros dobles exteriores, fue necesario incorporar mástiles metálicos de refuerzo para absorber las cargas laterales, particularmente las derivadas de la acción sísmica y del viento. Estos elementos, de sección reducida, se integran discretamente entre las capas de módulos, permaneciendo prácticamente invisibles y sin alterar la continuidad visual del conjunto.

Fotografía: Fernando Guerra.
El resultado es una fachada que no funciona como un revestimiento aplicado, sino como una estructura espacial coherente, donde geometría, estructura y material convergen en un único sistema constructivo. La repetición rigurosa de un número mínimo de piezas permite construir una forma compleja con una lógica clara, en la que cada módulo es simultáneamente elemento estructural, unidad constructiva y componente arquitectónico.”1
Nota: 1.De la memoria de los arquitectos
Promotor: PAIH (Polish Investment and Trade Agency) / República de Polonia.
Autores: Alicja Kubicka y Borja Martínez Gómez (Interplay Architects).
Arquitecto local: komy Studio (Masafumi Yukimoto, Mihoko Samejima)
Estructura: Jun Sato Structural Engineers (Jun Sato, Yuta Shimoda) / Instalaciones: Masukawa Architectural Equipment Design (Tomoaki Masukawa), Denro (Toshiro Saito) / Iluminación: Amber (Kentaro Tanaka) Paisajismo: Atelier Fuuchi (Junko Anazawa) / Exposición: KAFTI, GDYBY, Wiestaw Bartkowski.
Contratista: Joint venture Finasi SPI JV Turnkey Projects Contracting - FZCO; Nagashima Co. Ltd.; JSC Corporation.
Localización: Yumeshima Island, Osaka, Kansai, Japón / Superficie de parcela: 1116,97 m2 (=337.92 Tsubo) / Ocupación: 544,00 m2 / Superficie útil: 1022,40 m2 / Superficie construida 1.137,4 m2 Volumen: 5.466 m3
Fecha de proyecto: 2023. Construcción: agosto 2024 - abril 2025 ç
Fotografías: Fernando Guerra
Editado por:
Publicado: Mar 4, 2026