La nueva Base de Emergencias realizada por el estudio Santiago Carroquino Arquitectos, destinada a albergar los helicópteros de Transporte Sanitario, Protección Civil y Gestión Forestal del Gobierno de Aragón, se concibe como una edificación híbrida de usos múltiples. Además de funcionar como equipamiento de servicios especiales, el edificio integra también espacios de vivienda para el personal operativo, que desarrolla su labor de manera ininterrumpida las 24 horas del día.
En este tipo de infraestructuras vinculadas a operaciones aeronáuticas es habitual el empleo de sistemas de cerramientos metálicos, que en este caso ha consistido en una envolvente a base de perfiles de acero para fachada y cubierta de Europerfil, una solución constructiva que responde eficazmente a las condiciones del lugar y a los requerimientos específicos del edificio, combinando resistencia, durabilidad y una acertada coherencia formal en el resultado final.

Fotografía: Simón García / arqfoto.
La Base de Emergencias emplazada en el Aeródromo de Villanueva de Gállego, a 20 km de Zaragoza, muy próxima tanto a uno de los Centros de Datos de Amazon en Aragón como al Campo de Maniobras del Ejército de Tierra en San Gregorio, convive por lo tanto con el inmueble prefabricado de alta seguridad del gigante logístico y las diferentes dependencias edificadas para los hangares de las pequeñas avionetas ultraligeras del aeródromo. Son estas las únicas construcciones existentes en la actualidad en el parque industrial, que se prevé tenga una rápida expansión.

Fotografía: Simón García / arqfoto.
El Parque Industrial Aeronáutico de Villanueva de Gállego se presenta como un punto estratégico y en desarrollo, caracterizado por su especialización y su ubicación aislada pero bien conectada; por lo cual, el diseño de las infraestructuras dentro del parque, como la Base de Emergencias, responde estrictamente a su entorno aeronáutico.

Vista aérea de la base de Emergencias, donde se aprecia la envolvente continua en chapa de acero - en fachadas y cubiertas- que caracteriza su imagen. Fotografía: Simón García / arqfoto.

Plano de situación. Ver pdf

Fotografía: Simón García / arqfoto.

Fotografía: Simón García / arqfoto.
La disposición de los edificios, en sentido este-oeste, y la organización de las estancias se rigen por la proximidad a la pista de aterrizaje y la necesidad de confort acústico ante el ruido de las aeronaves. El entorno exige que las instalaciones cuenten con un puesto de control visual de la zona despegue, integrando así la edificación en la operativa diaria del aeródromo.
En resumen, el Parque Industrial Aeronáutico funciona como un ecosistema técnico y aislado, donde la arquitectura no busca destacar sobre el paisaje, sino, con cuidadosa sencillez, priorizar la funcionalidad industrial y el rigor operativo que exige la actividad aérea, ofreciendo al tiempo un interior confortable para las largas estancias en las que conviven los trabajadores. Se encuentra contigua a la zona de aterrizaje y está delimitada en una parcela aislada, colindante entre la zona aire-tierra del complejo. El programa de la base se define en tres áreas diferenciadas: el hangar para dos helicópteros, garajes para los vehículos de Protección Civil e Incendios Forestales y la zona de vida intermedia, compuesta de oficinas y dormitorios para los usuarios y operarios de este equipamiento.

Planta baja y entreplanta. Ver pdf.
Fotografía: Simón García / arqfoto.

Fotografía: Simón García / arqfoto.
El complejo funciona para la eventual necesidad del personal de incendios forestales, cuya presencia se ciñe solamente a los meses de verano, porque es la época en la que hay mayor riesgo de incidentes en las proximidades boscosas. También sirve a la operación del equipamiento durante los 365 días del año, con jornadas continuas de 24 horas por parte de la Protección Civil. Además de la instalación del coordinador del aeródromo, lo cual añade la necesidad de poseer un puesto de control visual de la zona de despegue y aterrizaje, como un único espacio en un segundo nivel para la vigilancia de las operaciones de los helicópteros. Cada estructura del complejo está diseñada para resistir la intemperie, además de los ruidos de las actividades del lugar, con el objetivo de crear espacios confortables para el personal que se instala por largas temporadas en la edificación, para mantener así su propia vida y dinámica social interior al tiempo que permanece en constante vigilancia y operación logística.
Fotografía: Simón García / arqfoto.

Alzados. Ver pdf.

Secciones. Ver pdf.
Ante la ausencia de vecindad y contexto construido, la base se proyecta como una edificación autónoma. Hacia su interior, más allá de resolver los usos programados, procura generar hábitats adecuados a la escala humana para el confort de los usuarios, usando patios como estrategia de diseño y causando, así, un uso concéntrico. De esta manera, el esquema este-oeste del hangar, que subdivide el equipamiento en zonas de vida, trabajo y garajes, se articula mediante los mencionados patios, que se distribuyen por su proximidad ejecutiva a la pista de aterrizaje o el alejamiento de ella para la mejora acústica.
Fotografía: Simón García / arqfoto.
Fotografía: Simón García / arqfoto.
Constructivamente, se ha proyectado con una misma envolvente en fachada y cubierta, confiando en que la continuidad del perfil de fachada arquitectónica Keops de Europerfil dote de unidad a espacios tan diferentes como un hangar de helicópteros y las dependencias para la vida diaria. Por tratarse de un perfil diseñado para su aplicación en fachada arquitectónica, Keops se ha instalado como una doble piel sobre el panel de cubierta Delfos 1150, que ejerce la función de estanqueidad del sistema de cubierta. Esta solución, ejecutada con un sistema de junta seca, tiene una puesta en obra acorde con el entorno aeronáutico y permite que su cara interior se adapte, mediante tabiquería también en seco, a los usos de cada zona.




El perfil de cerramiento usado es el denominado KEOPS de la marca Europerfil, en sus variantes ciega y perforada, fabricado en acero color gris RAL 9006 y revestimiento Esmeralda Plus.

El perfil KEOPS, de acero galvanizado y prelacado (EN 10169), tiene un altura de nervio 47 mm, un ancho útil 966 mm, y espesores de 0,6 mm a 1,20 mm.

Variante ciega y perforada del perfil KEOPS.

Fotografía: Simón García / arqfoto.



Fotografía: Simón García / arqfoto.


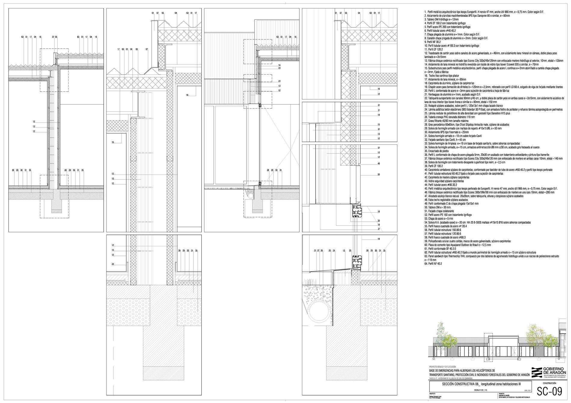
Secciones constructivas con detalle de encuentro de cerramiento con cubierta y terreno. Detalle de carpintería en hueco de salida a patio.Ver pdf.

Fotografía: Simón García / arqfoto.
La tabiquería interior es igualmente de junta seca. Únicamente en el perímetro de la zona de vida se ejecuta una fábrica semiseca de bloque cerámico rectificado que, al contrario que el ladrillo tradicional, apenas necesita mortero y minimiza los residuos por su sistema de ejecución. Esta se trasdosa por el interior, y sirve de base a la fachada de chapa exterior de Europerfil, mediante lo que se aumenta la eficiencia en cuanto a control acústico se refiere.

Por último, la carpintería de eucalipto se aplica en aquellas estancias habitables en las que la calidez es requerida. La envolvente, si bien es continua, permite su inmaterialidad cuando las necesidades de ventilación o visión lo demandan.

Fotografía: Simón García / arqfoto.
Acorde a la concreción del volumen, la iluminación de las estancias se resuelve con tersas superficies de policarbonato en la envolvente de las naves –destinadas a helicópteros y vehículos, que llegan a los 8 m de altura–, y aperturas de hueco tradicional en el caso de las zonas habitables.

Fotografía: Simón García / arqfoto.

Fotografía: Simón García / arqfoto.
Como guiño a las obras del despacho de arquitectos en las que se diseñaron escuelas y se determinaba la altura de 1,20 metros como límite del espacio para juego de los niños, se establece la altura de 2,40 metros dentro de la cual se desarrollan las estancias habitables de esta edificación. Así, la Base de Emergencias se consolida para dar solución a las necesidades y operaciones, donde diseño, técnica, materialidad, y sistemas constructivos se equilibran para sostener este equipamiento multifuncional.

Fotografía: Simón García / arqfoto.
Premio García Mercadal 2025 del Colegio Oficial de Arquitectos de Aragón
Premio Mejor Iniciativa Pública en Edificación 2025 del COAATZ
Arquitectura: Carroquino arquitectos
Arquitectos autores de la obra: Santiago Carroquino Larraz (Proyecto y D.O.), Marta Quintilla Castán (Proyecto)
Dirección de Ejecución: Andrés Moreno Hernández
Proyecto y Dirección de Instalaciones: Roberto Martínez Valdovinos
Promotora: Dirección General de Interior y Emergencias del Gobierno de Aragón. Departamento de Hacienda, Interior y Administración Pública
Constructora: Contratas VILOR S.L.
Superficie construida: 1.720,56 m2 (Sup Urbanizada 2.500 m2)
Ubicación proyecto: Aeródromo de Villanueva de Gállego (Zaragoza)
Fecha fin de construcción: 2024
Material fachada y cubierta: EUROPERFIL
-Perfiles utilizados: KEOPS - envolvente arquitectónica // DELFOS 1150 - panel sándwich de cubierta PIR.
Montador Fachada y cubierta: Montajes Batista S.L.
Carpinterías exteriores: itesal
Carpinterías Interiores: Carpintería PEMICAR S.L.
Fotografías: Simón García / arqfoto
Editado por:
Publicado: Jan 19, 2026